Девочки, помогите расставить правильно мебель на кухне.
Вопросы и ответыДорогие знатоки, сразу прошу прощения за качество моей картинки с размерами (мне просто это не дано((()
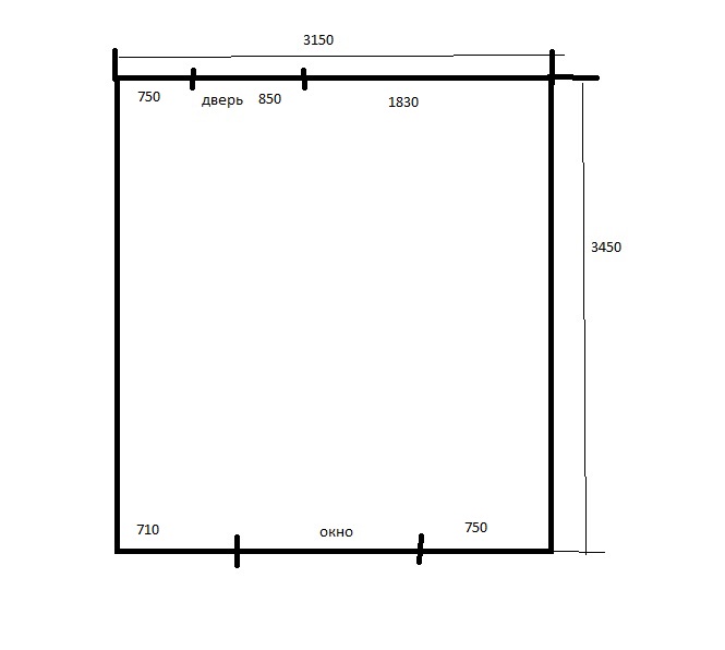
Итак, имеем кухню 3450*3150.
На нашей кухне хотим иметь из техники:
- холодильник
- посудомойка
- варочная панель
- духовой шкаф
- вытяжка
- свч
- стиральная машинка
Вся техника встраиваемая
Из мебели, высокие навесные шкафы, чтобы рационально было использовано место для хранения и в верхних и в нижних шкафах.
Примерный план расстановки мебели, как это видим мы, но полагаюсь на мнение знатоков и спецов в этом деле примерно такой....идем слева от окна....встроенный холодильник и от него уже пойдет остальная мебель, духовой шкаф хочу на уровне рук.
Девочки, миленькие помогите с расстановкой))))) а еще....забыла, кухню хотим угловую. Пыталась сама сделать планировку в икеевском планировщике, в итоге потратила два дня и результат 0
Приму любые полезные советы!!! у меня в голове каша и паника....
