Покрытие пола - керамогранит. Как разложить?
Всё о полах , стенах, потолках и материалах для нихДевочки, опять с вопросом
Мы все в РЕМОНТЕ
... стены и потолки готовы под покраску. Встал вопрос с покрытием первого этажа.
Вопрос: КАК РАЗЛОЖИТЬ ПЛИТКУ холл переходит в гостинную, гостинная в кухню. ПО ДИАГОНАЛИ или ПРЯМО???
Мне нравится прямо, в салоне плитки тоже советуют прямо, а плиточники говорят нужно по диагонали. На образцах в инете тоже нашла везде прямо. Вот ломаю голову(
Керамогранит плитка вот такая CHESTER Porcelanosa (Испания):


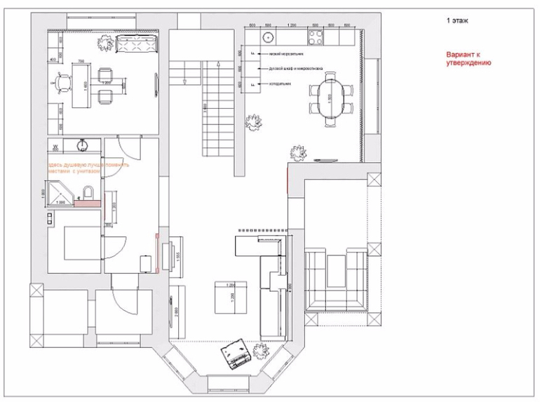
Планировка 1 этаж.

ЭЛИНА
У нас площадь 75 кв это кухня-гостинная- коридор,класть будем прямо,загляните в дневник,пока плитку выбираем))
18.11.2015
Ответить
Мамочка дочек - Мария:)))
Инна, согласна квадратиками точно по диагонали надо, а у нас длинные полоски.
18.11.2015
Ответить
marina
Мы прямо сделали. Я сперва по диагонали хотела.... а потом... куда ни зайдешь- 9 метровая комнатушка и все равно по диагонали укладка.... вобщем решила что это очередной выпендреж.... скоро пройдет... а пол все таки не на два года кладется.... Уложили прямо- мне очень нравится. У нас еще и на стену заходит. В дневнике есть фотки...
17.11.2015
Ответить
Мамочка дочек - Мария:)))
Да, Марина видела у тебя классно) А что по стенам ни где не вылезло криво относительно стен? Будем наверное на сухую раскладывать сначала.
18.11.2015
Ответить
marina
Нет стены ровные. Так кладут же хорошо. Как струна) это высотки бывают не идеальные мне кажется.... а тут пару этажей выложить криво так это надо совсем уж быть неумехами.....).
18.11.2015
Ответить
Алена
У нас похожий переход. ВО время укладки плитки выяснилось, что стены не все параллельны. Соответственно где-то у самого края стены видно, что плитка не параллельная стене (такое становится видно на больших расстояниях с переходом из комнаты в комнату). Так что раскладка по диагонали имеет смысл с точки зрения сокрытия такой вот порнографии. А идеально прямых стен практически не бывает.
17.11.2015
Ответить
Мамочка дочек - Мария:)))
Алена, да вот именно про это и говорят мастера. Попробуем разложить завтра и проверить все стены. Нет ли возможности сфотографировать что получилось?
17.11.2015
Ответить
Алена
У нас пока не доделано. Как сделают - сфотографирую. В нашем случае не критично, в глаза бросаться не будет, но у нас и расстояния меньше, чем у вас.
17.11.2015
Ответить
Татьяна Специалист по недвижимости
мы диагональные фанаты, но в последнем ремонте аналогичную плитку положили прямо, очень достойно смотрится
17.11.2015
Ответить
Вот фото.. Плитка лежит на кухне,холл,коридор