Проект 4х-комнатной квартиры
Авторские проекты дизайнеров.(Посты не по теме будут удаляться!)
В сегодняшнем посте, я хочу рассказать Вам об одном нашем проекте. Квартира приобретена молодой парой, у которой два миленьких ангелочка :), поэтому интерьер делался современный и функциональный.
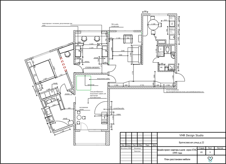
Вы можете увидеть интересную форму квартиры, довольно необычную, но при этом не особо функциональную, а главное - очень темную особенно в зоне коридора, так как туда не попадает дневной свет, а это визуально уменьшает пространство и не дает ему вздохнуть

Мы сделали перепланировку с которой дальше начали уже работать . Как Вы можете увидеть ниже, мы произвели демонтаж перегородки в гостиной, демонтаж дверного проема на кухню, совместили туалет и ванную , сделав из них постирочную и гостевой санузел, спроектировали, узаконили и реализовали вырез дверного проема между детской и спальней, что бы мамочке было удобно быстро попасть в детскую, так же произвели демонтаж дверного проема в санузел

Кухня у нас была двух вариантов по расстановке: с пеналом со встроенным духовым шкафом и СВЧ (2 в 1 - возьмите это на заметку, если у Вас небольшая кухня, 2 в 1 намного мобильнее, а функции выполняют те же что и отдельная СВЧ и дух. шкаф)

Акцентом кухни стали желтые кресла-стулья, декоративная трава в горшках (можете приобрести в IKEA) , центр композиции (обеденную зону) мы подчеркнули потолочными светильниками. Одной из задач было облегчить интерьер и сделать его "порхающим", легким, поэтому что бы не утяжелить композицию кухни, в качестве фартука мы использовали коленное стекло.

Болезнь небольших кухонь состоит в том, что для готовки хозяйки остается очень маленькая рабочая поверхность, на которой ютится не только она, но еще и какая-то бытовая техника. Как Вы видите, пенал занимает место, которое могло быть рабочим , но при этом с ним получается больше места для хранения, тут, конечно, выбор за хозяйкой, но мы рекомендуем в таких случаях ограничится кухней без пенала. Кстати, дополнительное хранение мы так же сделали в скамье.
*пардон за зеркальное отображение заставки на TV :), так же на этой картинке виднеется шкаф в коридоре, который очень большой и позволит хранить в нем много как межсезонных вещей, так и коробки с инструментами, самокаты и прочее

Спальня остается так же легкой и порхающей, акцентами тут становится черный цвет и дерево, что делает интерьер динамичнее и более живым. Для главы семьи, а он у нас графический дизайнер и музыкант, мы выделили рабочую зону между спальней и детской



Мы ушли от привычных всем настольных ламп и использовали потолочные люстры, которые выполняют все ту же роль ночников, только более современных и практичных . По обеим сторонам от деревянных панелей можно увидеть 3D панели, которые так же разбавляют интерьер и добавляют движения.
Детская. Так как мы спроектировали игровую для деток, детскую мы оставили местом для сна и для занятий. Дети погодки, разнополые, предполагается что через какое-то время одного из них переселят в другую комнату (за место игровой). Зону сна и рабочую зоны мы разделили перегородками, которые будут служить нам еще и как дополнительное место для хранения книг, тетрадей, игрушек. Акцентами в детской стали: обои с рисунками, перегородки в цвет обоев и деревянные настенные панели, которые объединяют визуально другие комнаты


На окнах рулонные или же римские шторы, ну а кроватки будут авторские, в виде очертания домика :)

Рабочая зона для девочки. Столешница идет от стены до стены, а так же заезжает на зону подоконника, что расширяет рабочее пространство. Такую столешницу можно сделать из искусственного камня (цена вопроса около 70-80 тр), натурального камня ( около 120 тр) , мы же делаем эту столешницу самостоятельно , что встанет по затратам примерно в 20 тр вместе с коленном стеклом.
Гостевой санузел и постирочная. На этот пример я обращаю внимание тех, кто задумался о ремонте санузла. Дорогие наши читатели, если у Вас ограничен бюджет, прислушайтесь к совету! Уйдите от стереотипов, используйте плитку локально, остальное красьте! Не бойтесь, краска для ванных комнат идет специальная (берите Tikkurila Euro 20), она не облезет, не потрескается и ее можно мыть. Это будет смотреться намного эффектнее, современнее, а еще это сильно сэкономит Ваши затраты ( к примеру на ванную комнату в 3 кв.м на плитку, если ей полностью отделывать стены, Вы затратите около 90тр, а если будите отделку производить локально, то вместе с краской затратите около 30-40тр).
Так же обратите внимание на инсталляцию. Да, это чуть дороже простого унитаза с бачком, но именно инсталляция позволяет Вам эстетично добавить место для хранения. В нашем проекте Вы можете заметить, что над инсталляцией две открытые полки, а выше закрытые, можно полностью закрыть дверками все пространство и не оставлять открытых полок.

На полу у нас керамогранит под дерево, можно так же положить доску из бамбука, ипе или тика (устойчивы к влаге) или др древесину (самая большая задача в этом случае - обеспечить очень качественную гидроизоляцию пола, как под покрытие дерева, так и над ним).

Санузел хозяйский. Раковина не только для взрослых, но и для деток! Что бы даже самые маленькие чувствовали себя полноценно :) Для них так же будет стоять на столешнице зеркало под заказ. Желтым акцентом стали дверцы в нишу, в котором мы сделали шкафчик для хранения, а центром внимания становится джентельмен, бреющий свою щетину :)
Игровая. 3D данной комнаты не несет полной информации, тк многие элементы нуждались в моделировании. Только в этой комнате используется LED лента в качестве подсветки, что добавит атмосферности детским праздникам. Вместо телевизора мы повесили проектор, что довольно удобно, а большое разрешение картинки и ее размер всегда соберут всех членов семьи вместе на просмотр интересных мультиков.
Мелованная доска позволит детям рисовать и развивать их творчество, что так же будет служить в качестве акцента в комнате. А на правой стене будут мягкие панели из LEGO (на картинке они не мягкие), так же эти же панели можно использовать на полу в качестве мягкого пола, что бы детки падали безопаснее :)

Так же будет горка (на 3D ее нет) , прокатившись с которой, ребенок будет попадать в сухой бассейн

Как Вы можете заметить, в комнате имеется только одно место для хранения: лавка с выдвижными ящиками из IKEA, остальное же хранение игрушек (основное) находится на балконе в этой комнате, он застеклен, утеплен и мы спроектировали там два глубоких встроенных шкафа.
В гостиной акцентом становится кирпич декоративный и голубая стена. У нас было два варианта : с полкой и без полки над TV, заказчики выбрали вариант без полки


__
На данный момент мастера своего дела реализуют наш проект, уже готов демонтаж, монтаж и разводка электрики, как только вид будет преображаться, я обязательно добавлю сюда результат проекта :). Если у Вас имеются какие-то вопросы, я с радостью отвечу на них
__
Вы подняли мне настроение, Анатолий)