Планировочное решение трешки для пятерых
Однажды я уже просила помощи с планировкой, но кроме услуг дизайнеров идей не получила. Ну нет средств на дизайнеров.Просматривая работы в интернете
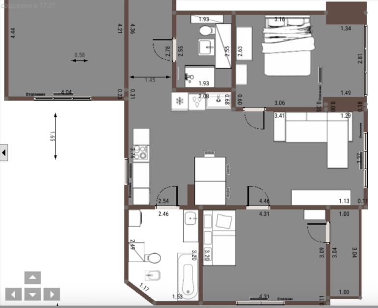
пока нарисовалась такая картина:
Не уверена с расстановкой кухни, поэтому прошу помощи с расстановкой кухонного гарнитура.
хочу: достаточную рабочую поверхность для готовки. поэтому получилось что зона мойки (раковина+ПММ) и холодильник находятся отдельно от зоны готовки. мне конечно это не очень нравится, но придется привыкать. так же в этой зоне (где мойка) будет стоять. на столешнице термопот и мультиварка .
Был такой вариант без острова:

Буду благодарна если кто-то поможет с идеями
Виктория (дизайнер)
А почему бы не пойти простым путем, без переноса кухни. Так как это "не просто" написать кабинет ))) Если на вскидку, то так вышло
Узел с ванной комнатой надо додумать - чтобы вход не из гостиной был.
А вы не рассматривали вариант заказать у дизайнера не весь проект, а план с расстановкой мебели? Любимая моя часть - планировки, поэтому цена на них совсем невысокая
https://bazar.babyblog.ru/item/382763
Узел с ванной комнатой надо додумать - чтобы вход не из гостиной был.
А вы не рассматривали вариант заказать у дизайнера не весь проект, а план с расстановкой мебели? Любимая моя часть - планировки, поэтому цена на них совсем невысокая
https://bazar.babyblog.ru/item/382763
26.06.2016
Ответить
Виктория (дизайнер)
И еще - присоединить балкон, как на ваших чертежах не получится. Все равно надо будет оставить подоконную часть, т.к. у вас именно балкон, а не лоджия. Возможно, можно будет расширить проход, но подоконник точно снести не дадут.
Вот тут посмотрите - тоже к кухне балкон присоединяли + проем расширяли, законно.
https://www.babyblog.ru/user/id2224057/13903
26.06.2016
Ответить
Катерина
спасибо за вариант. были у меня такие мысли с гостиной, но боюсь темно будет, т.к. в коридоре окно небольшое и получается надо использовать искусственный свет часто. пока сейчас моя жизнь с детьми протекает в гостиной и на кухне, поэтому и видится кухня-гостиная
26.06.2016
Ответить
Виктория (дизайнер)
Можно между спальней и гостиной сделать полустены, например. Или портал с раздвижными дверями. Вечером всех уложили, закрыли дверки и пошли спать)
Что-то типа такого.
26.06.2016
Ответить
Виктория (дизайнер)
Просто законно, перенести кухню в кабинет можно только в том случае, если у ваших соседей снизу там тоже будет кабинет. Кухню можно перенести в нежилое помещение, и у соседей это тоже должно быть нежилое помещение.
Если вы все перепланировки узаконить планируете, то кухню только в коридор можно перенести. Как у вас в первом варианте. Надо только еще над ним подумать)
26.06.2016
Ответить
Ярославна Галивец дизайнер интерьера
Поддерживаю предложение! Этот вариант гораздо лучше! А свет сейчас более чем решаемый вопрос, зато с планировкой будет все логично!
28.06.2016
Ответить
ZhannaT
Катерина, не знаю почему вы не воспользовались моим предложением) Внесите свои изменения, но так уже лучше.
26.06.2016
Ответить
Катерина
Жанна, вы в прошлый раз единственная кто предложил вариант, я сначала так и рисовала двери большого с/у и комнаты. но просто сейчас живем на съемной квартире и наша спальня такая же маленькая как вы предложили-ух летом дышать нечем, а зимой с отоплением жарко, хочется уже пространства больше
26.06.2016
Ответить
ZhannaT
Сделайте остекление в спальне. Вчера забыла пояснение к картинке написать))) Вам пример выше показали. Желаю удачи!
27.06.2016
Ответить
Mira
Нету мыслей у дизайнера) Бесплатных мыслей нету)) Вариант с островом вообще нагромождение. И проход в санузел не удачный.
26.06.2016
Ответить
Olga
Ой как наворочено... Вы сами полностью со всеми перегородками делали проект? Или уже это дано?
26.06.2016
Ответить
Ярославна Галивец дизайнер интерьера
Покажите, что было изначально. Не видела вашей темы. Некоторые моменты планировки серьезно смущают.
Услуги свои не предлагаю
26.06.2016
Ответить
Ярославна Галивец дизайнер интерьера
Ага... теперь понятно...
Скажите, почему именно такое решение?
Зона кухни у туалетов!
Спальню на месте кухни вам не утвердят, вы же это понимаете?
Какие требования вас сподвигли на такие планировочные решения?
26.06.2016
Ответить
Катерина
в начале поста есть ссылка-на мой предыдущий пост-я писала что рассматриваем законные планировки, на месте же кухни можно написать кабинет, а перенос кухни в зону коридора тоже законно насколько мне известно.
а планировочное решение такое- нас пятеро(я, муж, 2 сыновей-3,7 лет и 1,8 и дочь-новорожденная). ребятам пока комнату на двоих, дочери отдельную на будущее (пока как кабинет ), 2 туалета оставляем
26.06.2016
Ответить
Катерина
я изначально рисовала кухню в коридоре буквой Г-по стене большого с/у. но с дверями фигня получалась в ванну и спальню.
26.06.2016
Ответить
Ярославна Галивец дизайнер интерьера
Я бы вам очень рекомендовала воспользоваться советом, под которым я оставила комментарий! Это замечательный вариант и лучше здесь ничего не сделать, поверьте моему опыту )))
28.06.2016
Ответить
