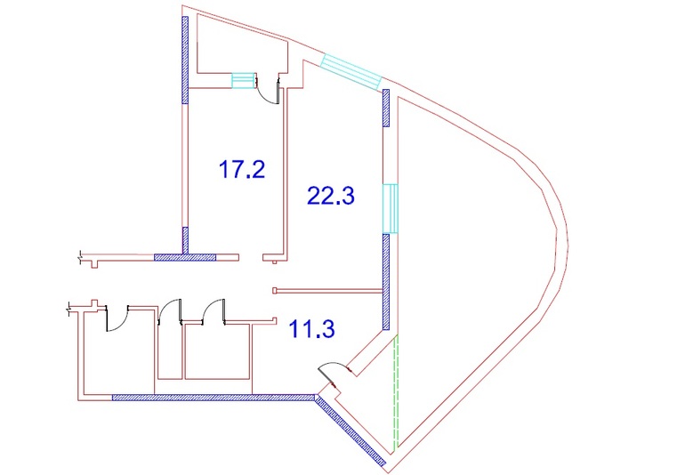
Перепланировка и расстановка мебели в кухне-гостинной
Наконец-то мы переезжаем из своей однушки в просторную двушку. У нас есть 2 месяца, чтобы освободить нынешнее жилье, сделать ремонт и переехать.
Помогите, пожалуйста, с расстановкой мебели в кухне-гостиной. Может еще какие идеи по планировке.
Было 

А вот что мы придумали 
Большую террасу и балкон из кухни планируем делать попозже, весной-летом. Детскую планирую сейчас сделать минимально, тк совсем не понимаю, что нужно от детской с 2мя детьми. Года через 2, когда будем переселять туда младшую сделаем нормальный ремонт.
Сейчас основной затык с расстановкой мебели в гостиной. Вроде бы все устраивает, но вот что-то не то.
Может быть у кого-то есть идеи?
selena1002
Леля, добрый день!
Вы все очень хорошо придумали. Если поставить стол на кухне вот так
то можно больше народу уместить, и ходить будет свободнее. А не то - окно, если бы оно было там, где диван на балконе, то всем было бы лучше)) Можно, конечно, помудрить с разворотом стены, засчет детской, но не стоит. Лучше поворотный кронштейн взять для тв, или стеллаж с таким кронштейном.
то можно больше народу уместить, и ходить будет свободнее. А не то - окно, если бы оно было там, где диван на балконе, то всем было бы лучше)) Можно, конечно, помудрить с разворотом стены, засчет детской, но не стоит. Лучше поворотный кронштейн взять для тв, или стеллаж с таким кронштейном.
05.10.2016
Ответить
Виктория (дизайнер)
Какая у вас интересная планировка квартиры. А скиньте ссылку на застройщика - на дом посмотреть.
Как мне кажется, все рационально вы расставили. Единственное, шкафа в спальне не хватает. Может быть именно это "не то"?)
А еще я бы узел ванна-туалет-кладовая переделала. Думаю, можно и постирочную сделать и биде поставить, может и душ.кабину вместить.
05.10.2016
Ответить
Леля
http://www.at-all.ru/ У нас жк Флагман.
Про постирочную думали, но в квартире мало места для шкафов и решили сделать полноценную гардеробную.
05.10.2016
Ответить
Виктория (дизайнер)
вот как раз над местом для шкафов надо помедетировать. У вас туалет несуразный какой-то выходит: длинный и узкий, поэтому и пришла мысль перекроить эту часть
05.10.2016
Ответить
Леля
Мы его немного "укоротим") сделаем за унитазом большоц люк с водонагревателем, счетчиками, фильтрами и прочими нужностями.
05.10.2016
Ответить
Elena
Я бы предложила рассмотреть вариант со стандартным диваном и поменять местами ТВ и диван. Возможно, вдоль стены можно еще поставить шкаф для вещей (в спальной не вижу мест для хранения), я его нарисовала, но нужно смотреть размеры. И стол заменить на круглый.
05.10.2016
Ответить
Владимир Ярус
мне нравится ваш вариант . на первый взгляд даже предложить нечего . подумаю ещё, если мысли новые будут - поделюсь )))))
05.10.2016
Ответить