Проект кухни-гостиной для загородного дома.
Авторские проекты дизайнеров.(Посты не по теме будут удаляться!)Желтый сапфир, осень, золото мозаики Ар-деко и вкрапление черных нот. Проект совмещенных кухни и гостиной обыгрывает современные тенденции, но главный акцент - это золотисто-желтый цвет, который создает уютную атмосферу, жизнерадостную утром, теплую и приглашающую погреться у камина - вечером.

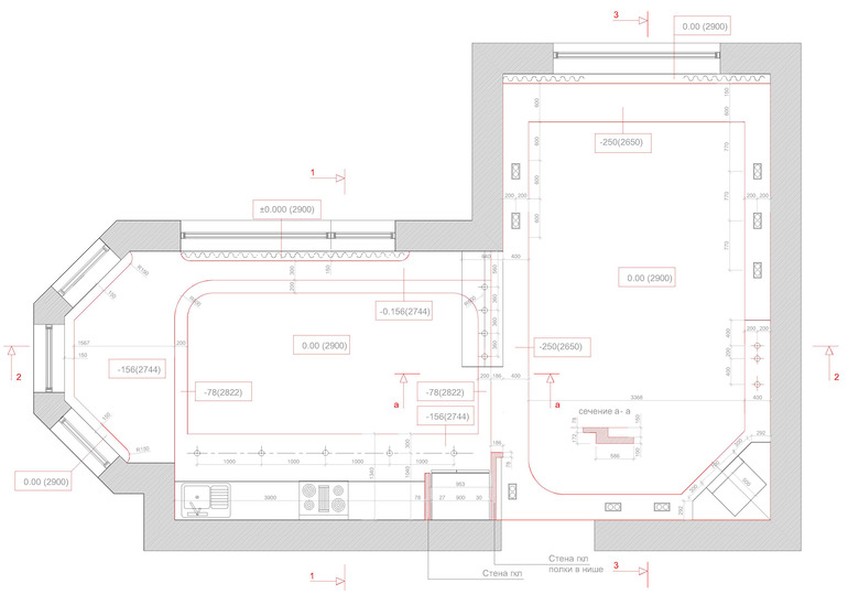
Планировочное решение.

Кухня имеет эркер в котором расположены дополнительные места для отдыха, повторяющие форму эркера.

Зона кухни отделена со стороны входа нишей с подсветкой, а с другой стороны барной стойкой.


Зонирование поддерживает потолок с перепадом уровней и закругленными формами.

В интерьере обыгрывается тема нерегулярной мозаики, которая соотносится с крупным панно Климта за диваном, обоями в зоне камина, раскладкой шестигранной плитки на кухне и золотистой мозаикой на фартуке.
В каминной зоне используется прямой портал для камина, дополненный бра и зеркалами с фальцетом.

Для гостиной выбран светильник черного цвета, который уравновешивает темные детали интерьера и развивает тему Ар-деко.

