П-43 двушка с балконом на кухне
Вопросы и ответыПоделитесь, пожалуйста, размерами в помещениях. Не могу найти, только площади или 1-2 стены отмечены. Очень нужно не в коммерческих целях! Время не ждет!🙏
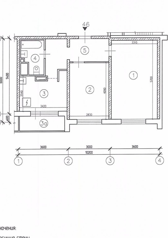
ЗЫ. Картинка примерная, что удалось найти. Санузел типовой раздельный.

АннаД
У них размеры гуляют у всех +- 50см.
В зависимости от застройщика, материала стен итд
20.11.2018
Ответить
АннаД
Это реальность
Серия это не как в магазине, там конструктивные критерии, у серии может меняется шаг несущих стен, расположение диафрагм жесткости, положение окон, балкона (и их отсутствие)
Если хотите точные размеры - вперед с рулеткой, если примерно, берете план, масштабируете ( !!по дверям, а не стенам!!) и вперед, но запас учитывайте большой.
20.11.2018
Ответить
Fabiana
План с размерами: ванной, туалета, расстояний от краев дверей и окон до стены. Понятно, что будут погрешности, но все же. Подправила.
20.11.2018
Ответить
Анастасия
ну повычитайте))) общую длину минус длину кухни - ванна примерно 2860 скорее всего меньше, минут толщина стены. и так далее)
20.11.2018
Ответить
Fabiana
я не знаю толщины стен
Прошу, у кого есть готовый. Квартира типовая, наверняка каждый дизайнер хоть раз работал с подобной.
Прошу, у кого есть готовый. Квартира типовая, наверняка каждый дизайнер хоть раз работал с подобной.
20.11.2018
Ответить
Анастасия
если перегородки кирпич то, плашмя если лежит то 12 см толщина, на ребро 9 см, плюс по 1 см штукатурки с каждой стороны
20.11.2018
Ответить
ой кошмар!