Гостиная-кухня-столовая... что изменить?
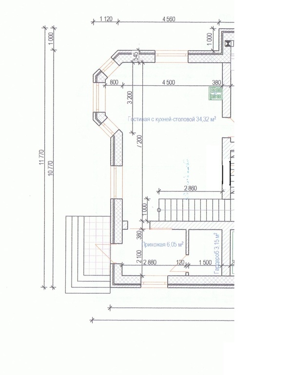
Интерьерное решение жилых помещений.Здравствуйте. Подскажите, пожалуйста, как бы Вы спланировали расстановку мебели в гостиной-кухне-столовой. Я схематично указала, какие мысли у меня, но может что-то более интересное упускаю из вида. Схемы под кад. Заранее спасибо за совет!
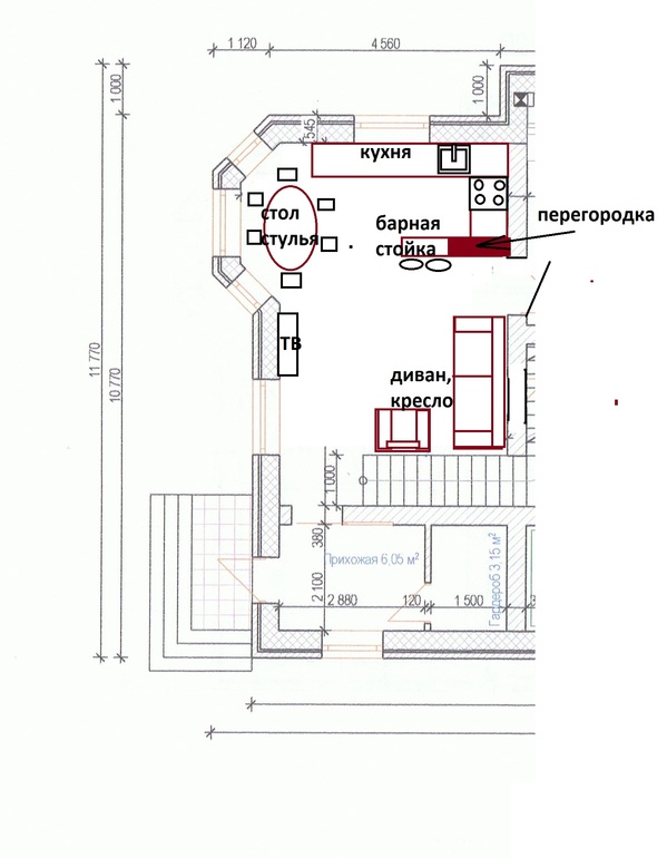
P.S. на схеме хочу сделать перегородку, чтобы зону готовки не было видно, в ней можно полки или шкафчик (ширина получится не более 40 см), а далее небольшую барную стойку (только вот не знаю, а нужна ли барная стойка, в роде нравится, а в роде и лишняя она)....


Joy
У нас остров , вместо барной стойки, удобно сидеть на барных стульях и готовить на острове одно удовольствие( раскатывать тесто, резать салатики)
31.01.2019
Ответить
Rini
Лично я все эти барные стойки не особо люблю, поэтому на мой взгляд она лишняя - ну если место в той же комнате для большого стола есть, к чему она?
31.01.2019
Ответить
Rini
А ещё - там ведь окно в части где кухня? Если у меня след. кухня позволит то раковина будет так стоять чтобы можно было из окна смотреть, вы такой вариант не рассматривали?
31.01.2019
Ответить
Солнце
Да, сначала тоже планировала так, но потом решила все же перенести в сторону (может еще передумаю). Просто когда заходишь в гостиную, то прям взгляд на раковину смотреть будет.
31.01.2019
Ответить
Rini
Ну и? В ней же не будет горы немытой посуды?) зато будет приятно вам, хозяйке на кухне, когда готовите, может посуду какую то моете, итд итп что можно смотреть в окно, а за спиной может ещё и семья, иначе ведь вы их и не видете вообще в том углу и вас не видно, а у окна зелень в горшочках разная, розмарин, мята, базилик, с правой стороны доска для разделки, чтоб овощи порезать, место сразу есть для работы а следом варочная панель - так на мой взгляд удобнее будет если принять в внимание где у вас расположена плита. Разве нет? У вас ведь это так или иначе одно помещение и кухня наверное красивая будет, зачем её прятать? Я люблю как раз вот этот вариант открытого, большого, общего пространства для всей семьи больше всего.
31.01.2019
Ответить
Солнце
Красиво сказано!
Для посуды посудомойка будет. Немытой посуды в раковине вообще не бывает, у нас не принято так, сразу моем. На схеме я приблизительно показала раковину, там место справа от нее до угла шкафов еще есть (40-60 см). Я просто хочу разместить раковину так, чтобы она была прикрыта от взгляда. Например, если остров будет, то он закроет ее и у окна, а если буду делать стойку , может и не барную, просто декоративное продолжение перегородки на высоте чуть выше нижних кухонных шкафов (например декоративное хранение бутылок), то тоже зрительно она закроется. Там окно большое и раковина все равно немного будет в сторону окна, просто не посередине. А так честно, я еще не решила, может и у окна ее размещу.
Для посуды посудомойка будет. Немытой посуды в раковине вообще не бывает, у нас не принято так, сразу моем. На схеме я приблизительно показала раковину, там место справа от нее до угла шкафов еще есть (40-60 см). Я просто хочу разместить раковину так, чтобы она была прикрыта от взгляда. Например, если остров будет, то он закроет ее и у окна, а если буду делать стойку , может и не барную, просто декоративное продолжение перегородки на высоте чуть выше нижних кухонных шкафов (например декоративное хранение бутылок), то тоже зрительно она закроется. Там окно большое и раковина все равно немного будет в сторону окна, просто не посередине. А так честно, я еще не решила, может и у окна ее размещу.
31.01.2019
Ответить
Rini
Пс: только смотреть надо как окно открывается и арматуру правильно подобрать, есть варианты разные, например так:
31.01.2019
Ответить
Rini
Если бы сама такой вариант где окно не открывается не видела, то сама бы не подумала)
у меня тоже одна большая комната (буквой Г) и я специально кухню расположила так чтобы смотреть на стол/в гостиную. Общаться с гостями, с семьёй когда готовлю, видеть и быть на виду, не могу себе представить специально закрыть, но у меня и до этого открытая кухня была, я так привыкла. У вас так классно стол расположен, с окнами! Моя соседка с похожей планировкой, закрыла в сторону окон кухней и сделала полуостров где можно сидеть на барных стульях вместо стола и тем увеличила рабочую поверхность кухни, примерно так, надеюсь понятно:
Но вариант плохо подходит для большой семьи / если нужен стол.
Но вариант плохо подходит для большой семьи / если нужен стол.
31.01.2019
Ответить