Светло, свежо, современно: трёшка с идеями
Авторские проекты дизайнеров.(Посты не по теме будут удаляться!)Хозяева этой квартиры - приятная молодая пара с хорошим вкусом и чётким пониманием того, чего они ждут от проекта. Большая удача, когда дизайнер и заказчик понимают друг друга с полуслова. Именно таким было общение с ребятами, вопросы решались просто, проект получился лёгким и интересным. Небольшая перепланировка, и вуаля - стильная, комфортная и светлая квартира в современном стиле готова! :) Кстати, кроме привычной визуализации гостиной, спальни и кухни, мы сделали также санузел и даже прихожую. Но об этом позже.

Заказчики всё-таки не решились на единое открытое пространство кухни-гостиной, поэтому у нас получилась этакая стена-компромисс. :) Деревянные рейки как декоративный элемент часто используют в современных интерьерах, ими хорошо украшать светлые квартиры - фото с различными интересными решениями есть и в нашей дизайнерской копилке. А в этом проекте мы с помощью таких реек создали условную перегородку между кухней и гостиной.
Идея: предусмотреть у перегородки плотную штору - если кто-то из гостей останется ночевать, можно будет отгородиться хотя бы визуально.

Дерево, особенно светлого оттенка, отлично вписывается в современную концепцию. У нас в интерьере много белого цвета, так что деревянные элементы уравновешивает и освежает квартиру, добавляет душевности. Посмотрите на тот же обеденный стол, стулья с деревянными ножками - всё гармонично и уместно!
Идея: выбрать одинаковые по форме стулья, один из которых отличается расцветкой

Нишу справа мы создали искусственно под нужные размеры столешницы - 140х70 см. Небольшая рабочая зона органично вписалась в интерьер и даже не сильно бросается в глаза. Сверху разместили удобные закрытые полки для хранения рабочей мелочёвки и документов.
Идея: заменить пробковую доску-картину из прошлого века, вот таким вариантом и оформить небольшой участок стены возле стола.

Мы умышленно решили сделать верхний ярус белым, а нижние шкафчики в более практичном цвете. Нижний ряд более широкий и массивный, а за счёт белого цвета выглядит гораздо воздушнее. Фасады без ручек и нарочитая простота - дань минимализму современного стиля.
Идея: добавить третий цвет в фасады и сделать невысокие верхние шкафчики нежно-жёлтыми, например.

Лоджию решили не делать прямым продолжением кухни, потому что не стояло задачи расширить её, тут мы делали релакс-уголок. Получилась белая, как облачко, зона отдыха с креслами и небольшим столиком, где можно с комфортом расположиться вдвоём. Например, с чашечкой утреннего кофе. :)
Идея: предусмотреть на балконе стеллаж, прозрачный со всех сторон, и заполнить его ящиками с искусственной зеленью и нишами-полками для хранения мелочей.

По аналогии с рабочим уголком в гостиной здесь организовали туалетный столик шириной 45 см. Достаточно удобно для того, чтобы сделать макияж или вечерние косметические процедуры. К слову, мы не рекомендуем выставлять женские тюбики и баночки напоказ, особенно разноцветные - хоть это и спальня, куда не входят чужие люди, стоит воспитывать в себе чувство прекрасного. :)
Идея: купить однотонное покрывало и научиться застилать его как-то по-новому, например, подтыкая его по сторонам и делая натянутым. Уделить внимание деталям: качественному однотонному белью, порядку на полках, объёмным декоративным подушкам.

Обратите внимание, как выигрышно смотрится синее кресло в углу спальни! Его изящно и ненавязчиво поддерживает комод из натурального дуба с нанесённым под заказ принтом. Такая мебель - удовольствие не из дешёвых, но иногда можно и потратиться на какую-то действительно классную вещь, которая будет радовать глаз.
Идея: сделать комод с цветным фасадом своими руками и объединить его с акцентным цветом в комнате.

Вторая дверь в спальне ведёт в гардеробную, куда же без неё в наше время :) Если метраж спальни позволяет, сделать гардеробную - милое дело! Мы выбрали складную дверь-книгу вместо привычного или сдвижного полотна. Такой вариант хоть и дороже, но зато ничего не мешает и нигде не выступает.
Идея: повесить в гардеробной плотную однотонную штору вместо дверей в цвет стен интерьера.

Санузел выполнен в задорном современном стиле, поскольку заказчики наши люди молодые, лёгкие и весёлые. Идею с экраном они отмели как непрактичную, а душевую кабину ставить не хотели. Оставили узкую стеклянную перегородку возле раковины, за которой, кстати, всё равно придётся ухаживать и каждый раз протирать от брызг воды.
Идея: если позволяют размеры ванной, поставить длинноногую табуретку в качестве столика.

Люди делятся на две категории: тех, кто мечтает о биде, и тех, кто считает его напрасной тратой денег. :) Дело предпочтений и финансовых возможностей. К какой категории относитесь вы? С точки зрения дизайнера, в просторной ванной биде из одной коллекции с унитазом и раковиной смотрится очень красиво.
Идея: наконец-то поставить в маленьком туалете гигиенический душ, который тоже прекрасно справляется со своей функцией и стоит в десятки раз дешевле.

Внезапно прихожая! Мы вообще готовы визуализировать любой уголок квартиры, но не все заказчики хотят дополнительно тратиться на это. Прихожая на самом деле редкость, и здесь она появилась на картинках лишь благодаря тому, что мы не делали 3D детской комнаты. Возвращаясь к вопросу дизайна, отметим, что для оформления прихожей мы использовали ту же цветовую гамму, что и во всём проекте. Шкаф возле пуфа - это гардеробная в наращённой нише.
Идея: вывести на пустые стены необычные светильники, которые будут не только красиво смотрятся, но и дадут приятное мягкое свечение. Как вариант, можно купить модели на батарейках.

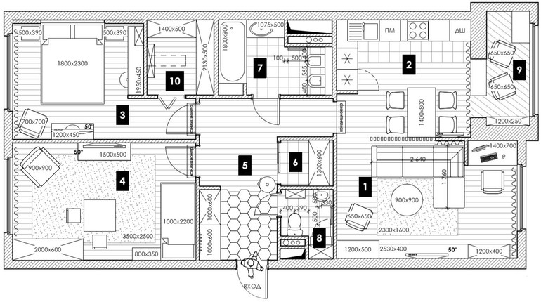
Вот и вся современная квартира в светлых тонах. Общая площадь чуть больше 90 квадратов, серьёзной перепланировки мы не делали - лишь частично демонтировали некоторые стены и нарастили перегородки для двух гардеробных комнат: в спальне (10) и в прихожей (6), а также объединили большой санузел (7).
А теперь делитесь: как вам проект? Понравились ли идеи?)