Новая жизнь детской
Авторские проекты дизайнеров.(Посты не по теме будут удаляться!)
Дано: детская 16 кв м, в частном доме. Задача - сделать комнату для подростка (в идеале, чтобы хватило пока не выпорхнет из родительского гнезда) . Электрику не меняем, потолок, двери и полы остаются на месте
фото
Когда сын был маленьким, родители выбрали для него (как и многие) морскую тематику. Сейчас мальчику 11 лет и комната явно не по возрасту.


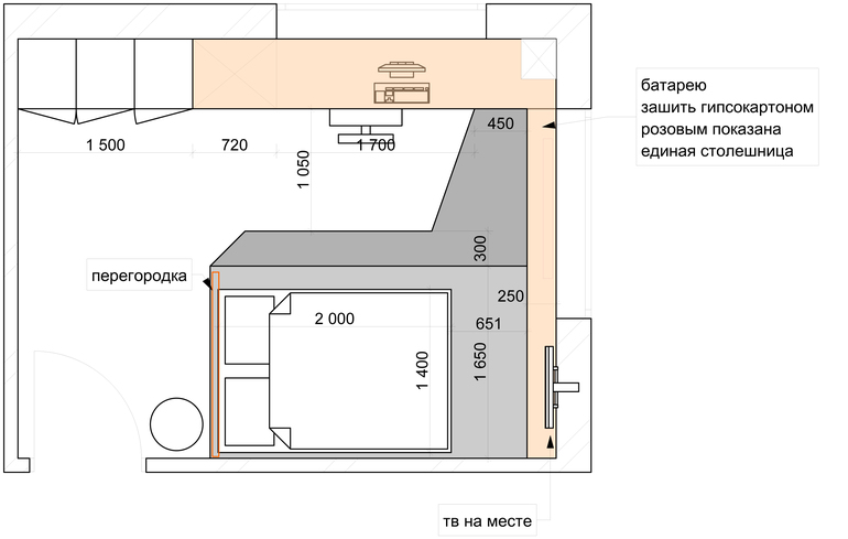
Согласовали идею с подиумом. Многие не любят подиумы и на это есть объективные причины. Но в данном дизайне подиум оказался к месту







Сама по себе реализация недешевая (но задача сэкономить не стояла). Вся мебель на заказ, подиум будем у тех же ребят заказывать. Потолок с облаками натяжной - снимем это полотно и поставим белое. На стенах новые обои + гипсокартонная конструкция, которая скроет радиатор отопления под окном. Ну и шторки новые повесим.
И, обращу внимание, что это частный дом. В нем есть место для поиграть, большая гостиная и т.д. Эта комната именно личное пространство для парня
Вдохновляйтесь
Панда Я
Какая жуткая мрачность, смотрю на свою 12 летнюю дочь... М-да...
Спрашивали ли вообще какое то пожелание по цвету у 11 летнего еще ребенка?! А ведь в этом возрасте активно имеют свое мнение...
А если его пожелание это черный цвет - тогда у ребенка явные проблемы ....
22.06.2020
Ответить
Lenny
Мрачновато. Больше похоже на гнездо любовной пары, которой надо скрыться от супругов. Или какого-нибудь финансового аналитика. Но никак не 11-летнего ребенка, кстати даже ещё не подростка, а именно ребенка. Но если это не сюрприз для него, а его идея, то и ладно, главное чтобы такая темень не давила на его настроение и не вырастила из него мрачного пилота.
22.06.2020
Ответить
Настя
Ужасно. Депрессивный возраст, помноженный на чёрные стены. И ощущение тесноты и чулана. Хотя к функциональной составляющей у меня претензий нет, но стены и чёрная перегородка, на мой взгляд, убивают всю задумку. Тем более парень мечтает о небе, а его селят в нору.
21.06.2020
Ответить
Аня
Если честно, не поняла, какую функцию тут выполняет подиум? Почему бы не просто кровать? Такие многоярусные полы - проблема для уборки, если семья располагает современной техникой - роботом-пылесосом, полотером.
21.06.2020
Ответить
кипариска
Не понравилось.
Мрачно. К чему это подростку. Сложно расправить крылья сидя в черном ящике. Ладно бы это была спальня мужчины, которому только переночевать и есть ещё помещения в квартире.
Большой вопрос по использованию места. Кусок комнаты просто пропадает.
21.06.2020
Ответить
<Алёна >
Стильно и функционально, все очень нравится! Смущает только черный цвет - одно дело видеть его на картинке, другое - жить с ним, но наверное это дело привычки)
21.06.2020
Ответить
Виктория (дизайнер)
В жизни будет пыльно-черным или серым, т.к. прям черных-черных обоев я не встречала. Плюс тут два огромных окна, света много.
Черная стена остается за спиной при любом раскладе - нет в этой комнате занятия, где бы ты прям обозревал ее длительное время. Только когда из комнаты выходишь. Поэтому, этот темный цвет выступает как дополнение.
По замыслу стена у кровати имитирует ночное небо, а стена с фотообоями - город на фоне ночного неба. Пилотом хочет мальчик стать в будущем.
21.06.2020
Ответить