Это не кантри, но... сканди
НаходкиВот нашла на просторах интернета. Очень понравилось (хотя это только визуализация). Не не очень искушена и только познаю азы скандинавского стиля, но мне кажется это он.
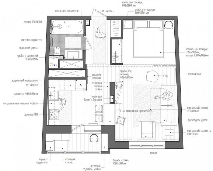
Небольшая квартира (45м2) расположена в г. Химки Московской области.
Основной задачей было создание красивого и функционального интерьера с учетом минимальной площади квартиры и не высокой стоимости реализации проекта.
Визуально единое пространство однокомнатной квартиры функционально поделено на гостиную, спальную зону и кухню. Весь интерьер решен в светлых мягких тонах с яркими акцентами на отдельные детали.
первоисточник 














Марина
а светильники на длинных шнурах кто-нить в магазинах видел?или это сами сделали?я думала ,квартира для молодой пары,так как в шкафу разглядела мужские туфли)
26.01.2014
Ответить
Света
Спасибо что показали это чудо! Белый, мятный, черный. Гардероб за шторой обычно вызывает смешанные чувства, а здесь он такой аккуратный и удобный. Не люблю я глубокие шкафы, иногда чтобы вещь увидеть, надо ее из под чего-то извлечь. Хотелось бы у себя воплотить подобный гардероб не прибегая к доп.комнате. Но что-то мне подсказывает, что в реальности будет более захламлено. Не могу не отметить ванную, эти ящички на балконе с надписью "не кантовать". Если обычный сканди может раздражать сильную половину своей романтичностью, то здесь как мне кажется всем понравится и мужчине и подростку и ребенку и что немаловажно мне)
24.01.2014
Ответить
Ундина
А мне кажется, что городской скандинавский стиль очень сдержанный и лаконичный и поэтому он очень любим молодыми современными мужчинами (но это квартира сделана для девушки - поэтому очень мягкая), а вот в скандинавском кантри там больше романтичных деталей.Если я ошибаюсь, пусть Мария меня поправит.
24.01.2014
Ответить
Света
Я именно это и хотела сказать) Здесь все очень лаконично и адаптировано под наши реалии как мне кажется. Мне нравится скандинавский стиль, но вот моему подростку-сыну и мужу едва ли он придется по вкусу в чистом виде. А здесь всем было бы комфортно.
24.01.2014
Ответить
Маша_veryscandi
Да замечательная квартирка, кажется она называлась квартира для молодой девушки, я бы от такой не отказалась))Кроссворд в ванной- отличная идея!
23.01.2014
Ответить
Ундина
Да, именно так она и называется. Но с небольшими изменениями подойдет и молодому человеку, и бездетной паре и вообще любому... поэтому я не стала выносить название. Но есть ссылка, где можно почитать по подробнее.
24.01.2014
Ответить
Фанфан
Тоже для себя ее отметила! Особенно порадовали слова - кроссворд на плитке в ванной, раньше такое мне не попадалось. Видела только таблицу Менделеева на плитке, но то был хендмейд))), проще говоря разрисовали старую плитку лаком.
23.01.2014
Ответить