Возможна ли такая перепланировка?
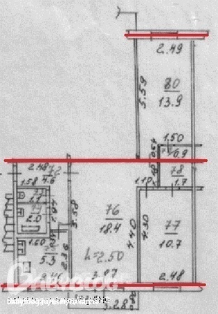
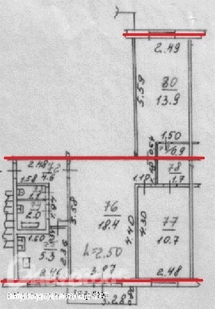
План квартиры сейчас:
хотелось бы примерно:
ну и чтобы вход в кухню получился примерно как тут

Marina
План я отправила. В верхней комнате и в маленьком коредорчике - это гардеробные из ГК, двери будут купе, в коредоре для всякого разного, а в комнате для личного белья и вещей. Детская будет внизу, комната солнечная и шкафчик у детей будет свой. Балкон в спальне мы объединяем, там слева будет маленький стол для компа, справа полки под потолок. Кухню расширяем за счет переноса стенки с\у на 40-50 см. Плиту и раковину планирую немного смещать. Сначало раковину хотела под окно, но нам соседи предложили пристроить балкон (квартира на 2м этаже), я хочу потом туда вынести обеденный стол. План ванны думаю понятен. Фото готового интерьера будут потом, а так просто что получилось только в апреле-мае.
21.02.2012
Ответить
Marina
У нас почти такая же планировка и мы ее перепланируем примерно также, если хотите могу нарисовать свое видение нашей квартиры в будущем, только сначала малыша спать надо уложить.
20.02.2012
Ответить
М-Лено
Вот те раз )) Ну прямо то что мне хотелось!! Я прям в шоке, какое совпадение! А кухня у вас какой площадью? И кстати коридор не темный получился в итоге? И плита у вас газовая тоже?
20.02.2012
Ответить
Ирина
Кухня где-то также, когда одеваемся свет в коридоре включаем, а так, и не особо темно. Если что интересует спрашивайте! и розеток побольше проектируйте, у нас только в кухне-зале их 18, добавили в процессе еще 5, а вот если бы думали заранее, ну всего не учтешь)))
20.02.2012
Ответить
М-Лено
спасибо, обязательно спросим)) обсудим сегодня всё еще раз)) Спасибо, за ответы. Сп.нч.
20.02.2012
Ответить
Ирина
Информация для размышления:
Согласование перепланировки квартиры при объединении кухни и комнаты.
В домах типовых серий кухни, как правило, небольшие – 6-10 кв.м, поэтому часто объединяют кухню с комнатой с превращением получившегося помещения в кухню-столовую (кухню-гостиную). Тем самым функциональность помещения значительно улучшается.
Однако существующие нормативные документы вводят ряд ограничений на объединение. Имеет место ряд нюансов, которые надо учесть при такой перепланировке квартиры.
В этой статье мы не будем обсуждать вопросы функциональности, дизайна, а также преимущества и недостатки такого объединения. Это – вопрос дизайнера, который, изучив потребности конкретной семьи, сможет предложить наиболее рациональное решение в каждом конкретном случае, предупредив о возможных негативных последствиях (запахи, шум и т.д.).
Рассмотрим вопрос объединения кухни с комнатой с точки зрения существующих строительных и санитарных норм, возможности согласования такой перепланировки квартиры.
Что можно и нельзя делать при перепланировке кухни и комнаты?
В целом согласование перепланировки жилых помещений при объединении кухни и комнаты можно разбить на следующие варианты:
Плита на кухне – электрическая.
Плита на кухне – газовая.
Плита на кухне – газовая, но квартира находится на 1-ом этаже или под квартирой находятся нежилые помещения.
От того, к какому из вышеперечисленных вариантов относится Ваша квартира, зависят возможности перепланировки и нюансы.
Вариант 1. Плита на кухне – электрическая.
В этом случае такое объединение возможно. Однако есть несколько нюансов:
Надо учесть, какая стена разделяет кухню и комнату – несущая или ненесущая. Если ненесущая, то ее можно полностью демонтировать. Если несущая, то необходимо предварительно заказать обследование квартиры и получить техническое заключение о возможности частичного демонтажа такой стены (проем, арка и т.п.) с последующей разработкой проекта по укреплению (восстановлению несущей способности).
Если под Вашей квартирой находится тоже квартира, то плиту и мойку нельзя располагать в зоне комнаты, т.к. согласно строительным и санитарным нормам над жилыми помещениями не могут располагаться кухни. Т.е. так называемое «зонирование» помещений должно соблюдаться – кухня на месте «старой» кухни, комната на месте «старой» комнаты, только между ними глухой стены нет. Остальное поможет обыграть дизайнер.
Вариант 2. Плита на кухне – газовая.
Согласно пожарным нормам кухня с газовой плитой должна иметь двери во все остальные помещения квартиры для предотвращения распространения огня при пожаре. Убирая полностью или частично стену между кухней и комнатой, Вы превращаете, согласно пожарным нормам, все помещение бывшей кухни и комнаты в кухню. Т.е. объединенное помещение с такой сложной конфигурацией будет являться кухней.
С другой стороны, по строительным и санитарным нормам над жилыми помещениями в многоквартирных жилых домах не могут располагаться кухни. Тем самым Вы нарушите права соседей, живущих под Вами – над их комнатой будет часть Вашей кухни-столовой.
Выходом из этой ситуации является полный или частичный демонтаж стены между кухней и комнатой с установкой в образовавшийся проем двери или раздвижной перегородки. Чаще всего ставится раздвижная перегородка, которая, при необходимости полностью открывает пространство кухня-комната. Такую перепланировку согласовать можно.
Единственным исключением, облегчающим задачу, является ситуация, когда соседи снизу сделали такое же объединение без раздвижной перегородки между кухней и комнатой и полностью оформили свою перепланировку (получили разрешение, оформили акт выполненной перепланировки и внесли изменения в план БТИ). В этом случае для получения разрешения на такую перепланировку потребуется получить от соседей технический паспорт на их квартиру, в котором будет все это отмечено.
Вариант 3. Плита на кухне – газовая, но квартира находится на 1-ом этаже или под квартирой находятся нежилые помещения.
Если квартира однокомнатная, то демонтаж стены приведет к тому, что в квартире фактически не останется жилой комнаты, а это – недопустимо. Поэтому между кухней и комнатой вместо стены надо ставить дверь или раздвижную перегородку.
Если квартира имеет несколько жилых комнат, то объединить кухню и комнату можно без устройства перегородки между ними, т.к. в квартире остается еще как минимум одна жилая комната. Но в этом случае в двухкомнатной квартире надо обратить внимание на то, чтобы размер оставшейся комнаты был не менее 8 кв.м, т.к. согласно СНиПам жилая комната не должны быть менее 8 кв.м. В 3-х и более комнатной квартире по крайней мере одна комната должна быть более 8 кв.м.
Порядок согласования перепланировки:
Процедура согласования перепланировки квартиры при объединении кухни и комнаты, при условии соблюдения вышеперечисленных нюансов, зависит от типа разделяющей стены.
Если стена ненесущая, то согласование перепланировки возможно по эскизу: на плане БТИ сделать эскиз, сдать его для получения разрешения в Мосжилинспекцию округа.
Если стена несущая, то потребуется проведение обследований, выдача техзаключения, разработка проекта, согласование проекта с Роспотребнадзором, Госпожнадзором, ДЕЗом, только после этого проект можно сдать в Мосжилинспекцию для получения разрешения.
В любом случае по окончании ремонта необходимо вызвать представителей Мосжилинспекции и ДЕЗа для оформления Акта выполненной перепланировки, после этого – техника БТИ для новых обмеров и выдачи нового техпаспорта на квартиру.
Как узаконить перепланировку кухни и комнаты, если уже все сделано?
Порядок действий точно такой же, как если бы Вы только собирались делать ремонт: в зависимости от типа стены между кухней и комнатой: создание эскиза или разработка проекта с необходимыми согласованиями, получение разрешения, оформление Акта, обмеры БТИ.
Если двери или раздвижной перегородки нет, а она требуется, то ее придется смонтировать.
Если не согласовывать перепланировку, то какие грозят наказания?
Если Ваша незаконная перепланировка будет замечена, то на первый раз Вам выпишут штраф в 2-2,5 тыс.рублей и обяжут оформить перепланировку, выдав соответствующее предписание.
Если Вы проигнорируете предписание, то ДЕЗ или Мосжилинспекция могут подать на Вас в суд. У суда есть меры воздействия вплоть до продажи Вашей квартиры. Но до такой ситуации дело лучше не доводить.
20.02.2012
Ответить
Ирина
Нельзя однозначно
- Сносить несущие конструкции — это ясно априори.- Разрушать или изменять общие для всего дома коммуникации: вентиляционные каналы, канализационные, водопроводные и отопительные стояки.- Переносить санузел в помещение, расположенное над жилой комнатой или кухней.- Устанавливать радиаторы отопления на лоджиях и балконах.- Делать вход в единственный санузел из смежной жилой комнаты.- Объединять (путем полного сноса перегородок) жилую комнату и кухню, где установлена газовая плита.
Можно, но осторожно
- Проем в несущей стене делать можно, но шириной не более 1 м.- Увеличивать площадь ванной и туалета разрешается за счет коридора. Расширить санузел за счет жилой комнаты можно, если в комнате будет размещаться не более 25 % его площади. Обязательно нужна гидро- и шумоизоляция полов «переехавшей» санитарной зоны. Кстати, по СниП уровень полов в санузле должен быть на 2-5 см ниже, чем в смежном помещении.- Переносить от «родного» канализационного стока ванну, умывальник, унитаз или мойку можно, сохраняя перепад высот — это необходимо для нормального слива. Перепад высоты рассчитывается следующим образом: удаление от стока на 1 м = поднятие слива на 3 см.- Объединить оборудованную газовой плитой кухню с другой комнатой разрешено посредством дверного проема.
Можно без согласования
- Ликвидировать и устраивать антресоли и встроенные шкафы.- Заменять (не меняя их местоположения) сантехнические приборы, кухонные плиты, радиаторы отопления, полотенцесушители. Подразумевается, что взамен прежних устанавливаются устройства, сходные по техническим параметрам.- Делать косметический ремонт квартир, то есть в свое удовольствие менять отделку стен, потолков и полов. Установка окон, отличающихся от прежней столярки видом оконного переплета, может считаться изменением фасада здания, в этом случае – формально – нужно согласование.
Все прочие манипуляции с перегородками, дверными и оконными проемами, изменением площади отдельных комнат и всей квартиры нужно согласовать в БТИ / архитектурном управлении (в разных братских республиках разные названия)— с предоставлением проекта перепланировки или эскиза.
20.02.2012
Ответить
Юлия
Спасибо огромное!!!! Как раз раздумываю об объединении кухни с комнатой:) Может подскажите сколько стоит такой эскиз?
20.02.2012
Ответить
Ирина
Вам лучше проконсультироваться в отделе архитектуры по поводу эскиза, но думаю что его можно накидать на планчик БТИ, если он у вас есть, не на самом плане, а то документ испортите, копий наделайте себе и несколько вариантов нарисуйте.
20.02.2012
Ответить
Александра
Ирина здраствуйте! Если можете подскажите плз! смотрю вы разбираетесь) У меня такая же трешка, но вопрос другой. Видите на рисунке есть комната, которая если из входной двери и прямо по коридору, то слева. Так вот у нас в этой комнате семейная спальня - дочка и мы с мужем. Проблема в том, что двухспальную кровать реально впихнуть только к окну, и я с моей любовью к перестановкам этого пережить не могу((( тк она разделена на зоны и ребенка будит наше хождение((( в связи с чем промерила стену где вход в комнату получается, что от двери слева есть расстояние в 0,40см и если его перенести левее, почти к самой стене, то справа от входа в комнату может войти кровать!!!! НО ! Вот в чем вопрос:
Как можно узнать является ли стена эта несущей? и можно ли чуть перенести этот дверной проем?
06.03.2012
Ответить
Ирина
А ниже есть рисунок, где я красными линиями показала стены которые капитальные, НО в архитектуре можете проконсультироваться, возможно вам и разрешат, т.к вы же не сносить собираетесь, а перенести дверь немного.
07.03.2012
Ответить
Александра
Ира не пойму, вы про второй рисунок, что то красные линии не найду или рисунок?...
07.03.2012
Ответить
М-Лено
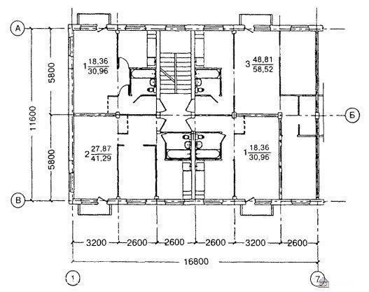
а мне вот к примеру подсказали что мой дом серии 1-335 и картинка несущих стен выглядит примерно так:
т.е. смотрите на квартиру где 3-шка, 58,52 метра. А несущие стены изображены толстым
т.е. смотрите на квартиру где 3-шка, 58,52 метра. А несущие стены изображены толстым
07.03.2012
Ответить
Ирина
Ну понятно что несущие стены (толстые) идут по периметру, а вот плиты перекрытия на чем лежат?, если они стандартные идут длинной 6 метров, и тогда второй край их лежит тоже на капитальной стене, получается что по середине тоже проходит капитальная стена. Я не переубеждаю, это просто моё мнение.

07.03.2012
Ответить
М-Лено
да кто его знает какого года дрм и какой серии, пока нет возможности у меня узнать, т.к. я живу в другом городе...
08.03.2012
Ответить
Александра
ААА! вот она красная по середине!!! Спасибо большое!!! А что надо чтобы узнать в архитектуре? запрос, заявление?
08.03.2012
Ответить
Ирина
Не могу точно сказать какой порядок работы в вашей архитектуре, в каждом городе свои правила, если у нас это в порядке консультации, то может у вас и запрос надо делать, я не в курсе. А так вам нужно узнать точно ли эта стена капитальная и разрешат ли в ней передвинуть дверь.
08.03.2012
Ответить
Desert Rose
Ирина, добрый день!понимаю, что форум 12-го года, но возник вопрос:откуда взята информация о том, что жилая площадь после объединения кухни и одной из комнат должна составлять не менее 8 метров?Цитата из СНиП 31-01-20035.7. Площадь помещений в квартирах, указанных в 5.3, должна быть не менее: жилого помещения (комнаты) в однокомнатной квартире - 14 м2, общего жилого помещения в квартирах с числом комнат две иболее - 16 м2, спальни - 8 м2 (10 м2 - на двух человек); кухни - 8 м2; кухонной зоны в кухне - столовой - 6 м2. В
однокомнатных квартирах допускается проектировать кухни или кухни-ниши площадью не менее 5 м2.может это не действующий документ? может я не там смотрю?
23.08.2013
Ответить
Маруська
у знакомых такая квартира, они увеличили санузел, но чтобы сделать раздельный и гардероб между маленькими комнатами оставили, там по моему нет несущих стен в этих местах, можно даже не узаконивать вроде
20.02.2012
Ответить
М-Лено
мы планируем там кладовку сделать, с дверями купе. А симтему хранения в комнате (сверху) и узкий шкаф купе при входе в квартиру, чтобы повесить верхнюю одежду не более.
20.02.2012
Ответить
Маруська
туалет как у вас на первом плане, а ванная продлена за счет коридора, вход в туалет со стороны прихожей, а в ванную со стороны зала, в ванной ниша как бы от туалета,в ней стиралка стоит
20.02.2012
Ответить
М-Лено
иначе не знаю вариантов. Да и увеличение ванной комнаты не принципиально, просто при перепланировке входа в кухню, как мне кажется оставит коридор абсолютно ненужным. Тогда его целесообразно применить к увеличению ванной комнаты.
20.02.2012
Ответить
Имилия
Если плита электро и стена не несущая (в которой проем пробивается) то перепланировка возможна, если плита газовая то запрещено объединять с комнатой по нормам безопастности.
20.02.2012
Ответить
Марина
У родителей нашего крестного квартира один в один, как на вашем плане №2, только у них вообще между гостиной и кухней нет стены (и я тоже знаю, что они делали перепланировку, но какая у них была изначально я не в курсе)
20.02.2012
Ответить
Марина
ну,я не знаю (сама-то не жила без двери на кухню)................но у них (родителей крестного) в гостях часто бываем, они про неудобства не говорили, но они уже люди "в возрасте", дети маленькие у них в квартире не живут, поэтому возможно им удобно)
20.02.2012
Ответить
М-Лено
у нас пока детей нет. Не думала что это так важно... (не доступность кухни)
20.02.2012
Ответить
Марина
Мне кажется при наличии ещё двух комнат (у вас же изначально трёшка?), не так уж и важна недоступность кухни, это когда однакомнтатная или двух, то кухню хочется отдельно......а в трешке можно и объеденить кухню с гостиной.
Решать вам конечно)
20.02.2012
Ответить
М-Лено
только нюанс между ванной и кухней воздухопровод или как это называется. вобщем стена толщиной в см. 30 внутри почти пустая.
20.02.2012
Ответить
Ирина
вентиляционная шахта, вытяжка так сказать, вот ее вообще не трогайте, соседи снизу "задохнутся", короче нужна она и вам и соседям, а дом панельный?
20.02.2012
Ответить
М-Лено
дом панельный. внизу сейчас не живут, давно уже, но понятно это не показатель. Нет мы стену трогать не будем эту. Я вообще боюсь милый как посмотрит сейчас на ваши комментарии, ужаснется и сразу перехочет всё на свете ))
20.02.2012
Ответить
Ирина
Мне кажется что вам лучше проконсультироваться в городском отделе архитектуры по поводу перепланировки, у нас например главное чтоб не трогали капитальные стены, да и чертежик у вас не правильный, одна капиталка не указана, нарисована как перегородка, поэтому может ввести вас в заблуждение при перепланировке. Кстати у меня такая же квартира, только без верхней спальни, ванна увеличена также, а кухня соединена с залом.
20.02.2012
Ответить
М-Лено
а у нас такой план на нём вообще не видно где несущие стены а где капитальные. А как Вы разглядели?
20.02.2012
Ответить
М-Лено
любопытно) не думали. Но тут подсказывают " а как же кладовка?" сейчас там как раз кладовка...из этих комнат верхняя - спальня, нижняя будет детской в будущем
20.02.2012
Ответить
*Алинка*
вот этот "апендикс" - выход из кухни (первоначальный план) обязательно должен быть. Другой вопрос, что вы можете назвать для утверждения это встроенным шкафом, но тогда все равно ванную там нельзя поставить, т.к. у "аппендикса" должны быть боковые стенки (которые сейчас есть). И второе - выход из ванной и туалеты не может выходить в зал(((Это если говорит об офиц. утверждении.
20.02.2012
Ответить
М-Лено
а как тогда можно решить вопрос по увеличению пространства именно кухни? или уже ничего не изменить?
20.02.2012
Ответить
М-Лено
стенку вроде хотим убрать (если проект дома позволит), но как тогда быть с выходом из ванны при объединении площади с коридором, Вы говорите, что нельзя в зал выход из ванны.
20.02.2012
Ответить
*Алинка*
если утверждать, то нельзя(((возможно, оставить вход в ванную там , где он и есть, убрав только стенку между нынешней ванной и коридорчиком на кухню (за исключением того , кот. я желтеньким выделила) и оставить официально нынешний коридорчик коридорчиком, в кот. и будет выходить туалет-ванная.
20.02.2012
Ответить
М-Лено
хотелось бы отметить что сейчас перегородки между туалетом и ванной нет, а вход в нынешнюю ванную комнату (совмещенную) как раз в дверь от туалета. Есть идея сделать угол скошенным (т.е ничего не меняя в принципе кроме угла) и оставить коридор который приведет в кухню.Но мне категорически хочется вход в кухню из комнаты и там обеденную зону и зону отдыха, потому что комната относительно большая и практически не используется, а вход на кухню из комнаты решит проблему с обеденной зоной на самой кухне и увеличит тем самым рабочее пространство.А т.к. говорите Вы, я не пойму- остнется коридорчик к ванной, а вход тем не менее из комнаты?
20.02.2012
Ответить
М-Лено
вход в квартиру если на плане - прямо над ванной. у меня идея сделать вход в кухню из зала-комнаты (та что 18.4 кв.м.), но тогда получается вход как сейчас в кухню.. останется не при делах. Т.к. мы не разбирались еще в согласовании, а только планируем и думаем, вот думаем как бы сделать их этой квартиры 60х годов что-то удобное и функциональное. На продажу квартиры 2ая половина не согласна.
20.02.2012
Ответить
*Алинка*
я говорю именно оюб этом маленьком кусочке, а не о всем проходе на кухню.

20.02.2012
Ответить





Красным указаны капиталки 
