моя профессия-Дизайнер интерьера))
мои работы. малая часть)![]()
![]()
![]()
![]()
![]()
![]()
![]()
![]()
![]()
![]()
![]()
![]()
![]()
![]()
![]()
![]()
![]()
![]()
![]()
![]()
![]()
![]()
![]()
![]()
![]()
.
Предоставляю услуги в создании для ВАС удобного, умного и красивого дома,а может и общественного помещения))
имею высшее образование в дизайне среды, повышение квалификации и британский диплом в дизайне интерьера.
работала в строительной компании, потом перешла на частную практику.
цены вас порадуют. совсем не кусачие. естественно будут зависеть от объемов работ и поставленных задач.
много друзей в мире отделочных работ(опытные бригады строителей, окна, кондиционеры, натяжные потолки,встроенная мебель и многое другое-готова поделиться контактами даже если вы не будете делать дизайн-проект))
могу помочь как в маленьких вопросах вашего ремонта так и в масштабных решениях.
стоимость полного дизайн-проекта для ББ 1000р кв м!!! ЗА ПРЕДЕЛАМИ НАШЕГО САЙТА МОЯ РАБОТА СТОИТ ОТ 2500 Р ЗА КВАДРАТ.
состав проекта на квартиру:
- План существующего положения. Обмеры.
- Демонтажный план.
- План возводимых перегородок.
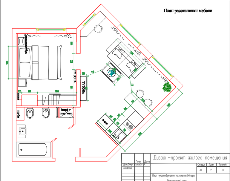
- План расстановки мебели. Экспликация помещений.
- План расстановки сантехники.
- План потолков. Разрезы.
- План привязки потолков.
- План расстановки светильников.
- План привязки светильников.
- План расстановки и привязки выключателей.
- Плен управления светом.
- План расстановки и привязки розеток.
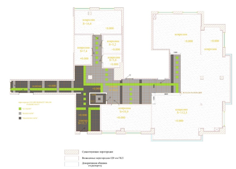
- План полов.
- План теплых полов.
- План дверей и ведомость дверных проемов.
- Развертка стен и TV зоны и диванной группы гостиной.
- Развертка стен спальни.
- Развертка стен с/узла.
- Развертка стен кухни. «Фартук».
- Ведомость отделочных материалов.
буду рада сотрудничеству и полезным знакомствам












.



\



коллекции 10-летней давности. после представления на общественный суд многие производители своровали идеи)) надо было патентовать))
.

































