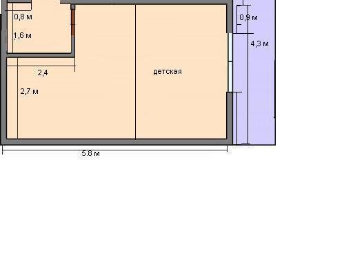
Вопрос про ширину комнаты
Решили мы все-таки отделить ребенку свою комнату.

Встал вопрос какую сделать ширину комнаты.

По ширине комнаты хотим поставить ребенку кровать, кровать-чердак. Т.е. это не менее 2,20 м.
Девочки, если вас не затруднит напишите длину ваших кроватей, полностью с лесенками со шкафчиками, можно и ссылочки на ваши кровать вставлять.
Буду благодарна за любые советы.