Мама мальчика (3 года), жду мальчика, 26 неделя
Лодейное Поле
голову всю сломала ,помогите!!!!
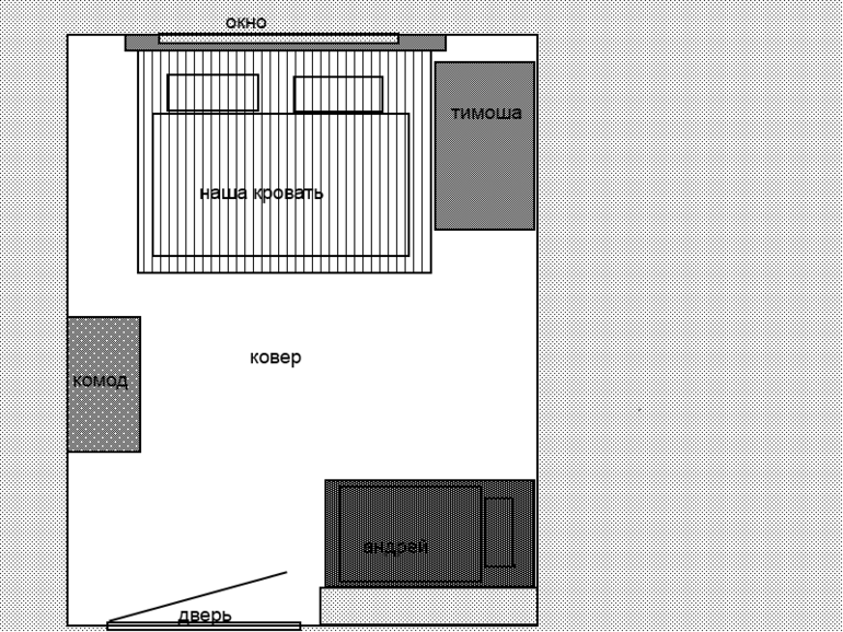
Девочки,такая ситуация ,комната 3x3.5,не умею расставлять мебель,вот что получилось,какой вариант вам нравиться?на картинке взрослая кровать ,кровать для сына 3.9 мес.(односпалка) и кроватка для новорожденного+комод для пеленания и тумба для мужа,особенность комнаты в том что часть стены выпирает во внутрь комнаты((((Или может у вас свой вариант есть ,советуйте делитесь своими мыслями )))ремонт надо срочно делать до родов всего осталось 4 мес))))завтра буду клеить обои по в состоянии их клеить))))) андрей старший,тимоша скоро будет)

Мама двоих (15 лет, 28 лет)
Москва
Женя,добрый вечер, не очень понятно с размерами, у вас кровать получается в ширину больше чем в длину. Чтобы была возможность прикинуть, надо знать размеры мебели.
0
09.11.2014
Ответить
Мама троих (15 лет, 11 лет, 7 лет)
Лодейное Поле
дак ,это понятно я просто примерно набросала как будет она стоять ,но завтра обязательно смерю все и вечером размерчики напишу)
0
09.11.2014
Ответить
Мама двоих (15 лет, 28 лет)
Москва
конечно,ведь от размеров зависит и расположение-что куда влезает,а шкаф и телевизор есть?
0
09.11.2014
Ответить
Мама троих (15 лет, 11 лет, 7 лет)
Лодейное Поле
шкаф и телек в гостинной
0
09.11.2014
Ответить
Мама троих (15 лет, 11 лет, 7 лет)
Лодейное Поле
я еще думала ,может сын спать будет в гостинной(не будет ли ревновать что мелкий с нами спит ,а он в другой комнате?)
0
09.11.2014
Ответить
Мама двоих (15 лет, 28 лет)
Москва
Если старшего переселять в гостинную, то уже сейчас, чтобы он не так остро почувствовал связь с рождением малого. Но а если это будет кому то из вас не удобно, всегда можно его опять поселить с вами. Места у вас достаточно.
0
09.11.2014
Ответить
Мама мальчика (15 лет)
Москва
Евгения, а мебель уже есть? Или планируется? Просто если её нет можно прикинуть варианты.
0
09.11.2014
Ответить
Мама троих (15 лет, 11 лет, 7 лет)
Лодейное Поле
есть комод ,кровать наша ,кровать сына(нету кроватки для мелкого и тумбы)
0
09.11.2014
Ответить
Мама двоих (19 лет, 11 лет)
Долгопрудный
а что если не куда отселять старшего? ну бывает же такое..в тесноте так не в обиде....я считаю что в такой маленькой комнате **взрослая** кровать должна быть меньше или хотя бы продаютсЯ ядиваны кровати аккордеоны..раскладываешь -спишь .Утром все складываешь и деткам есть где побегать..и места больше.
0
17.02.2015
Ответить
Мама двоих (23 года, 12 лет)
Москва
Второй вариант удобнее. У нас стояла супружеская кровать так, у окна. А лучше старшего отселить. Режимы будут разные. Да и старшему мальчику ночью крепче спится, зачем его беспокоить?
0
10.11.2014
Ответить
Мама мальчика (14 лет)
Тосно
Здравствуйте! Мне оба варианта не нравятся — люди спят ногами к двери(((...я за отселение старшего в другую комнату. тогда можно выбрать первый вариант, но без кровати для Андрея....
0
17.11.2014
Ответить