Помогите, люди понимающие в проектировании квартир:)
КонсультацииУ нас с мужем во владении есть трешка, сталинка, кажется, типичная если быть точнее.
Встали в очередь на через год на капитальный ремонт.
Но у меня, хоть убей, ничего не влазит на плане. Особенно обидно за кухню и ванную. Мне не много надо, но то, что надо ОЧЕНЬ не влазит)
Рассматриваю вариант снести стены по необходимости и перестроить заново, но не могу придумать как. Может кто разбирается? Или была похожая планировка. Фантазия вообще не работает...
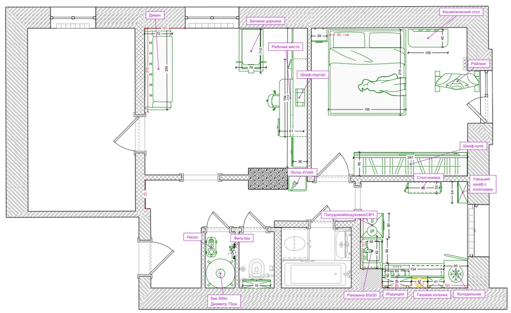
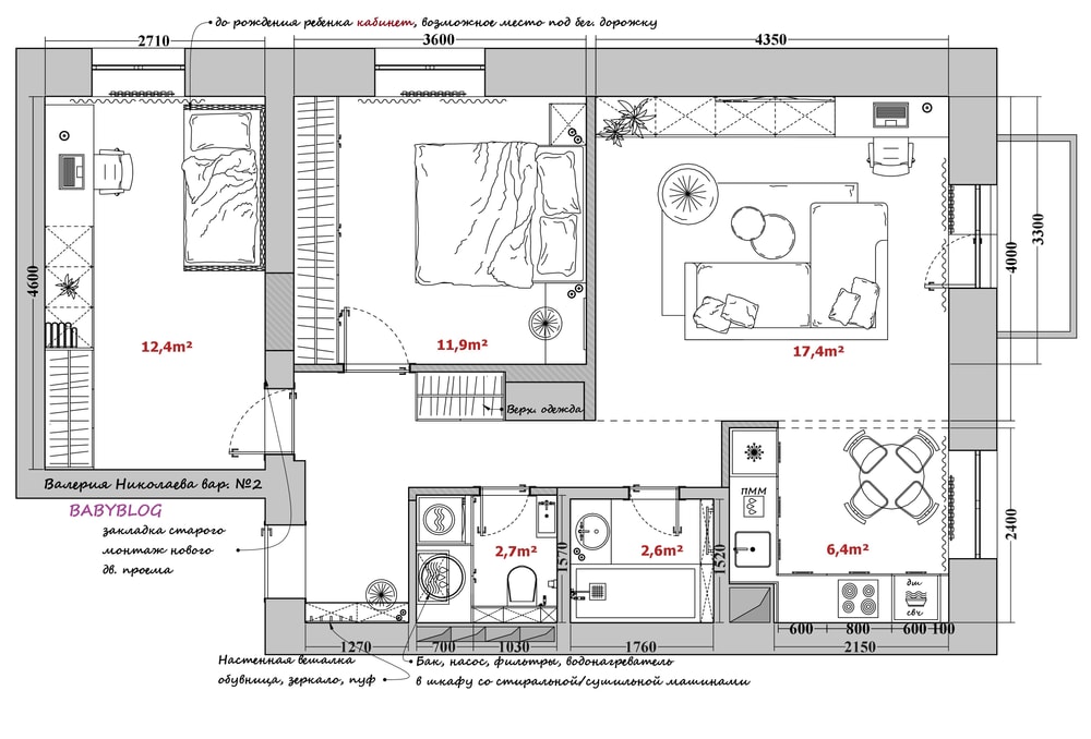
Исходную планировку и мои наброски где я пыталась впихнуть в то что есть.
Из важного:
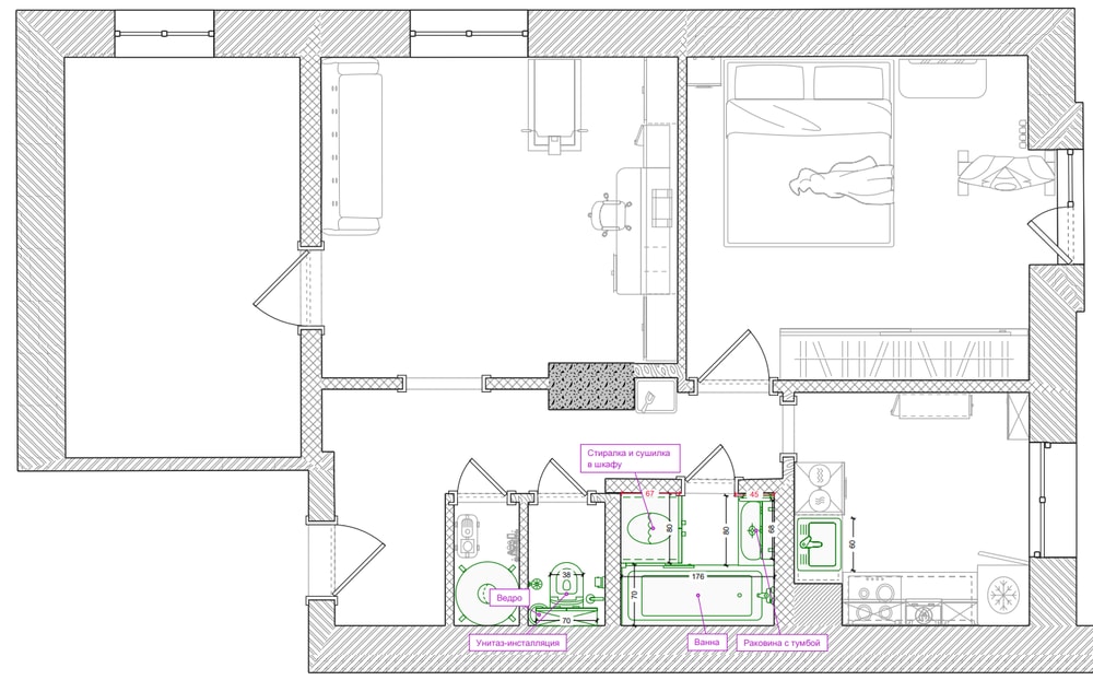
1)Первая комната у входа это бывшая кладовка, нам нужно установить систему автомат. снабжения водой на квартиру и я отвела эту комнату под водоузел (бак 73см диаметр, насос, фильтры магистральные 3шт)
2)Туалет и ванную хочу оставить раздельными.
3)В ванную нужно впихнуть ванну, колону из стиралки и сушилки и раковину с тумбой
4)В кухню нужно впихнуть колону из посудомойки+духовка + СВЧ, холодильник полноразмерный 69 глубина х 60см ширина, раковину хотя бы 60х45см и место для рабочей зоны оставить на 1 человека буквально. Стол планируем навесной раскладной, ибо почти не едим на кухне и особо не вижу вариантов как его поставить чтоб не упираться в него при входе.
5)Жилые комнаты - детская (пока пустой остается), детей нет, спальня наша и гостиная (важно туда впихнуть беговую дорожку 110*76см в сложенном виде и мое рабочее место, и как можно больше шкафов ибо кладовки мы лишаемся...
6) На схеме есть несущая колона по центру, а в кухне в углу вентиляционная колона. Также стена между детской и гостиной потенциальной несущая.
7) Думала кухню с гостиной совместить, но не понимаю как это обыграть, чтоб спальни не были проходными.



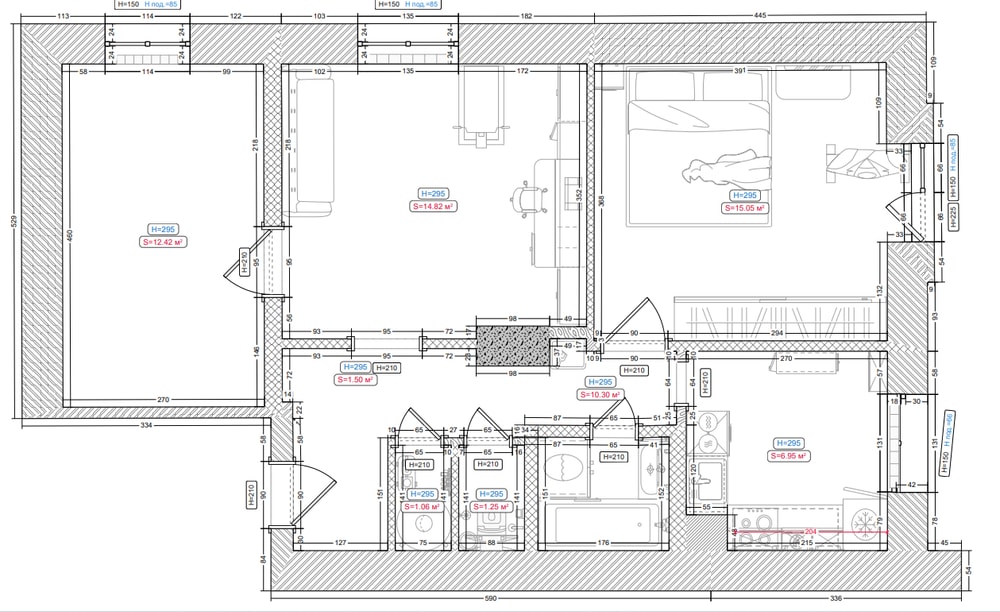
Также вот оригинальная схема в тех паспорте

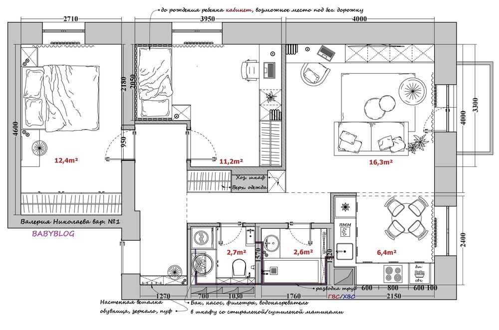
Лучший ответ
Вар. №2. Глобальное отличие - перенос дв. проема в детскую - пом. №8. Учитывая верхний - 2 ой этаж, думаю, все реально.