Home, Sweet Home
Строительство: от фундамента до крышиБольше года выдумывали проект, в итоге вот он, наш уютненький домик
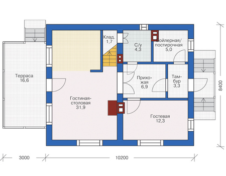
сижу на работе, а мыслями вся в стройке, ремонте)) в проекте(тот что ниже) будут некоторые изменения: терраса у нас будет полноценным отапливаемым помещением, только с окнами почти в пол) и санузел на 2м этаже будет совмещенным.. проект пока не покупали, строим с помощью строительной бригады из пенобетона, проект будет куплен после постройки) :) смету уже рассчитали, закупка материалов начнется со следующей недели)


общая площадь 125 м2, но будет еще навес для машин..
вот картинка домика)

Забава
Для инженерки как таковой глобальный проект не нужен...им хотя бы рисунок в архикаде с размерами...а там они сами нарисуют свой проект)) так что зачем тратиться. когда уже будет построен дом..
11.10.2013
Ответить
Оксана
Как я Вас понимая, сама недавно чуть мозг не вскипятила себе, пока проект продумывала. Лично я бы в этом проекте вот что поменяла:1. на 1 этаже вход в кладовку сделала бы с кухни, для хранения различных продуктов, утвари, может туда и мини морозильная камера войдет. Зачем кладовка в с/у, тем более он у вас не маленький, и стена там у Вас капитальная.2. вход в гостевую комнату сделала бы из гостиной, чтоб в прихожей стену освободить для большого шкафа купе, а то у Вас в прихожей нет цельной стены. все дверьми разбиты.3 на 2 этаже, согласна что с/у должен быть совмещен, значит вторая дверь не нужна и место у окна в холле я бы использовала как гардеробную в спальне (которая 13.6 м).но это чисто мое мнение, и если Вам пригодится, буду рада
02.10.2013
Ответить
Ket
Проект очень похож на наш...только у нас побольше 8*10 с цокольным этажом, а так все практически один в один, исключая некоторые детали. Планировка действительно очень удачная и удобная. Мы в этом году уже переехали, теперь у нас внутренняя отделка впереди. А вам удачи!
27.09.2013
Ответить
artbrigada
АртБригада. Фабрика
дизайна. http://www.art-brigada.com/ Дизайн интерьера
онлайн 250 руб м2! Дизайнеры в сети с 9-00 до 22-00! Живое общение!
Дизайн проект не выходя из дома! http://yadi.sk/d/wwqO9wB66xiMV
наши проекты - для примера - сейчас в работеhttp://yadi.sk/d/McDpxzh56xgOE
наши визуализации - из последних http://yadi.sk/d/L5QUqvDz9KZMF
наши отделочные работы - реализованные проекты Подбор материалов)
Отделочные работы "под ключ") Работаем удалённо - по
России.Ищем надёжных
партнёров. Предлагаем постоянно и продуктивно сотрудничать. Мы дарим позитив:
Клиенту - красоту и комфорт.Отделочнику и
Мебельщику - чертежи для работы.Магазину - грамотные
продажи отделочных материалов.Риэлтору -
благодарность. Skype: art-brigada.com
- Приоритетный способ связиТел 8 (800) 333 48 55
- звоните бесплатно) по России) (495) 215 56 02
в Москве(831) 280 85 02
в Нижнем Новгороде
23.09.2013
Ответить
Мама- Кошка
Хороший проект! Мы почти такой же выбрали, а пока на этапе вынесения границ и разрешения на строительство....весной начнем.А почему проект покупать после постройки?
23.09.2013
Ответить
Тюлька
проект по хорошему нужен только на этапе проводки инжинетрки итд., вроде) хотя смотря из чего стороить... каркасник-конечноже исключительно по проекту например...
24.09.2013
Ответить
Олька
А для ПМЖ не маленький домик? .. Планировка уютная, удобная, продуманная, но чет мне кажется малясь маловат домик :((, хочется внешние стены немного раздвинуть .. ну 10х12 - 12х14 ... В своем доме простора хочется что ли .... :))p.s. возьму на заметку проектик :))p.s.2 :)))) чем дольше на него смотрю, тем больше он мне нравится :)))
23.09.2013
Ответить
Тюлька
лишние метры-это затраты на отделку, а комнаты 13-14 м для сна-более чем нормально) сейчас мы живет в 16м втроем)
24.09.2013
Ответить
Олька
Да конечно же я не спорю и это ваш выбор :)))У свекров есть дача с небольшим домиком 4х5м + веранда :)), его вроде хватало .. до поры до времяни :)). Когда семья стала разрастаться - женились сыновья, родились внуки, домик стал тесноватым. Домику пришлось расти :))).. Сейчас он уже 6х8м + отдельно летняя кухня :)) .. И сейчас, когда на этой дачке отдыхаем только мы с мужем и нашеми детьми, дачка все равно кажется нам маловатой, поэтому мне и хочется в своем доме простора :)) ..А по лишним затратам на отделку .. ну не все сразу, сначала первый этаж отделать можно, а потом потихонечку, пусть даже за 3-5 лет, отделать второй этаж .. никто ведь не гонит :)) .. Ну вобщем это только мое мнение/мысли :))) .. Спасибо Вам за этот пост и за ВАШ проектик .. взяла его на заметку :))) ..p.s. а Вы его на каком то сайте нашли? можно ссылочку на него сюда или в личку?
25.09.2013
Ответить
Елена
у нас практически такой же дом для сезонного проживания. комнаты спальни по 15 метров многовато, а вот гостиная маловата. Когда смотрела проект, строились не представляла масштабы , а когда все готова поняла, что сейчас бы изменила ......
13.11.2013
Ответить
Alan_Billy
Очень здорово! А Вы там на постоянном проживании или сезонный дом типа дачи будет?
20.09.2013
Ответить
Alan_Billy
Здорово!!! А не подскажите строительную фирму? Мы хотим дом на круглый год,но не для пмж. Никак не можем нормальную компанию подыскать
21.09.2013
Ответить