Шаг к дому мечты - Проект дома
Обсудим проектВсем привет,
Хочу поделить своей маленькой радостью, дом моей мечты обретает очертания. Проект будущего дома - почти финал :).
Два года назад мы купили участок - 19 соток "дикой" земли (вытянутый участок с небольшим пролеском и полянками). Т.к. кризис не позволил замахнуться на основной дом, то мы построили небольшой, но комфортный гостевой домик (по нему осталось навести внешнюю финальную "красоту" и я его покажу), в нем мы сейчас живем когда приезжаем на дачу. Также обзавелись садовым домиком (надо же где-то хранить кучу "полезных" вещей для дома и сада) и залили парковку.
В этом году стали активно заниматься участком (той половиной на которой гостевой дом): вырубили часть деревьев, в планах дорожки, газон, цветочки и грядки (тут генералит моя мама, которая увлекается огородом и садом, а мы с мужем лишь для "купи", "привези", "подай", "принеси", "прибей" и пр.).
НО! Мысли о большом доме все не давали мне спать и мы решили, что в этом году мы закажем проект и сделаем "нулевой цикл" (под ним я понимаю все земельные и бетонные работы - фундамент, парковка большого дома, м.б. колодец и пр).
Мы заказали проект дома и это так волнительно обсуждать то, что скоро (я надеюсь) станет реальностью. Внешний вид дома мне нравится и в основном меняться не будет (обсуждаем лишь цвет, обрамление окон и пр. мелочи), а вот внутренне убранство пока обсуждаем внутри семьи, т.к. есть два варианта и каждого свои плюсы и минусы. Все еще в работе, но близится к финалу :)
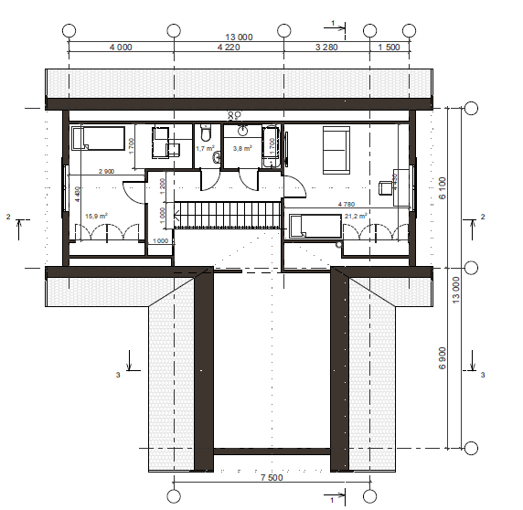
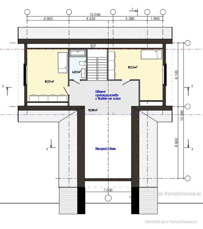
Дом разноэтажный, есть крыло кухня-гостиная-столовая (будет с открытым потолком с балками) и двухэтажная часть со спальнями, ванными и тех.помещением. Схему участка приложила (но на нем парковка еще в старом варианте, мы ее разместим зеркально). Приложила два варианта внутренней планировки (первый исходный от нанятого архитектора и четко по моим "хотелкам", а второй предложенный сторонними архитекторами при открытом обсуждении ). Я вот пока в раздумьях...но приятных :)
Буду рада комментариям :)




