Проект дома 🏡
Обсудим проект
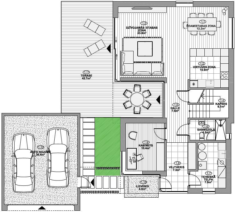
Пока на руках имеем вот такой проект. По количеству комнат устраивает полностью (3 детских, мастер спальня, кабинет, 3 санузла), а вот по расположению - не понятно пока. Что-то наверняка можно улучшить, как-то более грамотно место использовать.
Советы и конструктивная критика приветствуются. Интересно послушать что бы вы изменили в таком проекте и почему?
✅Балкон в одной из детской уже решено убрать. Да, это украшает дом снаружи, но не безопасно для ребёнка и крадет место у комнаты.
Лучший ответ
Marika
про балкон правильно! не нужен он, есть же двор и терраса :) три санузла для семьи с тремя детьми must have! :)
12.01.2022
Ответить
beauty_lisha
Анастасия, не хочу делать им гардеробную, там будет бардак, а убирать его мне.
Планируем каждому встроить большой шкаф для вещей, до потолка (2.8м). Уверена, что места хватит. На данный момент у мальчишек два маленьких шкафчика IKEA на 3-их.
12.01.2022
Ответить
Elena
Не знаю на сколько для вас актуально иметь закуток для стола, но я бы его использовала более рационально:
Если возможно вносить изменения в проект, то на этом месте разместила бы гостевую-кабинет. А на части бывшего кабинета гардеробную. Соответственно тех. Помещение можно чуть увеличить. А можно и поделить на 2 помещения: бойлерную и на постирочную.
Если возможно вносить изменения в проект, то на этом месте разместила бы гостевую-кабинет. А на части бывшего кабинета гардеробную. Соответственно тех. Помещение можно чуть увеличить. А можно и поделить на 2 помещения: бойлерную и на постирочную.
13.01.2022
Ответить
beauty_lisha
Elena, очень классно!!! Спасибо большое, покажу архитектору! Если так разрешат, сделаем так ♥️
Но мне кажется загвоздка в том, что там внизу этот кусочек «террасы» сделан потому что мы уже превысили разрешённый метраж на «жилую площадь». Но архитектору покажу, так конечно гораздо лучше используется пространство!
13.01.2022
Ответить
Elena
beauty_lisha, тут появилась гардеробная, что не является жилой площадью. Она может быть по площади как раз как этот закуток для стола на проекте-источника. Таким образом жилая площадь не увеличиается.
13.01.2022
Ответить
beauty_lisha
Elena, у нас такие помещения считаются жилыми, не жилое - это терраса и гараж, все 🙈
13.01.2022
Ответить
Joy
Я бы сейчас сделала постирочную на 2-м этаже , как у соседей. У меня на 1-м, там сушка,стиралка, гладильная система, пылесос и тв, огромная раковина и мне неудобно вещи, белье м первого на второй, со второго на первый перетаскивать . Еще по первому этажу у нас на входе гардероб, там вся одежда и под ней обувь , в дом заходишь зеркало от пола до потолка по бокам бра, никакой одежды и обуви. По второму этажу, в одной из детских где будет шкаф? Мы сделали комнаты без шкафов, при каждой гардеробная. У младшего сына в гардеробной стол стоит , там еще и мастерская. Лепить, красить. Стол в комнате только для учебы.
12.01.2022
Ответить
beauty_lisha
Joy, с расстановкой мебели будет работать дизайнер, пока не знаю где будет шкаф))
13.01.2022
Ответить
Elena
beauty_lisha, поддержу мысль о постирочной на втором этаже. На самом деле сейчас машинки не шумные и за закрытой дверью ее практически не слышно, но столько экономится сил и времени при исключении хождения по лестинице с грудой белья. Мы поставили стиральную машинку на 1 этаже (5 кг) и большую на втором. На первом я стираю кухонный текстиль, а на втором белье и вещи. А еще сделала так с мыслями о будущем. Предполагаю, что дети вырастут и будут приезжать к нам со своими семьями, а там будут дети и чтобы и нам и им было комфортно, то они могут пользоваться постирочной на втором, а мы (с мужем) на первом (там же и гостевую комнату предусмотрели). А пока мы все на втором, наши мамы (останавливаясь в гостевой комнате) пользуются машинкой на первом по своему усмотрению.
13.01.2022
Ответить
Елена
Не совсем понятно как организована прихожая, где будет верхняя одежда, обувь? В одном доме у меня гардеробная была на первом этаже и для меня это был самый удобный вариант, не надо было вещи по всему дому носить, стирка, глажка (гладильная Система стояла в гардеробной) и вещи на одном этаже-красота😂 сразу приходила, переодевалась, не надо было наверх бежать.
12.01.2022
Ответить
beauty_lisha
Елена, то, что носим в данный момент - на входе, в шкафу (углубление в стенке на входе -шкаф).
Что не носим - в гардеробной. Гардеробную, нашу, хочу увеличить немного, ванную наоборот уменьшить, мне в принципе ванная не интересна, мы с мужем привыкли использовать душ.
Стирка/сушка - в техническом помещении на первом этаже (7.9м)
12.01.2022
Ответить
Елена
beauty_lisha, у нас ванна только у детей, но восьмилетка уже в душ ходит, так что скоро нам ванна станет бесполезна, я тоже равнодушна. А гладить где планируете?
12.01.2022
Ответить
beauty_lisha
Елена, у нас дети пока маленькие, младшему 2, среднему 3. Ванную одну оставим, ну и может мы с мужем когда-нибудь найдём время чтобы там полежать))) но это вряд ли 😁
Гладить планирую в гардеробной, хочу встроенную систему, с паровым утюгом. Взял вещь, погладил, надел)
12.01.2022
Ответить
Елена
beauty_lisha, одна точно нужна, но строительство дело не быстрое, через пару лет у вас могут поменяться запросы. В любом случае у вас красивый, современный дом, жду продолжения)
12.01.2022
Ответить
beauty_lisha
Елена, Мы планируем строить где-то 1.5-2 года по срокам как я поняла. Там уже будет зависеть от строителей и от того на сколько вовремя нам будут поставлять все материалы.
12.01.2022
Ответить
Елена
beauty_lisha, главное, что бы были деньги, при строительстве это самый Главный ресурс-много денег. Мы в итоге заехали, а Мебель, текстиль ещё несколько месяцев ждали, благоустройство делали, уже когда жили, иначе бы ещё на полгода-год растянулось.
12.01.2022
Ответить
beauty_lisha
Елена, мы в любом случае будем брать кредит, иначе так можно строиться все 5, а то и 10 лет. Мебель ещё на этапе стройки планируем заказывать, это как раз то, что банк не финансирует, а мы это можем заранее заказать.
12.01.2022
Ответить
Елена
beauty_lisha, не знаю как у вас, у нас в ипотеку долго строиться банк просто не даст, во первых смету смотрят тщательно, если вдруг не хватило денег, добирай еще кредит, но дом достраивай, банку нужен готовый объект. И строительное разрешение выдается на 2 года, продлять можно, но геморно.
12.01.2022
Ответить
Ира
Елена, Ого😮 А я наоборот мечтаю, когда уже доделаем ремонт у себя в доме и я понежусь в ванне))
12.01.2022
Ответить
beauty_lisha
Ира, у нас в квартире ванная, лежала я там за 3 года - ровно один раз, когда мне прихватило почки и ничто не помогало, решила лечь в тёплую ванную, пока жду скорую 🙈
А больше не было ни времени, ни желания)
Но… в доме, в ванной рядом с окном, с красивым видом, я может и нашла бы время полежать)))
12.01.2022
Ответить
Ира
beauty_lisha, Жила в квартире где была ванна, постоянно с мужем лежали, теперь некоторое время живём у родителей где только душ- очень скучаю по ванне
12.01.2022
Ответить
Елена
Ира, ага, у нас в первом доме была огромная ванная комната, с огромной джакузи, телевизор, окно, я представляла как я буду лежать в пене с фужером шампанского и смотреть любимый фильм😂 за два года так ни разу и не полежала, вообще желания не возникло. Сейчас в новом доме такая же ситуация с бассейном, думала каждый день буду плавать, в сауну ходить😂 ну раз в 2-3 месяца может поплаваю.
12.01.2022
Ответить
Ира
Елена, Жила в квартире где была ванна, постоянно с мужем лежали, теперь некоторое время живём у родителей где только душ- очень скучаю по ванне
12.01.2022
Ответить
Елена
Ира, я иногда принимаю скипидарные ванны-все, муж только душ, младший ребёнок любит пока в ванне поиграть. Для кого-то ванна, это место отдыха, для меня это только гигиенические процедуры, я и СПА не люблю, и бани.
12.01.2022
Ответить
Orchid
Комментарии все не читала, поэтому, если я повторюсь, то заранее извиняюсь.
Начну с детских, они тесноваты, пока детки маленькие, это не ощутимо, но, когда они будут расти, то станет не очень комфортно. Я не заметила в их комнатах места для гардеробных и спортивного уголка(конечно, может зона игр и спорта будет где-то отдельно в доме), но для многодетной семьи очень важно иметь пространство для детской рекреации. Что касается, детского санузла, тоже маловато, особенно в будущем, когда надо будет всей семье одновременно по утрам собираться в школу и т д
Подумайте, где будете сушить и гладить белье, как постельное, так и вещи.
Терасса прям красота, но если резко польёт дождь, надо будет так же резко собрать лежаки и куда-то их убрать.
Подумайте, как будете таскать сумки с продуктами от гаража до кухни, у вас на плане это длинный путь. Хотя, если будет тележка как в магазине... Кстати, не увидела у вас никакой кладовой на кухне, где вы будете хранить запасы продуктов, холодильник прямо крошечный, надо больше места под холодильник, плюс место для хранения уборочного инвентаря. Очень мало места для гардеробных, для обуви на первом этаже. В остальном, очень стандартный план, хорошо бы еще понимать, где стороны света. Удачи вам !
16.01.2022
Ответить
Ольга Кучко дизайнер
В целом хороши проект, красиво и стильно:)
Но сходу смущает кухня без окна. Боковой свет из зоны столовой - не факт, что будет достаточно…
Из опыта как дизайнера: делала дизайн нескольким моим заказчикам после дизайна квартиры. Так как знали уже процесс работы по дизайну и обратились ДО утверждения проекта домов, то при детальной проработке расстановки мебели и особенно сантехники ОЧЕНЬ много мелочей выскакивало. И буквально туда-сюда на 15-30-50 см перегородки, окна или вентшахты подвигать сразу - выгоднее вырисовывается все.
Поэтому если собрались в дальнейшем заказывать дизайн-проект или хотя бы расстановку мебели, то по факту именно сейчас САМОЕ время для этого.
Из личного опыта проживания в доме: удобно иметь отдельную черновую кухню или хотя бы частично изолированную зону готовки.
Холодная кладовка на кухне. Большая прихожая с окнами и умывальником для обуви и собаки. Выход из столовой к зоне барбекю на улице, близко к кухне. Большой холодильник плюс морозильник.
И ещё у меня была вторая мини-гостиная на втором этаже, где часто дети и их гости тусовались, когда уже подростки.
В таком объемном открытом пространстве потолки лучше 3-3,2 м, иначе прибитое будет ощущение - проверить лестницу по количеству ступеней…
Лестница должна быть очень удобной. Я бы для себя следующий дом вообще только одноэтажный рассматривала:).
16.01.2022
Ответить
Екатерина
Я бы себе в спальне сделала балкон... А в плане безопасности, у нас в доме даже окна закрываются на ключ. Мастер-спальня огромная по метражу, учитывая отдельный гардероб. По мне так бесполезная трата метров. Лучше гардероб и ванную увеличить или тот же балкон сделать. Кстати, у нас на двоих комната-гардероб 7 кв.м, впритык хватает.
14.01.2022
Ответить
Екатерина
Елена , выйти подышать перед сном или спросонья, осмотреть окрестности, да и просто эстетически красиво, когда в теплую погоду он приоткрыт и ветер колышет занавески. Но это, конечно, дело личных предпочтений.
15.01.2022
Ответить
Елена
Екатерина, спасибо) ещё раз убедилась что правильно сделала, отказавшись от балкона, для таких выходов надо тапки около балконной двери держать или полы там каждый день мыть, для открытого окна балкон ни к чему, окна в пол, занавесок у меня не будет.
15.01.2022
Ответить
Никто не бородавочник
мне понравился проект, если бы не мои консервативные взгляды (что дом должен выглядеть как на детских рисунках, квадрат и сверху треугольник) )) вообще крутой!
только вопрос, будет ли дневной свет в холле на 2 этаже? или только свет включать.
14.01.2022
Ответить
beauty_lisha
МарУ, там на плане не совсем понятно, будет такое окно, метра 3 в высоту, может даже до ступенек доведём его, посмотрим сколько это будет стоить)))
14.01.2022
Ответить
Ждунок
Не читала все коменты, а в техническом помещении у вас и постирочная? Одну интересную мысль видела (и себе взяла в план дома) постирочную ближе к ванной или спальне (чтоб не далеко нести грязное/чистое бельё)
Просто как идея 😊
12.01.2022
Ответить
beauty_lisha
Ждунок, да, там же будет стоят симпотная машина и сушильная машина. Не хочу их ставить в ванную.
В плане - носить ближе, соглашусь. Но я бы больше думала о том, что они издают шум и будут мешать спать, если будут в ванной под боком. Мне кажется чем эти машинки дальше от спален, тем лучше.
12.01.2022
Ответить
Ждунок
beauty_lisha, возможно 🤷🏻♀️, но современные машинки не сильно шумные и я об этом не подумала, т. к. стирки у меня не во время когда кто-то спит (у меня годовасик с 2 снами) 😊. У нас планировка другая, я архитектору выдвинула такое пожелание, вот.. Калдует пока 🤦🏻♀️, но, наверное меня уже тихо ненавидит 🤭. Поэтому и вам посоветовала 🙈, у вас план 👍🏻👍🏻👍🏻
14.01.2022
Ответить
beauty_lisha
Ждунок, у нас стирка несколько раз в день и обычно вторая стирка вечером, когда все дети вернутся с прогулки (это грязно))), а ночью сушка, она конечно не сказать, чтобы прям гремит, но ставить ее себе «под бок» я бы точно не хотела… это шум на 3 часа, в ночное время, так себе история :/
Удачи вам с архитектором! Если не секрет, сколько с вас взяли за проект?
14.01.2022
Ответить
Ждунок
beauty_lisha, у нас 5 тысяч проект, не знаю много это или мало, знакомый посоветовал к нему и обратились 😊
14.01.2022
Ответить
Оставшиеся комментарии доступны после регистрации
Зарегистрируйтесь и получите полный доступ ко всем функциям сайта.