Спец прога на компе для рисунков
Интерьерное решение гостинойДа простит меня администрация, если ошиблась разделом.
Подскажите, в какой программе можно нарисовать вид комнаты с ремонтом и мебелью и где ее скачать.
А то рисую я из рук вон плохо, а хочется видеть как будуТ выглядеть задумки.
Спасибо
Катерина
вот я тоже пошарила в инете. Икеевская прога у меня не работает. А другие простенькие программки скачиваются и просят пароли и прочую ерунду((((
18.02.2012
Ответить
Fanny
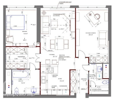
Мебельный план с расстановкой мебели выполняется в программах Archicad, Autocad (надо покупать программу), а если хотите сделать картинку как фото после ремонта, то Вам нужна программа 3D Max (тоже купить).Если 2 первые можно освоить и самостоятельно, но требуется время.3D Max достаточно сложная программа и надо ходить на спец. курсы.Прикладываю примеры о чем идет речь.С ув,Ольгаe-mail: info@wb-design.ru
http://www.wb-design.ru/



15.02.2012
Ответить
Аллочка
Ой, красота, да уж, понятно, что просто так рисовать не получится )))Спасибо большое )))
16.02.2012
Ответить