Двушка из однушки?
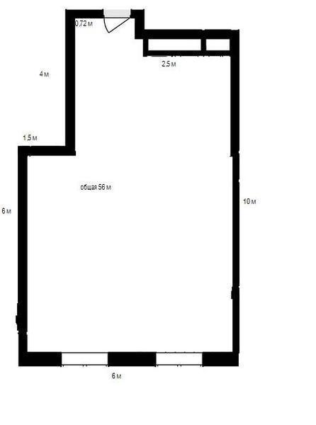
Вот есть квартира 56 м кв., теоретически предполагается однушка, но очень хочется из неё сделать двушку. У меня есть некие задумки, но хотелось бы увидеть взгляд со стороны ) у кого какие идеи?
Tigra
Очень часто для зонирования пространства используют стеллажи для дома. http://www.sdelai-sam.com
Посмотрите на сайте готовые проекты, ведь смотрятся они очень стильно, зрительно расширяют пространство и служат хранилищем для вещей. и не придется стены возводить!
27.03.2012
Ответить
Вера (дизайн интерьера vera-vasilenko.ru)
http://idea.ivd.ru/gallery10.xgi?pid=56 посмотрите эту квартиру, конфигурация немного другая, но идею можно использовать. кстати эта квартира выиграла конкурс журнала Идеи вашего дома, так что можно смело ориентироваться )
27.03.2012
Ответить

