Как расположить мебель на кухне. Сложный вариант. Помогите пожалуйста!
Интерьерное решение кухниЗдравствуйте, уважаемые участники сообщества!
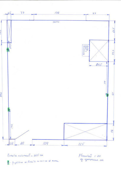
Посоветуйте пожалуйста, как расположить мебель на кухне, имеющей два воздуховода, закрытых коробами немалых размеров. Короба убрать или уменьшить нельзя. Еще на одном из коробов установлен газовый котел, переместить который также невозможно.
Площадь кухни вроде позволяет сделать красиво и удобно, но 2 воздуховода по правой стене сильно уменьшают рабочую зону. Очень нужно решение, которое позволит "обыграть" воздуховоды таким образом, чтобы максимально увеличить рабочую зону, например, добавив вертикальный выступ в виде барной стойки, справа при входе в кухню, если смотреть лицом к окну. Газовая плита и раковина должны быть в тех же местах, как на рисунке слева. На кухне также нужно предусмотреть место для техники: духового шкафа, вытяжки, микроволновки, пароварки, и если получится - посудомоечной машины. Куда затем поставить стол, стулья и холодильник? Какой цвет подойдет к бело-голбым обоям, чтобы все более менее сочеталось? Помогите пожалуйста, буду очень признательна.
С уважением, Наталия.


Ниже представлены фото кухни в текущем состоянии.







без изысков как-то так....придется правда частью окна пожертовать


Вот фотки кухни со всех ракурсов. Надеюсь чем-то вам поможет.
