Очень маленькая кухня с неудобной планировкой. Как лучше разместить?
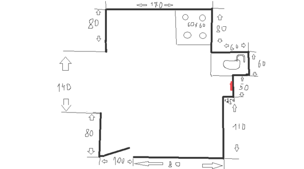
Интерьерное решение кухниСделала такой набросок с указанием сантиметров.

Плита там, т.к. подведена розетка на 320 и рядом вентиляция, а так же мойка точно на этом месте.
Красной полоской выделила место, где снизу находятся дверцы для перекрывания воды в стояке.
Слева широкий проход в комнату. В зависимости от расстановки в кухне будем думать заделывать ли проход пеноблоками.
Снизу дверь в прихожую. По сути прихожей нет, и подумала сделать на кухни шкаф для курток сделать (со штангой).
В идеале, стол обеденный маленький,
Буду рада за помощь в расстановке.
Галина 
Спасибо всем большое! Решили набить кухню по полной. А проход со стороны комнаты загородить немного шкафами, а со стороны кухни обыграть зановесками. Свет до кухни почти не доходит, а так бы со стеклянными дверьми было бы интересно.

Спасибо всем большое! Решили набить кухню по полной. А проход со стороны комнаты загородить немного шкафами, а со стороны кухни обыграть зановесками. Свет до кухни почти не доходит, а так бы со стеклянными дверьми было бы интересно.
16.08.2012
Ответить
Ксения
скачайте программу sweet home 3d и нарисуйте, что у Вас есть.
На рисунке с масштабом вообще беда. Проход в комнату, видимо, не справа, а слева. Окон нет?
Одежду в кухне вешать нерационально: все запахи впитает, жиром обрастет.
Книжный шкаф - тоже как-то не очень на кухню просится... тем более на маленькую.
14.08.2012
Ответить
Ксения
Окно, видимо, по стене с плитой...
Стол у меня влез макс. 50*60, на двоих. Дверь уменьшила до 80 см.
Окно, видимо, по стене с плитой...
Стол у меня влез макс. 50*60, на двоих. Дверь уменьшила до 80 см.
14.08.2012
Ответить
Ксения
Тогда вариант Кряшечки (похоже и хотела нарисовать, но подумала, что окно должно быть), но вместо вытяжки - фильтр и шкаф над ним, чтоб шкафов поболльше было. И холодильник можно не очень высокий, а над ним тоже шкаф.
15.08.2012
Ответить
Светик
Если заделать дверь в прихожку то холодильник можно поставить в угол и тогда поместится стол побольше.
15.08.2012
Ответить
Галина
Спасибо, програму обязательно скачаю. Очень удобна - можно посмотреть как всё будет выглядеть.
15.08.2012
Ответить
Эл
нравится вариант, наверное единственно удачный вариант..только вытяжку я бы делала встроенную, а наверх шкаф. а то мало мест для хранения.
15.08.2012
Ответить
Светик
Вариант идеальный! Я бы еще стол больше сделала. Соотвеетственно дверь в прихожку заделать. Она там и даром ненужна. А в широкий проход из комнаты будет ппопадать свет в кухню. Я бы его еще больше расширила и двери сделала стеклянными.
15.08.2012
Ответить
