как же лучше сделать перепланировку? подскажите дорогие ББшечки!!!
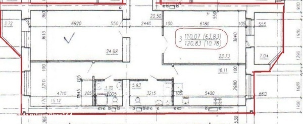
Перепланировки стен. Согласование перепланировки квартир и нежилых помещений.ДД, через неделю запланирована покупка нашей новой квартиры, да еще и в на новом месте жительства (переехали в другой город). Событие долгожданное и очень важное для нас. выбирали квартиру долго и муторно, остановились на этом варианте -

поближе 
Это оказался самый оптимальный вариант. но все равно не получилось угодить всем, так сказать. Пока план такой - верхнюю комнату слева сделать нашей спальней, ббалкон не объединять оставить его для сушки белья, гладильной доски и т.д. комнату нижнюю слева сделать детской. Верхнюю справа комнату сделать гостиной, объеденив с балконом. но на балконе сделать зону отдыха, и небольшое рабочее место. ну и кухню оставить на том же месте) с/у оставить 2 - в большем поставить большую ванну,унитаз и раковину, а так же пенал и пр. мебель. в маленьком поставить маленькую раковину, унитаз, стир.машинку и если влезет небольшую душевую в углу.
так вот в чем, собственно, основной вопрос ( а их на самом деле масса) - как лучше сделать перепланировку? хочется и в детской ребенку чтобы было место для гардеробной небольшой и место для игр осталось, а тк планируем рожать вскоре еще одного, то чтобы теоретически им двоим там было не тесно (хотя 15 метров - это оч мало, понимаю). Так же хочется объеденить балкон с гостиной, но думаю стоит ли? хочется в гостиной красивые шторы и тюль повесить, а если там будет проём, то как быть? римские и пр смотрится не так красиво, все-таки. а если не объединять с балконом, то оставлять ли дверь? удобно ли будет ходить, если на окне будут висеть портьеры... может и глупые вопросы, но вот каша какая-то в голове(((
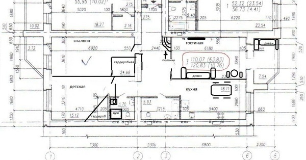
вот пока что получилось

нарисовала примитивно, но думаю понятно. чтобы хоть как-то увеличить комнату дочки хочу стену разделяющую со спальней подвинуть сантиметров на 20, так же сделать и в кухне, чтобы было чуть свободнее, т.к. объединять ее с гостиной не хочу - мне нравится когда комнаты изолированы, хотя рассматриваю вариант с межкомнатными перегородками, но не знаю как сделать чтобы было красиво и удобно.
Девочки, очень жду ваших комментариев и советов!!! пожалуйста, помогите оптимизировать пространство! буду рада если выскажите свое видение расположения комнат и возможности перепланировки.не проходите мимо, в голове такой сумбур....
З.Ы. вариант поменять местами детскую со спальней не рассматриваю - муж не хочет жить в небольшой комнате, тем более без хорошей гардеробной мы себе жизнь уже не предстваляем ( в прошлой квартире она у нас была).

, с большим диваном, тв ( а возможно и проектор с экраном), а так же зоной с кофейным столиком и парой стульев/кресел. Так же хочется видеть на стене подобный коллаж с фото
Не могу пока определиться пррисоединять ли данную лоджию. Хочется укромный и тихий уголок для отдыха, возможно кальяна, и небольшого рабочего места. В то же время не могу представить как будет выглядеть балконная дверь и висеть шторы в гостинной, и как через них туда-сюда ходить. Так вот, спальня. Обязательно гардеробная, комод, кровать, пара тумбочек. Неплохо бы и небольшой туал.столик. Спальню вижу. В следующей гамме
Балкон присоединенный к спальне, хочется оставить для сушки белья, гладильной доски и тд Детская. Не хочется делать совсем розовую-розовую, но и на вырост тоже ее не предполагаю. Так же хочется видеть небольшую гардеробную (ну или хотя бы шкаф купе из 3секций), зону для сна( пока маленькая кровать, но через пару лет дочь будет спать на полутороспальной. Плюс планируется рождение еще одного ребенка) и хочется чтобы потом мы смогли в оформленном интерьере органично вписать еще одно спальное место. Зону длЯ игр и зону для занятий тоже хочется для дочки. цвета такие

Кухня. С ней более-менее все понятно. Вижу ее в темной гамме или в комбинации венге-беж/белый. Обеденный стол для всей семьи и возможных гостей, большой холодильник, удобная рабочая зона. С/у. Тот что побольше- вижу его с большой ванной (180-185см), туалетом, раковиной соответственно. В ванной нужен небольшой пенал, для всяких штучек. Если получится без нагромождений неплохо бы еще и душевую сделать , хотя бы 80*80. Тот сан.узел что поменьше- в нем нужна маленькая/угловая раковина, унитаз. Место для корзины для белья, ст.машинки, а так же швабр, ведер, чистящих средств, водного нагревателя, и чтобы последние были где-то припрятаны. Ну и коридор. Открытая вешалка для одежды, пуф у входа, шкаф купе вместительный. Ну и плюс какое-то интересное место, где можно поставить какие-то побрякушки. В общем, фишки хочется какой-нибудь.
а вообще, возможно вместо детской будет наша спальня, а детская как раз в комнате, которая побольше. не знаю удалось ли мне сложить свои мысли в единую картинку.