Что можно сделать?
Интерьерное решение прихожих, коридорчиковОчень маленький коридор и много вещей((((
Ремонт сделали, подбираем прихожую,
Хотим угловой шкаф (вместо временной вешалки) с закругленной стоечкой с полочками ближе к двери, с другойстороны углового шкафа, шкафчик с ящиками и вешалку с 3-мякрючками. Есть еще около 40 смтам где одна дверь открывается, а до одугой еще есть место, может туда чего можно впихнуть.
может у кого свежие идеи появятся.



прошу прощения за бардак (
Klocho4ek
Ирина добрый день!! Я к вам по необычной просьбе! У вас случайно не осталось обрезков обоев? У нас такой же коридор, а сейчас ходим дверь перенести, очень не хочется переклеивать весь коридор(( в Леруа больше такие не продаются(( куплю за вашу цену! Или вы знаете название и фирму их, чтоб можно было найти в других магазинах. Спасибо!
17.06.2014
Ответить
Ирина
К сожалению нет, не осталось и название не знаю, мы покупали в леруа, а больше я таких не видела, попробуйте поискать просто в интернете задав название 'одуванчики"
17.06.2014
Ответить
Ольга
Дверь и вправду чёткая, в твоих-дверях такого же плана заказывали. Уместна у вас особенно с этими шоколадными одуванчиками :}
Ну а по месту конечно шкафчик.
26.11.2012
Ответить
Tuttii
http://www.tvoi-dveri.ru/bravo/shponirovannie/paola_dg/ на вот эту похоже чем-то) А вообще автор, по моему ваша идея с угловым шкафом самая оптимальная. Приожка будет уютная и функциональная. ЛУчше ничего не придумаешь. ИМХО
06.12.2012
Ответить
Ирина
Вот эти двери http://www.sgcompany.ru/page.php?id=770, покупали в Леруа, а прихожая в итоге подучилась http://www.babyblog.ru/community/post/housedesign/1701808
07.12.2012
Ответить
Ирина
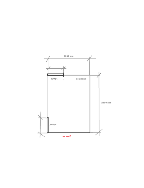
корридор 105 см на 210 см. остально занимают двери, есть промежуток между открытой дверью на стену и другой дверью в 40 см. напротив той стены где 210 см
05.09.2012
Ответить
Мария
Проем дверей? Что за выступ в стене, где входная дверь? Какое там углубление? трудно разобраться. План выглядит так: 

06.09.2012
Ответить
Ирина
где б нарисовать, я б сама нарисовала, 105 от стены до двери, сама дверь еще 80 см примерно, 210 правильно, входная дверь на той стене., где написано "тут что?" там же двери в ванну и туалет, дверь справа чуть выше по рисунку, но это и не важно.
06.09.2012
Ответить
Ирина
только 210 это место где можно поставить мебель, до входной двери еще есть место. Входную дверь видно на фотке она за коляской, а 210 это до бордюра с одуванчиками на той же фотке.
06.09.2012
Ответить
Вика(декор и картины)
у вас огромный коридор)))).угловой шкаф купе до потолка.думаю решит проблему с вещами.
04.09.2012
Ответить
вот что получилось