Кухня с недоэркером)
Интерьерное решение кухниДобрый вечер, девочки. Хочется попросить вашей помощи - свежего взгляда, креативной идеи или просто опыта)
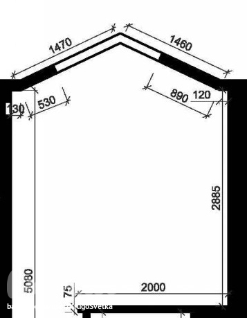
Имеется вот такая кухня (картинка прилагается)с эркером совершенно непонятным, что с ним делать???
Необходимо: барная стойка и диванчик небольшой. Не смогла найти в интернете вразумительных дизайнерских решений - вообще как-то нет таких планировок, увы...
ой
Ирина
На самом деле с таким нестандартом можно творить и творить... здесь можно получить очень необычное, креативное, красивое дизайнерское решение. Вот если серьезно, была бы у меня такая кухна. я бы прыгала до потолка.
26.11.2012
Ответить
Эл
на ivd есть проекты с такой кухней - это вроде П44?
поищите проекты по категориям домов
21.11.2012
Ответить
Olga
На вашем чертеже не видно, где водопроводные трубы - стояк, где вытяжка - вентиляция...
Хотя... сейчас столько устройств, что возможно перенести все что угодно и куда угодно )) Я бы не задействовала бы стену, которая 5 м. Оформила бы ее телевизором или фотообоями... или бы рамочки с фото повесила... но не располагала бы по этой стене рабочую зону и диван...
На вашем чертеже не видно, где водопроводные трубы - стояк, где вытяжка - вентиляция...
Хотя... сейчас столько устройств, что возможно перенести все что угодно и куда угодно )) Я бы не задействовала бы стену, которая 5 м. Оформила бы ее телевизором или фотообоями... или бы рамочки с фото повесила... но не располагала бы по этой стене рабочую зону и диван...
20.11.2012
Ответить
Зеленоглазка
у нас почти такая же,только в двушке)) сейчас активно ищу разные варианты дизайна. По вашей теме вот на такие картинки натыкалась: 





20.11.2012
Ответить
Eugenia
Здраствуйте! У Вас П44Т серия дома?
В ИВД много подобных вариантов:
http://www.ivd.ru/type.xgi?id=10003&romid=92&romcount=0&project=
20.11.2012
Ответить