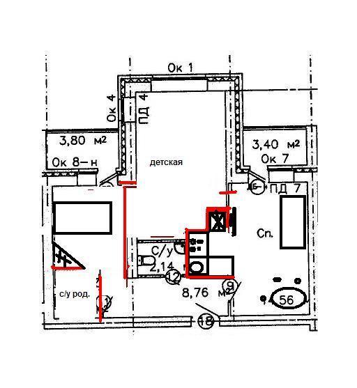
Прошу помощи у профессионалов!!! Помогите с перепланировкой квартиры

вот красным стены, чтобы понятнее было
15.01.2013
а ванную 3,33 можно даже увеличить после этого
15.01.2013
спасибо, очень-очень нравится)) и перегородки из блоков шикарно смотрятся)
15.01.2013
15.01.2013
после сдачи дома уточните у соседей, сверху и снизу, все ли будут использовать с/у 2,14, из него получилась бы неплохая гардеробная, но только при условии что никто по стояку этим с/у пользоваться не будет
15.01.2013
если стена между кухней и комнатой 18 м2 несущая и если в доме не газ, на месте старой кухни ваша с пальня и личный ваш с/у, в месте где был проход в комнату 18,6, располагаете мокрые (мойку, в частности) зоны, т.к. запрещено мокрые зоны располагать над сухими, и из комнаты 14,5 получается кухня, где спокойно можно поставить диван и стол. после такой перепланировки получится отдельная спальня для вас, большая детская( если дети имеются), или же комната для вас, а бывшая кухня пока как кабинет, на перспективу детская.
15.01.2013
Спасибо, за вариант) только вряд ли комнату в кухню превратить можно, т.к. дом у нас газовый((
15.01.2013
тогда точно не подходит, поэтому я и написала если в кухне не газ.
15.01.2013
судя по плану у вас еще несущая между кухней и комнатой 18,46. если все же вы правильно говорите, что нет несущих, я бы наверное сделала бы так 
15.01.2013
Я уточнила этот вопрос, нет , эта стена не является несущей.
15.01.2013
тогда у вас шикарное поле для действий, главное подобрать оптимальный вариант исходя из ваших потребностей. можете кинуть план на сайт "вдолевке, идеи для ремонта" там такие мастера сидят, они уж точно многое смогут предложить.
15.01.2013
Спасибо большое)
15.01.2013
не за что!!! скорейшей сдачи дома!! мы сейчас тоже ждем свою квартирку, все никак не закончат.
15.01.2013
Спасибо)Коробка стоит, сейчас трубы провядт жду-не дождусь). только бы не задержали со сдачей.. А Вы давно ждете?
15.01.2013
обещали в конце декабря сдать, но из-за сильных морозов перенесли сдачу, сколько еще ждать пока неизвестно ((((((((
16.01.2013
Сдадут) не переживайте)
16.01.2013
спасибо, очень на это надеемся, да и застройщик надежный, но мало ли от кризиса никто не застрохован
16.01.2013
это уж точно
16.01.2013
также неплохо было бы, если бы вы смогли снять точные размеры по стенкам, а то так получается немного пальцем в небо.
15.01.2013
размеры пока не могу((не знаю
15.01.2013
Благодарю за этот вариант, только я немножечко не поняла что располагается между газовой плитой и ванной, и справа от стола это перегородка?
15.01.2013
да, т.е вы не сносите стену, только закроете вход в кухню, я просто быстро-быстро малевала)) 
15.01.2013
кстати перегородку можно сделать из стекла или стеклоблоков и тогда в кухне-гостинной будет много света
15.01.2013
Может все таки что-то можно сделать, очень не удобная планировка. По моим меркам для туалета 2,14 кв.м это много. А кухня 8.55 кв.м. это мало. 
15.01.2013
К сожалению в вашем случае очень сложно что то изменить если придерживаться закону, т.к. площадь су нельзя увеличивать и переносить
15.01.2013
Можно увеличивать, переносить за счет коридора.
19.01.2013
подскажите как, пожалуйста?
21.01.2013
К сожалению, я не дизайнер, и не могу сказать как лучше сделать, функциональней. Я просто занимаюсь согласованием перепланировок и прокомментировала утверждение Елены что санузел нельзя трогать. Его можно переносить в коридор или увеличивать за счет коридора, то же самое касается кухни. В жилую зону и на зону друг друга ни кухней, ни санузлом залезать нельзя.
21.01.2013
Ирина, подскажите, пожалуйста, можно ли в несущей стене сделать дверной проем? Санузел можно сократить и тем самым увеличить прихожую?
21.01.2013
Проем сделать можно, но не в любом месте. Такое согласовывается на основании тех.заключения и проекта, разработанного у автора дома, либо согласованного у него. Нужно обратиться к автору дома, они тогда смогут сказать в каком месте и какой ширины может быть проем. На моей практике, проем можно делать не более 1 метра шириной и на расстоянии не менее метра от внешних стен. Но это все индивидуально. Нужно обязательно тех.заключение заказывать о состоянии несущих конструкций и о возможности сделать проем. Например если дом панельный, автор дома мниитэп, то дома после 2007 года постройки разрабатывались без возможности в дальнейшем делать проемы в несущих стенах, поэтому автор дома дает отказы. И главное, что вся это документация не дешево стоит. Например у мниитэпа, у мосжилниипроекта( они специализируются по домам кирпичным, сталинским старой застройки) тех.заключение и проект стоят приблизительно 60-80 тыс. По санузлу: санузел можно уменьшить и увеличить таким образом коридор. Это делается по эскизу, т.е затраты минимальны. Но могу сказать что согласование непредсказуемая штука. Многие нормативы, положения можно трактовать по разному, и много зависит от человека, рассматривающего ваши документы, т.е то, что пропускает один, запрещает другой...
21.01.2013
Спасибо, за ответ)даже не предполагала, что все так дорого((
22.01.2013
помогите определить несущие стены. Наша! квартира и ее перепланировка