Добрый день!
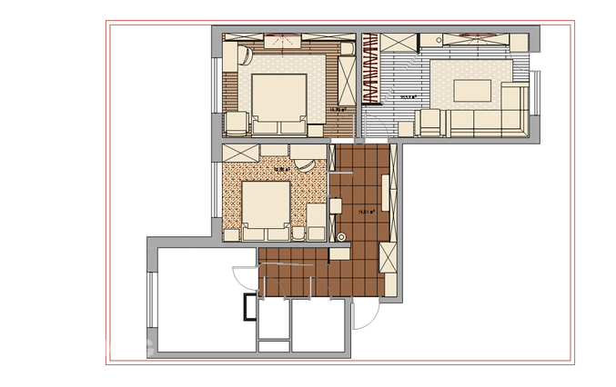
Интерьерное решение прихожих, коридорчиковНа днях покупаем квартиру,а я уже во всю думаю как что куда приляпать да приделать...Со всеми комнатами/ванной/кухней всё придумала,но коридор-кишка мне мозг просто взарвал! Нашла несколько идей, но меня что-то да смущает...Стены трогать не хочется,чтобы что-то сносить,но коридор абсолютно бестолковый..
Есть идеи,девочки??? (это тот,что 7,5. С маленьким я разобралась)
План под катом:

Мария
мы сейчас живем в такой квартире, у нас вдоль стены шкаф-купе) я бы еще что-нить придумала, но квартира не наша (живем временно со свекрами)
если хотите, постараюсь вечером фото сделать. надо?
18.02.2013
Ответить
Benefisova
Понимаю, что не хочется ничего сносить, но как вариант - убрать стену между коридором и комнатой в 11 квадратных метров - получится просторная гостиная, а оставшиеся комнаты - спальни. Мы сейчас на стадии окончания ремонта, но тоже объединили зал и коридор - пока смотрится отлично.
13.02.2013
Ответить
Rikky Tikky Tavi
да мы тоже так думали сделать,но с покупкой квартиры финансы споют романсы... ( и ремонт получится эконом вариант...
15.02.2013
Ответить
Benefisova
А мы на это посмотрели с другой стороны - экономия на штукатурке, шпаклевке, обоях и двустворчатой двери :)
16.02.2013
Ответить
олеся
Дд, подскажите перед тем как стенку ломали разрешение получили, я просто тоже хочу, а пугдают кучей документов...
19.03.2013
Ответить
Benefisova
Да, мы все узаконивали перед сносом, так как у нас в Украине с узакоиванием постфактум могли быть проблемы. К тому же за время ремонта несколько раз наведывалась мастер из жэка по поводу перепланировки, но у нас было что ей предьявить.
19.03.2013
Ответить
Алена
У нас тоже планировка похожая. Мы планируем в этом коридоре шкафы под сезонную одежду, а ближе к комнате спортивный комплекс поставить. Мне наоборот коридорчик очень нравится )))
12.02.2013
Ответить
Алена
Он у нас очень мало места занимает, от стены см 20 и в ширину где-то 60. Сейчас стоит у нас в однокомнатной в совсем крошечном закутке. (он враспор ставится между полом и потолком).
12.02.2013
Ответить
Rikky Tikky Tavi
ааа...я уже представила здоровенные такие..от пола до потолка)))
12.02.2013
Ответить
Настёна (Мебель, матрасы, уличные и домашние ДСК)
У нас похожий, планирую по длинной стене встроить шкаф-купе в потолок и максимум по длине, зимнюю одежду там хранить вообщем все крупное)
12.02.2013
Ответить
Rikky Tikky Tavi
да вот я тоже думала... Только там двери ещё по дурацкому сделаны,что во всю стену шкаф не пустишь...а выходить и упираться лбом в стенку шкафа не прикольно...
12.02.2013
Ответить
Настёна (Мебель, матрасы, уличные и домашние ДСК)
Ну можно по сторонам угловые сделать наискосок части что бы сгладить углы и в тоже время что то в этих треугольных полках прятать)
12.02.2013
Ответить
мамаЛена
это моя квартира))) у нас пусто, только слева за выступом вешалка для одежды, но можно и шкаф сделать встроенный, он будет глубокий, вместительный
12.02.2013
Ответить
Tom4ek
у нас похожая планировка , мы в коридоре сделали гардеробную , длина 4 метра, много хлама туда спрятала
12.02.2013
Ответить
Tom4ek
на 4 секции по 1 метру . На вверх одна сплошная полка. Первая секция только для вещей которые вешать, сделали две перекладины, вторая -сверху вешать, ниже 3 ящика выдвежных , 3 секция - 4 полки внизу так же 3 выдвижных ящика. 4 секция - 2 полки и пустое пространство( там стоят пылесосы, сушилка, доска гладильная, ведро, швабра )
12.02.2013
Ответить
Юлия
вот вариант, где в коридоре сделали библиотеку: книжные стеллажи до потолка, а зона прихожей обозначена только мебелью
вот вариант, где в коридоре сделали библиотеку: книжные стеллажи до потолка, а зона прихожей обозначена только мебелью
12.02.2013
Ответить
♠MаPи♠
Моя квартира) У нас по правой стене прихожая, дальше стоит кресло, мне оно нужно для одевания-раздевания детей, а дальше - ближе к комнате - сушилка, у меня постоянно белье сушится) По левой стороне шкаф после выступа и до двери в комнату
12.02.2013
Ответить