Не слишком ли маленькие комнатки?
Постройка дома, этапы.Добрый день!
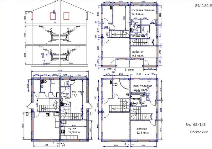
Строим одноэтажный дом своими силами, размером 7х14м. Хочется много всего сделать: 3 комнаты (без проходных), кабинет мне (для ПК) и коморку мужу (инструменты), раздельный санузел и большую кухню. Но под такие запросы сильно мало места. Составили план. Вроде все устраивает, но не слишком ли маленькие комнатки? 
Олеся (Лесёнок)
Хотела аписать, а потом почитала ваши же комментарии. У меня вопрос - вы зачем спрашиваете??? Вы уже сами определились, ничего менять не хотите...
Пристройте террасу к кухне и вынесите туда кабинет свой - справа от дома, сначала терасса, а далее выход в светлый кабинет (за стеной ванны получается). Каморку мужа чуток расширить и объеденить с придатком - получиться нормальная мастерская у мужа.
23.05.2013
Ответить
Елена
Меня интересует размер комнат 3х4м. По плану выглядит нормально (в программе с растановкой мебели) а вот по факту выкапанного фундамента и перегородок как-то маловато получается :( или это из-за не имения пока стен на фоне общего пространства кажется что все очень очень маленькое (имею ввиду жилые комнаты)
23.05.2013
Ответить
Олеся (Лесёнок)
Ну так вы наши не видела - деткая 11 квадратов, родительская как раз 12,3 кв, кухня 12,3) Сейчас прикреплю схему, наша правая часть (только родителськая и детская в итоге местами поменялись).


23.05.2013
Ответить
Елена
Спасибо :) Значит можно не волноваться, размеры стандартные :) а то бабушки пугают что комнаты должны быть минимум 20м2
23.05.2013
Ответить
Олеся (Лесёнок)
А дома- как в Санта-Барбаре?)))) Захотите потом- второй этаж сделаете или терассу пристроите. Всё в ваших руках.
23.05.2013
Ответить
Изморозь
Попробуйте загрузить ваш план на форумхаус. Там огромная ветка, посвещённая планировке домов - там получите грамотную консультацию. По моему мнению в Вашей планировке недостатков много (извините):
фасад не гармоничный из-за окон получается
торцевые окна в комнатах не очень хорошая идея - меньше возможностей для расстановки мебели
отсутсвие тамбура- всё тепло зимой из дома будет вылетать стоит только открыть дверь, а тепло - это деньги))
Котельная где будет? Газовый котёл на кухне?
вход в туалет - рядом с входной дверью не айс, представьте как вы его будете посещать. Да и куда туалетная дверь открываться будет? В сторону ванной - поперёк прохода, внутрь - при такой плошади унитаз может не влезть...
детскую комнату делать рядом с кухней не лучший вариант - перенесите в 15м, а то на кухне даже вечерние посиделки с чаем проблематично будет устроить, не говоря уже о гостях...
коридор - бесполезно истраченный метры
Конечно возможности планировки зависят от того, на какой стадии у вас строительство. Ещё раз приношу извинения за критику.
21.05.2013
Ответить
Елена
Спасибо за комментарии. К сожалению у нас уже проложены канализация, водопровод и имеется план на газ, опалубка выложена по периметру и внутренним стенкам, в выходные будем заливать. Что-то переделывать уже не получится :( Немного не поняла по поводу окон, как их лучше сделать? (это изменить еще можно). Тамбур это закрытая прихожая? Газовый котел (АГВ) займет место на кухне примерно 0,5м2. вход в туалет также как и в ванную будет через коридор, двери будут открываться в коридор, и из коридора на улицу. К сожалению не было возможности туалет и душ переместить в другое место :( Детскую уже перенесем. Коридор действительно занимает много места, но с такими размерами дома очень сложно разместить 3 изолированные комнаты :(
22.05.2013
Ответить
@@@Ольга@@@
я бы вместо коморки мужа сделала гардероб, тк входя, нужно повесить вещи, а там очень удобное помещение, кухню с детской объединить- получится гостинная с обеденной зоной, и ряышком 2 спальни, а то получается закрытие пространство с множеством дверей, а муж пусть себе гараж на улице под инструменты сделает
21.05.2013
Ответить
Елена
Спасибо за мнение. Но для верхней одежды при входе у нас будет шкаф (места для этого в коридоре достаточно), по поводу гостиной (детской) и кухни я уже писала ниже (хочу чтоб гостям было удобно у нас оставаться с ночевкой), если бы была возможность для гаража мы бы так и поступили, в коморке этой будут не столько инструменты как рабочее место
21.05.2013
Ответить
@@@Ольга@@@
ясенько, гости- хорошо, но главное, чтобы вам было комфортно там жить)
21.05.2013
Ответить
кипариска
Может стоит 15 м комнату под детскую, 16,96 вам под спальню, там и место под гардеробную есть. 11,7 объединить с кухней, убрать перегородки. Получится гостинная-столовая и исчезнет узкий коридор.
20.05.2013
Ответить
Rikky Tikky Tavi
Кцхня рядом с детской не логично. Я бы гостиную на место детской. И большую комнату я бы тоже ребенку отдала. И друзей пригласить, чтоб там сидели.
20.05.2013
Ответить
Ирис
Мой вам совет, если не поздно, дверь в 11,7м комнату сдвинуть вправо, чтобы можно было занять все углы мебелью, это очень удобно.
20.05.2013
Ответить
Анюта
Может,спальню поменьше,а детскую побольше?? На самом деле, мы с мужем сейчас планируем покупать квартиру,так под детскую отводим самую большую комнату..
20.05.2013
Ответить
Елена
Спасибо за совет. Изменить параметры комнаты не получится (прийдется менять и все остальное), а вот переименовать спальню в детскую можно :)
20.05.2013
Ответить
Анюта
Ну, да) Это тот самый выход. Просто для взролой спальни немного надо. Кровать, грдероб, может, столик туалетный. Ну, для малыша кроватку поместить всегда можно.
А вот детская - это несколько зон - спальня, игровая, потом ещё и кабинет, когда заниматься пора придет. Да и детская рядом с кухней не всегда хорошо, т.к. часто приходится готовить и доделывать дела, пока дети спят. Иногда можно что-то очень громко уронить, я часто так делаю))
20.05.2013
Ответить
Елена
А гостинная не слишком маленькая? Хотя туда планируется только диван уголовой и телик
20.05.2013
Ответить
Анюта
У вас кухня как столовая и гостинная. Наверняка всё праздники можно будет там проводить с родными и друзьями за большим столом!)
20.05.2013
Ответить
Дарья
Вот-вот! Мы тоже ребёнку в новой квартире самую большую комнату отдаем. Детям же по сути 3 зоны нужны: спальная, игровая и рабочая (для творчества). Потом игровая с рабочей соединятся в одном компе)))
20.05.2013
Ответить