перепланировка
Перепланировки стен. Согласование перепланировки квартир и нежилых помещений.Девочки,не проходите мимо)
Прокомментируйте плиз - что хорошо, что нет..
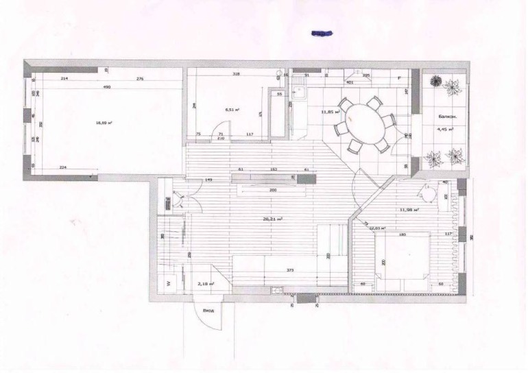
вот изначальная планировка

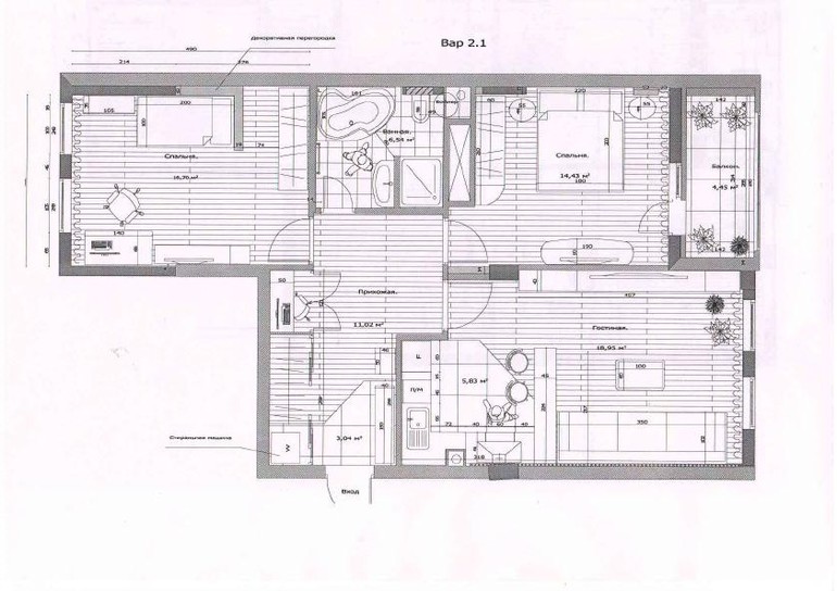
Вот дизайнер предлагает вариант
(стиральная машина и рабочий стол в шкафу пока не утверждены)
Слева детская, хотелось сделать большую кухню-гостиную и изолированную спальню (чтобы там все гости не тусовались)
и конечно жалко было оставить без дела большой коридор 10метров.


dabone
Привет, дин, для начала напиши как вы сами с мужем оцениваете все ваши плюсы и минусы каждого из варантов!
23.08.2013
Ответить
Дина
Ну у нас изначально было желания сделать пространство кухни-гостиной и отдельной спальни, т.к. гости у нас часто бывают, на маленькой кухне места немного, и мы не хотели чтобы в единственной свободной комнате после детской проходили все тусовки, хотели маленькую но изолированную спальню..С переносом мокрой зоны - жопа, не хотим связываться скорее всего, а так вариант 2.1 меня устраивает (опять же втяжку тянуть - хватит ли ее мощности) - мне кажется ты именно такой вариант мне предлагала с самого начала когда я спрашивала)вариант 4 устраивает тем, что мы задействуем максимум пространства ( коридор 10 метров, который по сути тупо большой коридор с кучей дверей - становится жилым) - кухня большая, гостиная зона также есть неплохая, и отдельная спальня с гардеробом тоже радует.В этом варианте напрягает то, что мы не знаем как будет выглядеть это все - а именно гостиная в коридоре))и переживаю что если с друзьями будем тусоваться когда ребенок спит, в гостиной у его двери все будет слышно...Но я понимаю что если мы хотим добиться того о чем мечтали, придется чем -то жертвовать...
23.08.2013
Ответить
dabone
Сразу встречные вопросы! Да, я предлагала типа второго варианта! Неужели гельщя его сделать без переносов и полной незаконности перепланировки? Созранить мокрую зону на мокрой? Еще : вариант рабочего стола в "эпицентре взрыва" очень сомнительно если вы релаьно собираетесь работать.. Вы не подумали о переносе всетки?Далее зочу сказать что у четвертого варианта получается на самом деле мало света в общей зоне, это для меня главный минус.. В этом случае я голосую за первый вариант. Но сама представь: очень открытое остранстыо получается, ты как раз была против! Плюс мало места для хранения вещец: считай всегда эта открытая площадь будет захламлена!Еще хочу сказать что о втором сунузле даже и не думайте, это для вашей ситуации роскошь ну непозволительная на мой взгляд... Хочу сказать что вы должны быть готовы что площадь квартиры будет оцениваться визуально намного меньше чем есть на самомо деле - отсутствие коридоров делает пространство единым и меньше, для меня это не минус а кто-то хочет "воздуха"... Еще вариант где студио - я тоже предупреждала: надо быть готовой что вонь и звуки кухни будут вас преследовать просто вплоть до подушки.. Кого-то бесит, кому-то удобно...Я коненчо за вараинт 2 если его доделать.. Расскжи почему нельзя сделать с минимумом геморра!
23.08.2013
Ответить
Aleksandra www.aleks-design.ru
Вы серьёзно????Закрыть два окна спальней, в которой только спите, а гостиную, в которой находитесь всё время, оставить без света.Сделать косую стену, рабочее место задвинуть в шкаф, на всей площадь ни одной гардеробной....Эта планировка очень далека от истины. Надо пробовать делать спальню на месте кухни, а в нижней части обустраивать общую кухню-гостиную.
18.08.2013
Ответить
Дина
рабочий стол решено было перенести на балкон,большой шкаф купе при входе слева,еще один в спальне.Изначально хотели с мужем именно так - поменять местами кухню и спальню, но встала проблема с переносом мокрой зоны..если и сделаешь, не хочется потом геморроя..
18.08.2013
Ответить
Aleksandra www.aleks-design.ru
У вас потрясающее преимущество - монолитный дом, нет перегородок, второй стояк прям рядом со входом - как раз где нужно! Никаких проблем с коммуникациями не будет. Поэтому я очень-очень советую вам получить от дизайнера вариант перепланировки именно по изначальному вашему плану - спальню на месте кухни. А если уж говорить о том решении, которое есть, то хотя бы стены сделайте прямыми и свет откройте для гостиной.При такой фантастической площади закрыть два окна - это просто непозволительная роскошь (я бы даже сказала - извращение) 

18.08.2013
Ответить
Дина
Такой вариант у нас тоже есть, но тогда мы не хотели терять второй санузел и для переноса мокрой зоны не было места..
19.08.2013
Ответить
Дина
вообще вы заставили меня задуматься, спасибо!Мне тоже очень жаль терять свет и вид из окон...
19.08.2013
Ответить
Вера (дизайн интерьера vera-vasilenko.ru)
второй, конечно.только кажется, стол для кухни великоват?
16.08.2013
Ответить
Дина
Стол,да,может быть))Наверное все же по меньше будет)Мы пока только с планировкой определяемся)
16.08.2013
Ответить
Татьяна (дизайнер интерьеров)
Вариант со звездой :)) Планировка более цельная,машинка отлично гостит в коридоре, в связи с этим в ванной можно поставить и душ и ванну,плюс большому холодильнику и гардеробной в спальне. Гостиная хоть немного, но отделена от прихожей. В целом зонирование на высоте, дизайнер ваш постарался!
15.08.2013
Ответить
Евгешка
Хотите из 2ки, 3-ку сделать? Мне больше второй вариант понравился, так как он более функциональный и практичный ( как говорится, учтен каждый сантиметр) - есть шкаф в спальне, бОльший кухонный гарнитур и тд). Немного смущает, что под диван отведено 306 см- есть ли уже понимание, какой и него диван туда встанет ( это важно именно сейчас), чтобы потом не оказалось, что таких диванов нет и нужно, либо стену ломать, либо на заказ делать и доплачивать за нестандарт.
15.08.2013
Ответить
Виктория
Мне нравится первый вариант - более воздушный, но из второго варианта взяла бы перегородку рядом с входной дверью - не будет ощущения, что на входе сидишь.
15.08.2013
Ответить
Евгешка
15.08.2013
Ответить