Девочки помогите определиться с планировкой
Перепланировки стен. Согласование перепланировки квартир и нежилых помещений. 
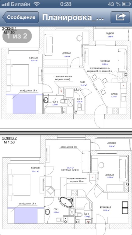
Не могу определится по планировке, вот уже несколько дней мучений спасибо!
Aleksandra www.aleks-design.ru
Оба варианта не доработаны. Какой смысл выбирать из двух зол.В первом идея расширить кухню за счёт прихожей выглядит неплохо, но возникает большая потеря площади из-за коридора. Плюс ненужная кривая перегородка. Наличие двух СУ при такой площади на мой взгляд не оправдано. Даже если это функционально необходимо, то нужно более адекватное решение искать. С открыванием дверей спальня-СУ вообще беда, вероятность получить кому-то в лоб - 100%.Во втором варианте идея вынести кухню в центр отличная, но реализована плохо. Рабочий треугольник попал прям на самую основную линию движения. В детской стены изломаны и комната маленькая. Имеет смысл площадь лоджии присоединить к детской и оптимизировать мокрые зоны. В целом второй вариант более логичный, надо его дорабатывать.
13.09.2013
Ответить
Виктория
Санузел убрать не представляется возможным, там две шахты и коммуникации, по поводу дверей я согласна. Второй вариант с сквозной кухней-гостиной пугает. Спасибо за комент.
13.09.2013
Ответить
Виктория
Присоединить лоджию не получится так как будут блоки от кондиционеров, дело в том что выносить за фасад их нельзя , на лоджии есть специально отведенное место с решетками для вентеляции получается что лоджию нельзя утеплить. Поэтому я склоняюсь к первому варианту. Хотя второй мне тоже нравится, если бы не кондиционерные блоки.
.Посмотрите пожалуйста на эти планировки, как вы считаете может эти более удобны?
.Посмотрите пожалуйста на эти планировки, как вы считаете может эти более удобны?
13.09.2013
Ответить
Aleksandra www.aleks-design.ru
Эскиз 1. Нужно всегда стараться выполнить изолированную прихожую зону. Это самое грязное место в квартире и через него не должны проходить основные линии движения. Здесь получается, что дорога к основному СУ лежит прям через прихожую. Это очень существенный минус. И основной СУ сильно удалён от спальни. То есть вы в халате после душа дефилируйте через всю квартиру в спальню. Не есть гуд.Эскиз 2. Куда пойдет канализация от раковины? Через дверной проём? В стяжке? Каким образом провести слив? Горшок без раковины в маленьком СУ - бессмысленно. Зато с душем. А нужен он на самом деле? Или так просто место было и поставили. Опять беда с дверьми - теперь ещё напряжённее - спальня+СУ+кухня. Не делают так в квартирах! Чтобы три двери в одно место. А уж если и делают, то все должны открываться внутрь помещений. Но вот проблема - бедные крошечные СУ. Редко когда вы встретите СУ, где дверь открывается внутрь. Дверь в СУ всегда открывается наружу. Это практически негласное правило. Аналогичная ситуация и со вторым СУ. Виктория, как я поняла - у вас вроде двое детей, а детская на одного. Что собираетесь делать, когда второму ребёнку потребуется комната? Может имеет смысл сразу проектировать спальню и две детские?
13.09.2013
Ответить
Татьяна (дизайнер)
Голосую за первый вариант, он - КРЕАТИВНЕЕ. Второй - как у многих.
12.09.2013
Ответить
Татьяна (дизайнер интерьеров)
Я за второй эскиз, но с маленькими переделками. Сделайте на месте прихожей нормальный санузел с душевой, у вас еще и место для быстрого гардероба останеться, а на месте санузла гардеробную.
12.09.2013
Ответить
Виктория
Я переживаю за лоджию в детской, получается что все будет проносится через детскую и окна может опасно
12.09.2013
Ответить
Татьяна (дизайнер интерьеров)
На плане у вас дверь из гостиной, а в детской обычное окно. Или будет распашная дверь? Но ведь есть специальные ручки с замками.
12.09.2013
Ответить
Виктория
Да на плане дверь из гостиной, но дверь с детской хотели оставить. Узаконить эту дверь с гостиной трудно, даже не трудно а скорее дорого, поэтому сомневаюсь. Но ваше предложение по поводу санузла мне нравится, спасибо огромное за участие. Пока не определилась. Завтра поеду на место и буду думать, может так решусь на какой нибудь вариант.
12.09.2013
Ответить
Виктория
Я посмотрела еще раз, перенести санузел не получится перенести, там шахта и коммуникации.
12.09.2013
Ответить
Татьяна (дизайнер интерьеров)
Так вам коммуникации для санузла как раз и нужны, вы же как раз там кухню делали на первом плане.
13.09.2013
Ответить
Inga
Второй вариант более просторным кажется, хотя квадраты одни и те же. Но, вы уверены, что хотите сделать кухню так далеко от окна? Вам все время придется включать там свет. А вот на телевизор у окна может светить солнце и тогда в дневное время наоборот нужно будет закрывать шторы. Подумайте еше чуть чуть как мебель расставите.
11.09.2013
Ответить