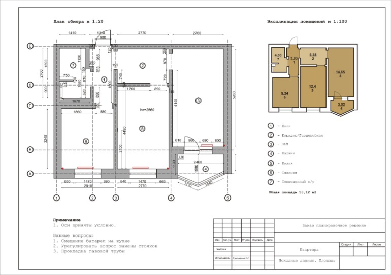
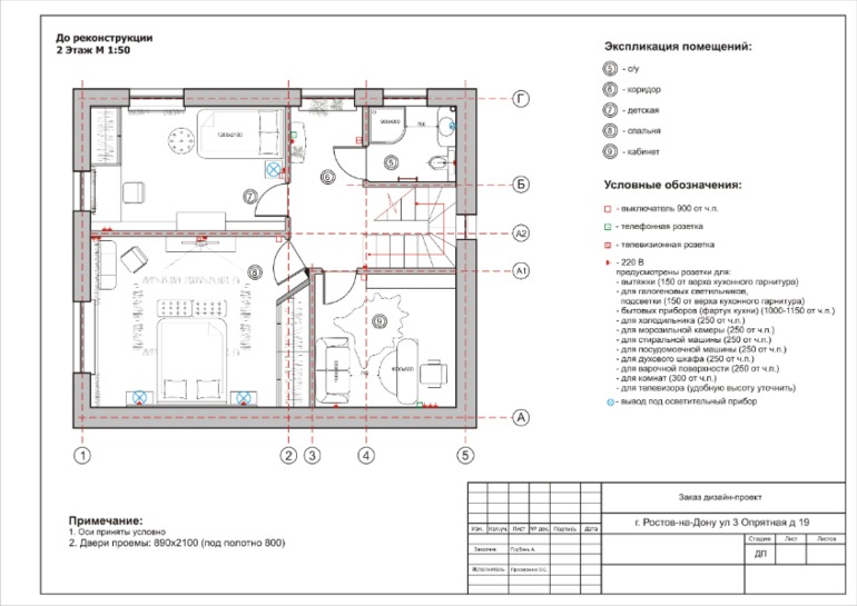
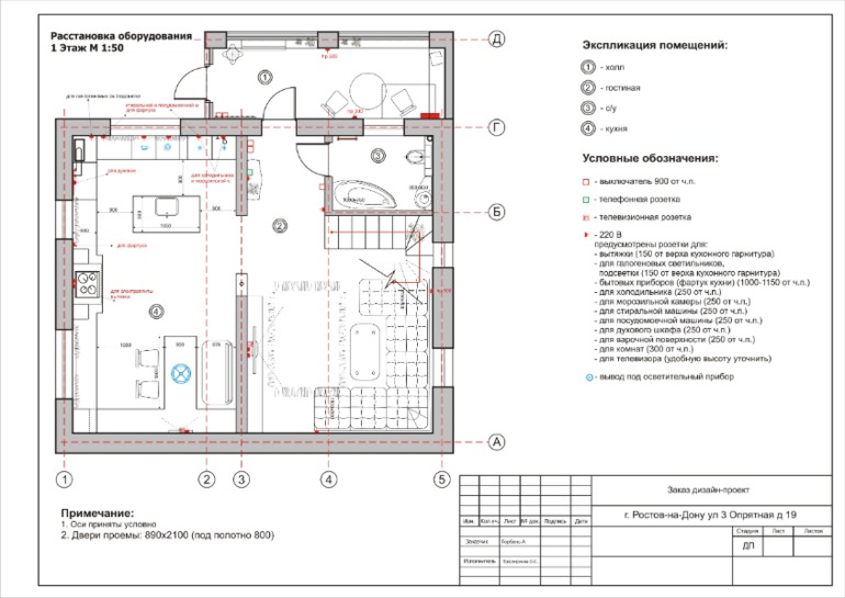
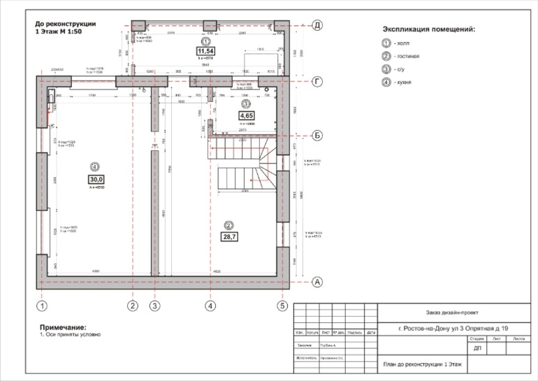
Что такое планировка у дизайнера

локальные газовые котельные. Как сделать из лоджии игровое место для ребенка?