Прошу помощи в перепланировке квартиры!
Вопросы и ответыДевочки, уже себе весь мозг сломала, думая что бы здесь замутить!
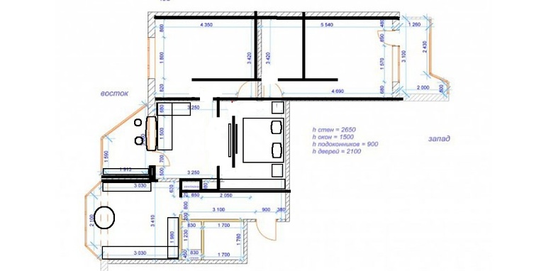
Имеется небольшая трешка в доме серии П44Т. Задачи как всегда: хочется всего...)
Нужны две отдельные комнаты для двух мальчиков и маленькая спальня для меня, но есть одно НО... Хочется какое-то пространство, типа кухни-гостинной с диваном и большим телевизором, где бы мы все вместе проводили время. Вот...
Elena
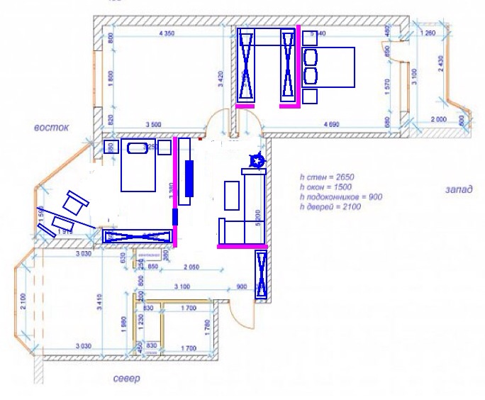
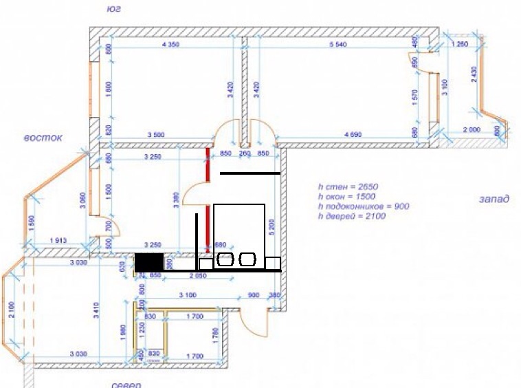
А если так, то в гостиной будет больше места:
Надо только подумать как ограничить спальню: радиусные двери? Просто распашные по прямой стене? Не делать полукруг? Сделать просто прямые стены?
Надо только подумать как ограничить спальню: радиусные двери? Просто распашные по прямой стене? Не делать полукруг? Сделать просто прямые стены?
17.01.2014
Ответить
Татьяна - Ваш семейный фотограф
Лен, спасибо! Очень интерессный вариант получился, пойду в авто каде накидаю.
17.01.2014
Ответить
Светлана
Посмотрела разницу в возрасте детишек и сразу стало все понятно! Да, надо им отдельные комнаты! Тогда поддерживаю мнение, что старшему 11метровую с балконом, младшему 13метровую, а вам большую! А кухня у нас действительно не маленькая, места хватит и для гостей и для детей)
16.01.2014
Ответить
Татьяна - Ваш семейный фотограф
Именно из-за разницы в возрасте... один уроки пытается делать - другой на ушах стоит(Хотелось свой закоулочек ввиде спальни.
16.01.2014
Ответить
Светлана
У нас такая же квартира, только угловая (в большой комнате еще боковой эркер)...ждем ключики)) честно говоря, думаю, вам стоит от казаться пока от идеи "каждому ребенку по комнате" и тогда все получается идеально и таких вариантов масса! Вам 13метровую спальню, детям самую большую ( в ней можно зонировать пространство по-разному, хоть штангу со шторой повесить ), а маленькую комнату объеденить с кухней, вот вам и гостиная)) в холле большой шкаф-купе!
16.01.2014
Ответить
Татьяна - Ваш семейный фотограф
А еще лет через 5 старшему уже другое соседство в комнате нужно будет, а не младший брат)
16.01.2014
Ответить
Татьяна - Ваш семейный фотограф
Да, новостройка. Дом стоит, но сдача пока не скоро( Пока продумываю варианты. А дом в г. Московский по киевскому шоссе.
16.01.2014
Ответить
Татьяна - Ваш семейный фотограф
)) я до этого уже жила в Московском, поэтому и решила туда вернуться!У вас когда сдача?
16.01.2014
Ответить
Светлана
Мы до марта уже должны ключи получить))), дом сдан в сентябре, так уж ремонт на носу...
16.01.2014
Ответить
Татьяна - Ваш семейный фотограф
Я вот уже начинаю готовиться, чтобы хоть чуть-чуть понимать во что это все выльется!
17.01.2014
Ответить
Ольга
Вот и купили монолит,чтоб сделать перепланировку.Я даже уже девочку дизайнера нашла на ББ.А до этого жили как раз в серии п 44 Т как у вас)
16.01.2014
Ответить
Elena
Таня, вот что у меня нарисовалось ;-)Есть еще один недорисованный вариант, он более традиционный, его выложу позже. 

16.01.2014
Ответить
Elena
Вроде все что хотели, учла ;-)Спальню с балконом старшему сыну, без балкона младшему. Между их комнатами можно гардеробную комнату сделать, если необходимо. Или просто разделить пространство на комнаты.Балконы везде утеплить. У сына сделать рабочее место.В гостиной сделать зону отдыха. На проем от окна положить столешницу и сделать что-то типа брачной стойки. Зоны обыграть освещением.Ваша "спальная" без дверей вот с таким интересным входом. Если хочется все же двери, то можно переделать, поставив распашные, но тогда надо подумать о другом расположении мебели.Или, наоборот, оставить среднюю стену. Но с боковыми выступами, я подумала, что у вас будет более интимное пространство.
16.01.2014
Ответить
Татьяна - Ваш семейный фотограф
Брачная стойка))))))Сейчас пытаюсь в масштабе все прорисовать, выложу посмотреть.
16.01.2014
Ответить
Elena
Да это айфон такой умный :-))))Забыла где убрать проверку орфографии и автозамену :-)))
16.01.2014
Ответить
Elena
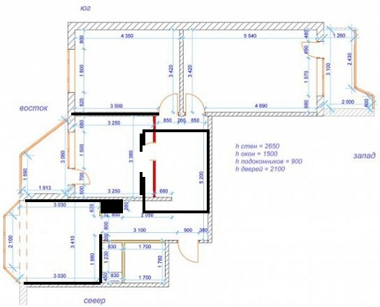
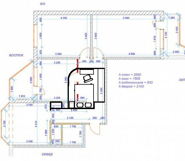
Посмотрела сейчас еще раз на схему. Боковые выступы, если их делать и оставлять среднюю часть, не должны быть основательными. Это могут быть витражи или стеллажи. Если так построить основательные стены, то кровать не внести ;-). Сначала мебель, а потом их монтировать ;-).
16.01.2014
Ответить
Elena
Таня, между спальнями несущая стена? А какие еще несущие? Тогда надо немного переделать...
16.01.2014
Ответить
Анастасия (АМИковры)
Мне безумно нравятся трешки в этих сериях, редко планировки от застройщика сделаны "с умом")))
Я бы сделала так:
1. Кухня довольна большая, стол в эркере, кух. гарнитур ставите по левой стене г-образный, по правой стене диван. Поверьте, места придостаточно, у подруги такая квартира)
2. В коридоре вместительный шкаф для одежды
3. Маленькую комнату объеденяете с балконом (не снося стены, просто вынимаете оконную и балконную раму, подоконник оставляете, это разрешено, утепляете балкон+теплый пол. Этот балкон огромный, там можно разместить рабочую зону, она за счет утепления будет как-бы на подиуме. Отдать комнату старшему сыну. Если честно, я от этой комнаты больше всего балдею)))
4. Большую спальню (с балконом) забираете себе и делаете там гардеробную, или просто можно мебель с большими шкафами + балкон очень большой, там можно поставить кофр и убирать сезонную одежду.
Так сделала бы я))
Если честно, я сейчас жалею, что не купила в свое время именно такую квартиру, повелась на нынешнюю из-за большего метража, в итоге сейчас квартира 90 метров, с тупой планировкой и вмещается в нее гораздо меньше, чем в этой((((
16.01.2014
Ответить
Татьяна - Ваш семейный фотограф
Довольно хороший вариант)Я тоже думала взять себе большую и как зал и как моя комната, но тогда очередная мечта о кровати испаряется(Буду думать, а балкон с маленькой комнатой точно буду объединять.
16.01.2014
Ответить
Оставшиеся комментарии доступны после регистрации
Зарегистрируйтесь и получите полный доступ ко всем функциям сайта.



