Детская
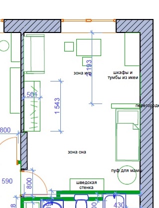
Интерьерное решение детской комнатыДевочки, помогите расставить мебель в детской, есть такой вариант, но не уверена в нем. Нужны кровать 160*80, шкаф (наверно 150 длиной), спортивный уголок, диванчик небольшой 120-140, столик со стульчиками, комодики для игрушек. Комната размером 480*360. Может еще будут идеи? Всем спасибо.

Oksana
У меня тоже прямоугольная форма комнаты. Сейчас ломаю голову над тем, как расставить мебель (для двух девочек). Вот для себя, например, точно определила, что "глубокая" мебель должна стоять по дальней от входа стене, а узкие стеллажи и комоды - по той стене, где дверь.У меня комната длиннее, но уже. Поэтому, чтобы немного "оквадратить" её, я предполагаю поставить бельевой шкаф по той стороне, где Вы шведскую стенку планируете (собственно говоря, у меня старый шкаф как раз так и стоит).Если хотите, можете посмотреть мою подборку детских.... вдруг, что-то вдохновит :-)))http://www.babyblog.ru/user/Oksana2008/3136673
09.03.2014
Ответить
Валюнчик
Послушаю, примерно такая же планировка. А какой размер у вас комнаты. у меня 290*490
06.03.2014
Ответить


