Планы на коридор и прихожую
Интерьерное решение прихожих, коридорчиковДевочки, здравствуйте! Что-то время летит быстро и не загорами наш ремонт, спрошу у Вас совета по поводу коридора. Каким я его себе представляю.....

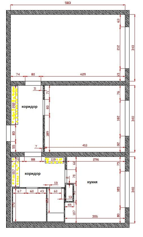
Вот такая у нас планировка
Будем размещать три шкафа (выделены желтым), правда пока не решили это будут двери купе или просто распашные, при входе планируется прихожая, а возле ванной и кухни шкафы для хранения вот что понравилось



Двери выбрали волховец галант (белые)

пол будет керамагранит светлый, он будет переходить из коридоров на кухню
на стены обои серо-голубого цвета и плинтуса по полу и по потолку белые.
Вопрос: три шкафа делать все одинаковые или можно например прихожую сделать как на первой картинке, а два шкафа например как на второй или третьей картинке и еще вопрос по цвету: мебель должна быть белая или допускается другой оттенок
NadiaHappy
И у нас но носу ремонт. Правда шкафов в квартире будет 2: один в прихожей, второй в спальне большой на всю стену. Мне безумно понравился ваш первый вариант, прям пищу как понравился! Забрала к себе в копилочку. 

05.03.2014
Ответить
Татьяна
Да, этот тоже мне очень нравится только вот найти бы где такой сделали. А в большую комнату я тоже буду делать, но там скорее будет шкаф купе однозначно
06.03.2014
Ответить
Светлана
Мы тоже скоро начинаем ремонт! Очень понравился ваш выбор шкафов! Каждый по своему....))) подскажите, это просто картинки с интернета или вы уже знаете, где такие заказать? С дверями мы вроде пока тоже остановились на Волховец, только кремовые, под ламинат...Мне кажется сочетается либо 1ые и 3ие, либо 2ые и 3ие, если 4ые, то везде одинаковые, у них дизайн разный совсем, первые более современные, четвертые- классика...
05.03.2014
Ответить
Татьяна
К сожалению это пока только картинки, да вот я сама выбрать не могу, мне конечно очень нравятся первые три картинки, но только по поводу стекол (как на второй) я не очень уверена, т.к. маленький ребенок
05.03.2014
Ответить