Кухня... все ли так по планировке??
Интерьерное решение кухниДевочки, начинаем ремонт и скоро предстоит заказывать кухню...
Вот эскиз кухни от Сашеньки
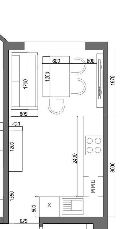
Вот планировка менеджера салона... все ли так на ваш взгляд? фартук будет другой - тут просто смоделировала так программа

и со встроенной вытяжкой

вот размеры 
вот смотрю и думаю: такую мойку или круглую просто.. может все верхние с матовым стеклом сделать? или так оставить. со встроенной или каминной вытяжкой..... 
Всем заранее спасибо за комментарии))))
Elena
На мой взгляд, можно попробовать поменять местами ПММ и раковину. Мне кажется, что сама раковина не очень удобно расположена: с одной стороны стенка холодильника, но если сдвинуть к углу, то удобно ли в углу стоять?Я просто представила: у холодильника, достаете продукты и рядом есть поверхность куда это положить/поставить, далее раковина в которой все моется, далее поверхность для нарезки и потом плита, после нее поверхность для техники и приготовленных блюд, чтобы не мешали на рабочей поверхности. Может быть сделала бы еще заворот (а может и не надо) и диван поставила бы у стены, где гарнитур, а телевизор у противоположной. Тогда не будет ощущения загромождения прохода и сидя на диване смотришь не на кухню, а на телевизор и стену (которую можно задекорировать).Мне нравится вытяжка, которую вам предложила Сашенька и без карниза кухня выглядит воздушнее.
22.04.2014
Ответить
Александра Панькова
Мария, делайте матовые стекла. Вытяжка лучше отдельная, правда — они и по качеству лучше встроенных. И карниз по всей кухне не надо сверху. И про мойку Вы правы — круглая лучше будет.
22.04.2014
Ответить
Анна
лично я люблю встроенные вытяжки. но на вашем эскизе от менеджера и первый вариант хорошо смотрится. если встроенную, то я бы сделала над ней шкафчик высотой поменьше, а над ним небольшую открытую полочку. а то слишком глухо смотрится
22.04.2014
Ответить
Анастасия
А мне нравится со встроенной вытяжкой. А про стекла на шкафах, может и легче но когда как на картинке, 2 кружки, 3 тарелки. А на самом деле так у вас будет? Если нет, то по мне вечный беспорядок. Вот у меня всего 2 шкафчика со стеклом (еще и стекла не такие поставили как хотела :(( ) и то надо было без них обойтись.
21.04.2014
Ответить
Оксана (Столешницы из иск.камня, кварца)
Мне все нравится в вашей планировке, но встроенную вытяжку не делайте
21.04.2014
Ответить
Олеся (Лесёнок)
Со встроенной мне не нравиться. Но это на вкус и цвет. ПММ в углу- не удобно, уже девочки писали часто. Лучше ПММ поменять местами со следующим пеналом. А в целом мне нравиться) Красиво)
21.04.2014
Ответить