Нужно ли согласовывать и где
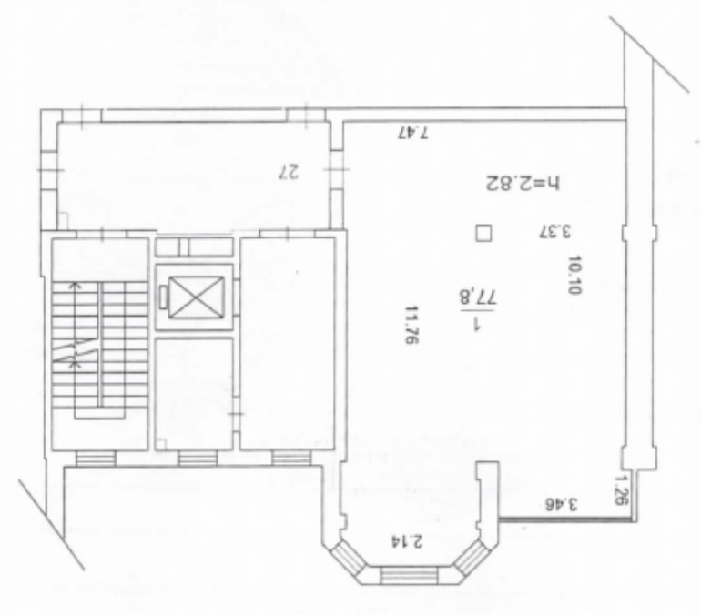
Перепланировки стен. Согласование перепланировки квартир и нежилых помещений.В техпаспорте, квартира свободной планировки, жилая площадь 77, 8 м
как видите, все одно помещение, окна 3
комнат будем делать 3
Как быть, куда обращаться и обращаться ли :-)

будет

Всем спасибо:-)
Олеся (Лесёнок)
Откровенно говоря, у меня один мат на языке- проектировщику руки бы вынуть. В 77 квадаратах всего 2 окна по сути. Ппц.
29.04.2014
Ответить
Олеся (Лесёнок)
Ээээ...а на экспликации я вижу только эркер и второй окно широкое и большое.
29.04.2014
Ответить
марианна
да, на экспликации как поняла, потолок не указывается:-)на нашем новом плане оно квадротное в третьей комнате:-)
29.04.2014
Ответить
марианна
Оксаночка, нам отдали план бти и кадастровый паспорт , там вот такая экспликация... И вся квартира по документам жилая зона, те даже подсобной или вспомогательной не указано
29.04.2014
Ответить
Ирина
своим паспортом и техпаспортом на квартиру в жилинспекцию, и сдаете документы на получение распоряжения с разрешением на то, что хотите сделать...
28.04.2014
Ответить
Ирина
нужно уточнить в ти(получив техпаспорт на квартиру) или у автора дома, где по портом и техническим паспортом на квартиру, который получаете в бти в жилинспекцию, а там они подскажутроекту дома должны быть санузлы и кухня, они должны остаться на своих местах. Расширить можно только за счет коридора саузел и кухню. А потом разработав то, как будете делать, идете с документами на квартиру, своим пасп
28.04.2014
Ответить
марианна
Александра, а почему нет? Нам сказали что он более экологичен)))А по сути вопроса, что скажете?
28.04.2014
Ответить
Aleksandra www.aleks-design.ru
А пеноблоки и пазогребень? Не? Не экологичны наверное =))))По сути вопроса: идёте в жилищную инспекцию по своему району и ненавязчиво интересуетесь возможно ли согласовать вашу перепланировку и сколько это будет стоить. Они вам предложат подготовить проект и подать к ним на рассмотрение скорее всего. Поэтому проще сразу найти фирму, которая согласует вам перепланировку и выдаст уже новый технический паспорт на квартиру, то есть услуга под ключ: подготовка проекта+согласование+получение нового паспорта. Тут цена вопроса скорее всего будет решающую роль играть.
28.04.2014
Ответить
Aleksandra www.aleks-design.ru
Кирпичные перегородки — это материал для домов, не для квартир. Тяжёлый, дорогой, требует тщательной штукатурки, на которую расходуется много материала. Для квартир уже давно придумали пеноблок и пазогребень. Ну и ГКЛ для особо лёгких случаев.
28.04.2014
Ответить