Закидайте мыслями)))
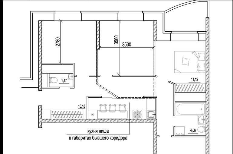
Перепланировки стен. Согласование перепланировки квартир и нежилых помещений.Девушки, есть такая трешка- и есть вопрос- никак же не получиться увеличить кухню? Правильно я понимаю? По комнатам решили что спальня точно будет с балконом, детки разнополые, разница возрасте большая- поэтому у них тоже по отдельной комнате. Вроде все норм- вопрос только а где тогда гостей принимать? Где вещи хранить, ни кладовки -ничего ведь нет((( может у кого есть идеи- буду очень благодарна

Наталья
Остановились пока на вариантах- увеличить коридор и сделать там систему храниния во всю стену, хотя пока и не представляю как это будет смотретьсяИ вот эти тоже варианты буду думать ( может кому пригодиться)


04.05.2014
Ответить
Наталья
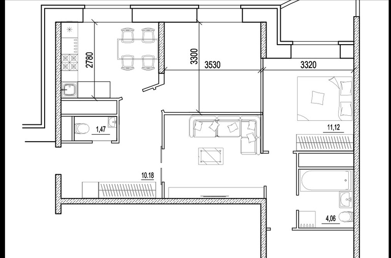
может 1. коридор увеличить за счет комнаты и сделать шкафы в коридоре. 2. может дверь в маленький туалет перенести на другую стену. 3. вход в кухню чутб ближе к коридору. но без размеров стен не могк понять будет от этого профит. у нас все отлично получилось
04.05.2014
Ответить
Наталья
О! Это поинтересней))) спасибо-покажу мужу))Только проблема в том что сыну наверно мало будет такой спальни((( но вариант хорош)))
05.05.2014
Ответить
Elena
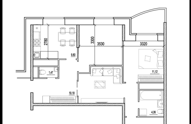
Тут я предполагала, что это ваша спальная. Если мы ставим распашные двери, то за ними из гостиной зоны должен открываться порядок :-). В детских комнатах обычно идет процесс игры и поэтому создается впечатление хаоса ;-). А спальная родителей красивая и аккуратная. Распашные двери прикрываются и получается две зоны: спальная и гостиная. Если делать спальную сына, то скорее всего комната должна будет изолирована, как на моей первой схеме.Сыну можно было бы отдать комнату с балконом, утеплив его и организовав рабочую зону.
05.05.2014
Ответить
Наталья
Балкон пара не согласиться отдать ни за какие коврижки))) он вообще не понимает зачем гостиная))) не любит гостей много-а с родителями и на кухне говорит можно посидеть да и они обожают внучку поэтому типа все равно будут у нее в комнате тусить. А я хочу место для вечернего сбора всей семьей-вот и собираю мысли и чертежи, чтоб аргументированно обсуждать возможность гостиной зоны)))) У меня еще идея была зонировать большую комнату чтоб у сына спальное место было и тусовочное не на одном диване-типа при редком сборе родни-посидим у него в комнате и ему будет где с друзьями собраться, но .... Окончательная картинка никак не вырисовывается(((
05.05.2014
Ответить
Наташа
сори, рисовать я не умею.....но вот такоую перепланировку отлично можно узаконить... (у вас мойка и плита остаются на территории кухни)Получается кухня-гостинная, и на месте старой кухни спальня (вход в спальню из гостинной). В такую спальню отлично встаёт кровать с тумбочкаи и в нишу встаёт маленький шкафчик для самой необходимой одежы. 

04.05.2014
Ответить
Ariadna
Гостиную поделить пополам перегородкой. Часть с окном сделатьнебольшой спальней метров 10. Остальную часть без окна присоединить к кухне. Вход в спальню из гостиной будет.
04.05.2014
Ответить
Наталья
Думали тоже над этим вариантом))) вопрос кого из детей поселить в 10 метрах)) ох-хо-хо((( вроде площадь нормальная а все равно места мало))))
04.05.2014
Ответить
Любовь Дизайнер Интерьера
Переносить кухню в гостиную нельзя.Мое предложение:Перенести кухню в коридор(вдоль правой стены), сместить тем самым коридор влево. Гостиная-кухня получится проходной, зато на месте кухни спальня полноценная.Это все при условии что газа нет, и если вы продумаете канализацию для кухни(стояки далеко и неудобно расположены, относительно планируемой кухни)
04.05.2014
Ответить
Виолетта
Убрать второй туалет и там сделать кладовку) не знаю как у других, но мы живем в двух этажном своем доме, у нас два туалета, на первом этаже и на втором этаже, так пользуются все на первом этаже и даже если он занят, никто не хочет бежать на верх)))
04.05.2014
Ответить
Наталья
Второй туалет не хотим убирать((( у нас и я и дочка любим в ванне поваляться-и всегда когонибудь приспичивает в это время))
04.05.2014
Ответить
Ariadna
Как вариант я бы на своих соседей сразу настучала. Да и слышно мне прекрасно все что они ремонтируют. Мне их помои протекшие в гостиной не нужны
04.05.2014
Ответить
Ксения
интересно,как-то особенно трубы ведут по стене???и зашивают ГК?никто даже не догадается...т.е. помои вам не нужны именно в гостиной?)))
04.05.2014
Ответить
Ariadna
На кухне у меня гидроизоляция вытяжка и керамогранит. Если протечка и будет тотне так сильно отразится. В гостиной мебель дороже и мягкая и полы из дерева. Да и к тому же будет пахнуть соседская кухня в жилой комнате. Вообще работы со стояками у нас сантехник из ук производит, он обычно и сообщает в ук. Такие случаи уже были. Со сносом стен аналогично. Возможно в новостройке проще с этим, но в заселенном доме все на чеку обычно.
04.05.2014
Ответить
Ксения
ну у нас ,например,из стояка вытянуты трубы на кухню и все,дальше мои сантехники тянули их куда надо и по факту могли бы протянуть в гостиную,никто бы не узнал.А если ставить хорошую вытяжку и опять тянуть её к общему стояку-тоже пахнуть не будет.
04.05.2014
Ответить
Ariadna
Сейчас ищу квартиру. В объявлениях есть квартиры со срочной продажей без узоканивания таких переносов, они дешевле на 1-1,5 миллиона.
04.05.2014
Ответить
Ксения
Оксан,если у человека наличные деньги,а не ипотека,и ремонт его устраивает,узаконена или не узаконена перепланировка-роли НЕ ИГРАЕТ.У моих друзей такая перепланировка,что её никогда не узаконят,но от того,что там нереально дорогой ремонт стоит она ДОРОЖЕ рыночной на 1.5 ляма и людей с наличкой такие вопросы не интересуют.
04.05.2014
Ответить
Ariadna
Меня не интересует ипотека вообще. Но важна юридическая чистота сделки. В том числе и такая.
04.05.2014
Ответить
Ксения
хороший ремонт и незаконная(в рамках разумного,без сноса несущих) перепланировка не удешевляют квартиру
04.05.2014
Ответить
Наталья
Вот и муж говорит-обойдешься без кухни-зато у детей нормальные комнаты будут. И без всяких незаконных перепланировок проще продать будет. Походу не судьба мне большую кухню-гостинную иметь (пока по крайней мере)))) но после однушки с 2 детьми и это счастье)))
04.05.2014
Ответить
Nataliya
согласна! у нас тоже такие квартиры потом сложно продать, и стоят они порядком дешевле.. ремонт тут вообще дело второстепенное..
04.05.2014
Ответить
Ariadna
Да потому что перекроят квартиру а потом пытаются задвинуть 60метров как трешку. Или из однушки двушку...
04.05.2014
Ответить
Nataliya
а еще сложно продать квартиры студии.. их вообще неохотно покупают, хотя есть куча народа, которые переделывают однушки в студии.. и это даже с узаконенной перепланировкой.
04.05.2014
Ответить
Яна
Перенести кухню в гостиную, сделать там студию-гостиную. И Вам всем по комнате. Я так планирую сделать в своей квартире.
04.05.2014
Ответить
Яна
Можно, только нужно согласовать с УК, если кухня с газом выйдет конечно дорого. Если нет, то можно по суду согласовать после перепланировки, перед продажей.
04.05.2014
Ответить
Наталья
Спасибо, будем узнавать. Что скажете насчет страхов многих, что спальня под кухней? Не пойму почему многие говорят что это плохо?
04.05.2014
Ответить
Яна
Страх, что затопят и лишние запахи сверху и снизу. Если сделать хорошую вентиляцию и натяжной потолок, который, если что, спасет от затопа))), можно смело делать из кухни спальную.
04.05.2014
Ответить

