Оставить ли 2 санузел? в ущерб гардеробной...
Девочки, без вас не справлюсь!!!! помогите кто чем может
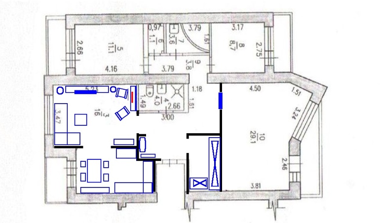
Имеется вот такая четырешка с четырьмя балконами)):
Планируется слева от входа большая кухня-гостинная. Муж предлагает снести гостевой санузел и увеличить (нарастить) гардеробную (от входа справа закуток). На месте санузла что можно сделать - полочки может какие? Чтоб не просто стена... что-то фантазии ноль
По плану - вот так:
Или оставить 2 санузел и соответственно не наращивать гардеробную (а сделать в каждой комнате по шкафу вместо этого или использовать балконы)
Что бы вы предпочли из двух вариантов?
И второй вопрос по расстановке мебели - первый или второй вариант или свой может предложите? 
Евгения
Прекрасная у вас изначальная планировка, немного позавидовала, я лично работаю с более худшей на данный момент.А что вам мешает сделать гардеробную вдоль всей правой стены, при этом и 2-ой санузел останется и кухню с гостиной объедините. Да и куда вы по плану удалять собрались вентиляцию и стояки от канализации? Красиво конечно затереть ластиком, на на практике то, что у вас там будет?Мой ответ, собственно как я сделала у себя — оставить санузел 2.
23.06.2014
Ответить
Елена
Мне не хочется закрывать пространство лишними стенами, углами, дверьми.насчёт вентиляции и канализации все подумали уже))
23.06.2014
Ответить
Elena
Я бы и гардеообную увеличила и су оставила. Тем более его не разрешат убрать и на этом месте делать жилую зону.
Я бы и гардеообную увеличила и су оставила. Тем более его не разрешат убрать и на этом месте делать жилую зону.
17.06.2014
Ответить
Елена
это точно? что-то я пока не узнавала... а как же делают гардеробные вместо санузлов, ни раз встречала. обходят нормативы? объясните пожалуйста, что у вас за обозначения?)) справа от входа гардеробная, а слева?
17.06.2014
Ответить
akvitty
Гардеробная — это не жилая зона. Жилая — это комнаты.В Вашем случае, если Вы уберете санузел, он станет частью жилой комнаты — гостиной. Но этот запрет можно обойти, если оформить эту часть пространства, как холл.
17.06.2014
Ответить
Elena
Гардеробные это нежилые помещения. Вместо туалета вы можете сделать гардеробную, но присоединить к комнате нельзя.Слева схематично показала, что можно поставить пуфик и зеркало ;-)
17.06.2014
Ответить
Elena
Хотела добавить в пользу туалета. Бывают моменты, когда ты уже оделся и тебя "приспичило", не пойдешь же в дальний туалет.Я выделила прихожую еще потому, что когда она проходная, то грязь на ногах несется либо в кухню/гостиную, либо дальше по коридору. Считаю, что грязная зона должна быть все же отделена от хождения босиком по полу.
17.06.2014
Ответить
xrum
так это дело времени. малыш подрастет и вторая ванная комната останется без надобности )
19.06.2014
Ответить
Elena
Для себя я бы делала 2 су: один с душевой, а второй с ванной.Сейчас мне приходится ждать мужа вечером пока он примет душ, потом только я иду принимать ванную, а спать то хочется... ;-)Было бы 2, то мы бы не ждали друг друга.Каждый сам для себя решает что ему нужно, я приводила аргументы в пользу второго су исходя из собственного опыта.
19.06.2014
Ответить
xrum
хм, интересное решение. я как-то привыкла, что все обычно совмещено: ванна одновременно с душем )
20.06.2014
Ответить
Елена
там где вход обозначен (перед ним) у нас имеется тамбур, это как раз и есть грязная зона))) только поэтому я коридор не вижу смысла выделять еще и при оф.входе в квартиру.
19.06.2014
Ответить
Elena
В принципе, да, это выход... Главное, чтобы по-размерам он не напоминал клетушку, где вдвоем одевать или снимать обувь некомфортно из-за того, что либо стукаешься попами, либо стоит мебель, либо обувь... Чтобы при такой площади квартиры не напоминал коридорчик из хрущевки.Я считаю, что прихожая это своего рода лицо квартиры. Приятно входить в квартиру и чувствовать себя комфортно и эстетически приятно.Мне никогда не нравилось, когда люди отгораживают часть общего коридора, ставя еще одни двери для себя или на 2 квартиры, и устраивают там "грязную" зону. Заходишь в клетушечку размером 120 на 120 и видишь обувь стоящую вдоль стеночки, какие-то вещи... Да еще и если пришел в гости не один, а с семьей, то кто-то стоит в коридоре и ждет, когда освободится место в таком тамбуре. Потом думаешь, а входить в квартиру надо босиком? А обувь оставить там или занести? Если там, то количество обуви в таком маленьком пространстве увеличивается...В общем, к такому решению тоже надо подойти красиво ;-).Это просто мое мнение...
19.06.2014
Ответить
Elena
Еще чуточку... Еще подумайте о непрямой кухне вдоль стены, лучше с заворотами. У меня кухня в длину получилась 4 метра, вот я бегаю :-) (хотя для фигуры это неплохо ;-) ), но сейчас все посматриваю на угловые или буквой П. Вроде бы не напряжно, но хочется, чтобы растояния были более компактными, но не в ущерб размера рабочей поверхности.
19.06.2014
Ответить
Елена
Хорошо) спасибо, вы мне прям очень помогли)) видела вашу квартиру (а постах) - оч здорово! Можно я вас тогда спрошу, у нас планируется проектор для фильмов и мне хочется все таки дополнительно телевизор (не только ж кино смотреть) в гостиной, как разместить все эти вещи? Я так понимаю для проектора стена нужна...для телевизора тоже место...а диван должен "смотреть" и туда и сюда...
19.06.2014
Ответить
Elena
Мне нравятся вот такие решения:
Экран проекторя прячется в конструкции потолка. На стене телевизор и экран опускается перед ним, в случае необходимости. Тогда диван может смотреть в одну сторону.Я бы посоветовала вам обратиться к дизайнеру, чтобы вам помогли поавильно разместить мебель, технику и разработать планировку для вас.
Экран проекторя прячется в конструкции потолка. На стене телевизор и экран опускается перед ним, в случае необходимости. Тогда диван может смотреть в одну сторону.Я бы посоветовала вам обратиться к дизайнеру, чтобы вам помогли поавильно разместить мебель, технику и разработать планировку для вас.
19.06.2014
Ответить
Юлия Н.
никогда не жила с 2 сан.узлами, может поэтому не понимаю зачем. Я за большую гардеробную.
17.06.2014
Ответить
Kuzdra
мы раньше жили в квартире с двумя туалетами, а теперь пока — с одним. Разница колоссальная, второй санузел необходим, тем более у вас двое детей!
17.06.2014
Ответить
Надежда
Я за первый. Так как гостевой санузел находится практически в кухне-гостиной, как-то не комильфо: пожрал — посрал?. Меня в советской постройке это бесит — туалет прямо возле кухни. Если есть возможность — уходите от этого.
17.06.2014
Ответить
Надежда
Переносить туалет. К сожалению у меня ситуация такая во всех квартирах, в которых жила.
17.06.2014
Ответить
Евгения
Представляете, практически во всех существующих сериях домов в России, туалет располагается рядом с кухней, так как завязка идёт на вентиляционную шахту и канализационные стояки.Насмешил ваш комментарий.
23.06.2014
Ответить
Надежда
Я, кстати, вспомнила новостройки и там действительно также: кухня-туалет. Теперь буду знать — все дело в вентиляции.
23.06.2014
Ответить
♥ღ♥Машулькин ♥ღ♥
Два туалета-это мена удобно!!!!лучше их оставить
17.06.2014
Ответить
Светлана
Мне кажется можно и то и то вполне уместить. Сделайте входную дверь на уровне несущих стен — это увеличит холл и тогда и гардеробная будет, и санузел
17.06.2014
Ответить
Елена
Слишком много углов и замкнутость пространства меня отталкивают... Мы пытаемся уйти как раз от этого
17.06.2014
Ответить
akvitty
Если честно, жили с двумя санузлами, но нам не пригодилось. Но у Вас двое детей, может, Вам актуальнее будет. В любом случае, совмещать гостиную с санузлом — себе дороже. Это мокрая зона у соседей сверху, не исключены затопления. Плюс звуки от канализации. Для себя я бы на этом месте устроила постирочную. С гладилкой и сушилкой.
17.06.2014
Ответить
Елена
Спасибо) но там то особо ничего и не предполагается, может панно какое-то или декоративное место (полоски с фото, сувенирами)...
17.06.2014
Ответить
Оставшиеся комментарии доступны после регистрации
Зарегистрируйтесь и получите полный доступ ко всем функциям сайта.
Около кресел камин.