Помогите с планировкой кухни

Можно попробовать вот так. Тесновато конечно, но зато все что хотели поместится. 1017bdb26d00b0b73655d4963a846d15.jpg Холодильник в нише, как все советуют. В том углу, где я вам микроволновку нарисовала можно сделать целый ряд техники и духовой шкаф на уровне груди и сверху микроволновку, а внизу посудомоечную машину.
08.08.2014
можно действительно увеличить подоконник, но не для мойки , а для рабочей поверхности. И со стороны стены этот выступ будет см 15 не больше.
08.08.2014
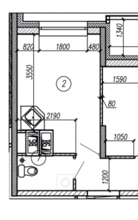
Если холодильник убрать в нишу, то получается,что у вас столешница длиной 3550 мм.3550/600= 5,9 — количество шкафчиков по 60 см. Один на варочную панель и духовку и еще 1 на мойку (хотя она меньше места занимает) = 3,9 шкафа -это у нас 234 см рабочей поверхности, что вполне достаточно.Если делать пенал для духовки, то остается 174 см рабочей поверхности. Мне бы этого вполне хватило,  Пенал можно сделать у окна. Микроволновка прекрасно встает над духовым шкафом. А так же есть возможность сделать закругление со стороны раковины до ниши с холодильником, что увеличит площадь столешницы.Расстояние от кухонного гарнитура до стены 2,5 метра. Туда прекрасно встает прямоугольный стол с 4-5 стульями.Тв можно повесить на стене над столом, чтобы сохранилось больше места для навесных шкафов.
08.08.2014
Доброго времени суток!С радостью поможем Вам с этим нелегким вопросом!www.vmrstudio.comХорошего настроения!
07.08.2014
А сколько у вас короб?
07.08.2014
и что тут думать. В угол возле двери — холодильник. Рабочее пространство с газом и мойкой по линии. Напротив обеденный стол.
07.08.2014
Дело в том, что недостаточно получается места:( мало рабочей поверхности, ну и шкафов тоже, и я уже что только не передумала, не знаю, как сделать 
07.08.2014
Нам сейчас на кухне длиной 6 метров плюс барная стойка места мало (площадь кухни около 15-17 м2), поэтому в комнатке 12,5 м2 сложно поместиться:(
07.08.2014
там стпновится! у меня тпкая же кухня, чуть меньше. И я трубы моечные с угла от двери спеуиально буду перектдывать в линию одну. Вы посчттайте — иойка плита — по 80 см, шкафчики по 60 см.
07.08.2014
Посоветуйте фабрику кухни в Москве Кухни