Квартира 45м2. наш реализованный проект
Всем привет.
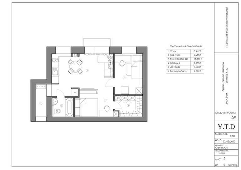
Не так давно закончили квартиру для семьи из трех человек. Задача была не простая т. к. метраж всего 45м2, а функций у нее на все 80 метров.
Квартира до.


Нарисовали эскизы.

Дальше был рабочий проект, стройка и вот что получилось











Инна Дизайнер Частного дома
приятная цветовая гамма и нет нагромаждений. Очень здорово!
21.08.2014
Ответить
Забава
а что вообще потом происходит с квартирами с неузаконенной перепланировкой?
20.08.2014
Ответить
Виктория
При продаже квартиры, чтобы согласовать новый паспорт бти, нужно исправить недочёты на которые укажет инспектор.Но всегда есть нюансы.Например раньше нельзя было присоединить лоджию к комнате — в этом случае инспектор чертил красную линию на месте оконно-дверного блока и писал "несогласованное включение в тепловой контур здания".Проблему можно было решить так: временно, на место возвращался балконный блок (для таких случаев по возможности предлагали его не выбрасывать). При этом способ крепления был не очень важен — главное чтобы держался и дверь можно было открыть.В данном случае с газом, можно просто убрать кровать и кухня/столовая/гостиная/спальня/кабинет превращается по сути в большую кухню (детская в этом случае становится просто жилой комнатой).Если кратко — главное обеспечить нужную вентиляцию и соблюсти соотношение площади остекления к объёму помещения.Напрочь неузакониваемую перепланировку стараемся не делать и до последнего отговариваем заказчика — пока удавалось отговорить)
20.08.2014
Ответить
Забава
я читала, что не узаконят, если объединять кухню с комнатой, типа максимум 2х метровый проем в стене, но никакого расширения из-за газа...
20.08.2014
Ответить
Виктория
Если остается как минимум одна изолированная жилая комната то согласование возможно. Просто 2 комнатная квартира тогда считается 1 комнатной+кухня/столовая. Вообще есть п. 3.24 и 3.25 Приложения 2 к Постановлению Правительства Москвы № 758-ПП от 02.11.2004 г. "Об утверждении нормативов по эксплуатации жилищного фонда". Там приведены требования к помещениям с плитами.
20.08.2014
Ответить
Инесса
Замечательный проект! Сделан с душой, все продумано, стильно и уютно) Понравились некоторые приемы, например со стеллажем в гостиной, тоже пару раз пользовалась таким) Утащу в копилку интерьеров))
18.08.2014
Ответить
Елена
приТнаЯ квартира. Мне фасады в детской понравились своей изюминкой. И Лесквик белый, вы перрекрасили его?
18.08.2014
Ответить
Юлия
Великолепно! Первый из всех просмотренных за несколько лет интерьеров, в котором я хотела бы жить!
17.08.2014
Ответить
Elena
Хорошее решение!Очень приятно смотреть как реализуется дизайн-проект на реальных фотографиях ;-).
17.08.2014
Ответить
Оставшиеся комментарии доступны после регистрации
Зарегистрируйтесь и получите полный доступ ко всем функциям сайта.