Вопрос к профессионалам-дизайнерам!

Доброй ночи, Елена! Дизайнер обязан знать основы всего вышенаписанного, правильно составлять чертежи , что бы любой электрик смог прочесть чертеж без затруднения. по поводу Электропроводки и сантехнического плана — это не в компетенции ни дизайнера , ни архитектора. У них нет доступа к таким работам! наша студия, допустим, предлагает за доп плату такую функцию как инженерные чертежи (электроснабжение, водоснабжение, слабые токи, вентиляция, система "умный дом", и прочее). НО в Вашем договоре и не прописаны данные работы — ссылайтесь на это (если, конечно, у Вас есть договор).Это мы Вам точно говорим, как коллектив далеко не "новичков" в этом деле))) Если Вам интересно , присылайте нам те чертежи, мы скажем на сколько они вообще правильно составлены) vmr_design@yahoo.com с пометкой "Бэби инженерные"
20.10.2014
спасибо большое, что разьяснили. А то мы с мужем плевались) и спорили по этому вопросу- так дизайнер получается великим богом вездесущим).Однако есть такие специалисти, откуда они это знают? самообразование? или все таки достаточно вышки в этих вопросах, рросто человек с инженерным складом ума?
21.10.2014
Это люди с вышкой инженера.Тк это все очень серьезные вещи (электроснабжение, водоснабжение и тп), то тут лучше обращаться либо к 100 раз проверенному самоучке, либо к реальным специалистам не просто с вышкой по данному профилю, но и с большим опытом на реальных объектах.
21.10.2014
Мои знакомые нанимали девочку дизайнера и я видела схемы с трубами, электрикой, перепланировкой и пр. чертежи разные в проекции и т.д. Я не профи, но думаю Вашему знакомому дилетант попался. Жаль. Так быт не должно.
20.10.2014
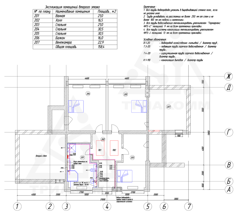
Там вряд ли трубы) скорее выводы под сантехническое оборудование, а это совершенно разные вещи, вот что такое план водоснабжения: 1b01bd6533f2d84a5ecdb2cfa1eda036.png 08366d99e0413f6d6cd1bb812835415a.png
20.10.2014
Так отличный план, я вижу. А если рабочие, по каким-то причинам не смогли реализовать, так это вина рабочих....
21.10.2014
реализовать что? что ж это тогда за рабочие то такиие?)))
21.10.2014
Реализовать проект в жизнь, а рабочих плохих очент много....тут ничего удивительного нет. У моей подруги 3 бригады сменились пока ремонт в 2х комнатной квартире сделали.
21.10.2014
Я Вам так скажу, Марина. Исходя из большого опыта, люди, которые меняют бригады ищут самую дешевую, что бы делала очень качественно, без задержек в сроках, дорохо-бохато-качественно. "Скупой платит дважды" как мы знаем. Тут все понятно с ситуацией Вашей подруги.Рабочие реализуют проект в жизнь глядя на всю рабочую документацию и на визуализацию. Я ,конечно, не могу сказать какие там были по качеству чертежи у дамы о которой пост, но если у нее все было правильно, то никаких вопросов даже близко бы не возникло о рабочих. Другое дело, если Вы имеете ввиду "как же тогда реализовать проект без чертежей инженерных" — легко! Они хороши только для больших объектов (ТЦ, большие загородные дома, дачи ), если у Вас рабочие, которые по рабочим чертежам дизайнера не могут реализовать проект в жизнь, то таким ничего не поможет, да еще и ни дай Бог таким в руки попадут инженерные планы! 
21.10.2014
были схемы разводки, но они не совпали с реальными знаниями электрика, — так что дизайнера дилетантом не назовешь.
21.10.2014
Курсов не кончала, так как с высшим архитектурным. Конечно, дизайнер должен все знать. Вот только, по многолетнему опыту, дизайнер должен не только знать, но и вести проект до финальной реализации. А когда авторского надзора со стороны дизайнера нет, то и предъявить ему нечего, т.к. переделки строителей очень часто их ошибка, которую они вешают на другого. Не утверждаю, что в описанном Вами случае это именно так.А что касается договоренностей — так надо в договоре все детально прописывать, и не оплачивать невыполненный объем (я про "походить по квартире в 3д").
20.10.2014
это было основное пожелание хозяина, как я поняла со слов. Неужели трудно было видео в 3д сделать?!
21.10.2014
в 3д максе, допустим нельзя сделать видео. А "прогулка в 3д" стоит хороших денег :) и я не думаю, что стоимость проект в Вашем городе смогла бы покрыть хорошую "прогулку" 
21.10.2014
даа?! я думала, это в 3 д делается..причем думала, что не так сложно, когда уартинуа нарисоваена есть. Ладно, поняла, вы мне многое разъяснили. Спачибо большое.
21.10.2014
Нет))) такой функции там нет)не за что!)
21.10.2014
))))) а в свит хоуме что-то  подобное есть)) пойду-ка посмотрю)
21.10.2014
В 3д можно делать анимацию, мультипликацию, но Лена, поверь мне, это далеко не быстро и просто и совсем не уровень простого диза)) И в 3д на моем уровне например, не моделируется вся квартира целиком, только по комнатам в разных файлах. Никакой комп не потянет отрисованных хором с хорошей деталировкой в одном файле!
21.10.2014
аа, понятно. Расскажу супругу, чтоб предал товарищу. Зачем тогда девушке было не объяснить этот момент. Хотя у нас дизайн — это только -только, боялась видимо потярять хорошо платящего клиента)а если в одном фале рисуешь всю квартиру, а потом групируешь комнаты и "прячешь" их. Все равно не потянет? уже не видео, а просто фоты. Я в свит хоуме так делаю, скрываю, что нужно и сразу считает лучше.??
21.10.2014
Лена, у меня одна комната весит 700 мб! Сколько будет весить вся квартира и подумать страшно. Про прятанье впервые слышу)
21.10.2014
big_smiles_278.gifну, может чего и напутала, у меня вынос мозга детьми, а-а-аа,я вообще не умею счас думать..
21.10.2014
Да она походу ничего не знает просто)
22.10.2014
ну если и есть, то качество будет бебебе
22.10.2014
ну понятно,  в нашем современном мире, люди то быстренько к качеству привыкают, парвда не все знаеют ему цену.
22.10.2014
Ну если она сказала бы заказчику цену, он бы ее узнал :)А девушка просто кивнула и взяла деньги, а потом , видимо , ах;;;а от того что от нее требуется
22.10.2014
нет, естественно они договорились на цену ,предоплату и что требуется.
22.10.2014
Я к тому, что она до конца видимо не понимала чего хочет заказчик, раз он так и не прогулялся по квартире
22.10.2014
)) возможно)
22.10.2014
Ламинат Прошу совета, межкомнатные двери