3 в 1
Дано: 1 комната. Задача: разместить в одном помещении спальню, рабочее место, место для отдыха. Решение: Проект студии архитектуры и дизайна INT2.
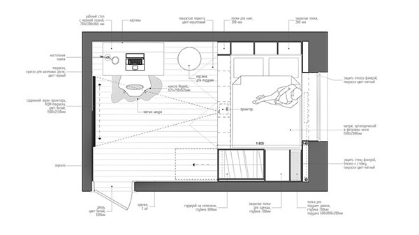
Цитирую " Изначально в комнате находилось много разных отдельно стоящих предметов: шкаф для одежды и постельного белья всей семьи, стеллаж для учебников, комод для мелочей и книг, односпальная кровать и рабочий стол. Из-за это пространство воспринималось дробно, что характерно для многих квартир. Мы предложили скомпоновать отдельно стоящие предметы в одной части комнаты, тем самым освободив от них другую. Для этого мы запроектировали многофункциональный "бокс", который вмещает в себя компактную систему хранения (гардероб, комод, книжный стеллаж, шкафчик для хранения мелочей, ящики для постельного белья и крупных предметов) и место для сна и отдыха (кровать и диван). На противоположной от "бокса" стене мы разместили многофункциональную поверхность, которая является зеркалом, органайзером и экраном. Это удалось получить с помощью сдвижной панели, которая в одном положении открывает органайзер, в другом - зеркало, а в центральном - является экраном для проектора"












Спорный проект, но иначе было бы скучно))