Перепланировка квартиры 42 кв. м.
Вопросы и ответыДевочки, может быть кому будет интересно покрутить данную планировку, очень интересное и необычное задание.
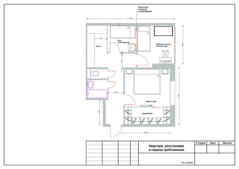
СЕмья из 5 человек- мама, папа, бабушка, дочка 2 года, сын 10 лет.
Уже присоединили лоджию и перенесли мокрую точку. Высота потолков -260 см.
Каждый член семьи -с характером и с желаниями, например глава семьи -муж терпеть не может шкафов и хочет одну большую гардеробную.
Бабушка хочет свой тихий уголок, кровать пошире и стол для ноута. и т.д.
Обмерный план под катом.

Мои варианты все потерпели крах!)
1 - http://www.babyblog.ru/user/lenycenok/3155715
Елена
крутяккк!!! много общаясь и зная больше всех — идеальный враиант!!!!спасибо огромное! я ей счас все покажу)) 

04.11.2014
Ответить
Аннна
Как для себя... Обычно так заказчиков и устраивает. Единственный нюанс — с дизайном не расслабиться. Делайте кухонную мебель, стилизованную под гостиную. Рада, если смогу помочь!
04.11.2014
Ответить
selena1002
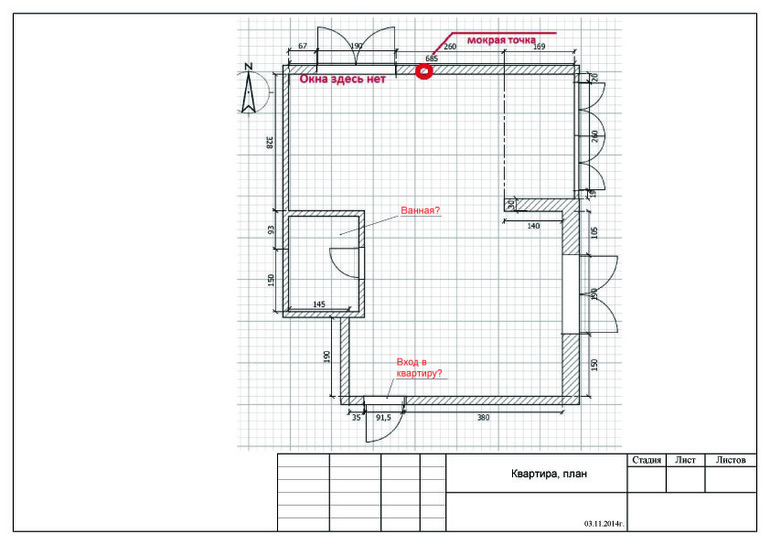
Елена, добрый вечер!Я хотела бы знать еще 190 и 260, это окно и балкон, соответственно?
03.11.2014
Ответить
Елена
если вы спаршиваете про см вверху, то вся стена 685, в т ч лоджия 169.А по правой значения 190 — окно, 260- окна лоджии
если вы спаршиваете про см вверху, то вся стена 685, в т ч лоджия 169.А по правой значения 190 — окно, 260- окна лоджии
03.11.2014
Ответить
selena1002
Пока вот так получилось, осталось еще изыскать места хранения в комнате бабушки и внучки, подумать над кухней и прихожей, показать, как будет выглядеть комната мальчика. Жаль, гостиная не получается. Если интересно, пишите, продолжим завтра.
Пока вот так получилось, осталось еще изыскать места хранения в комнате бабушки и внучки, подумать над кухней и прихожей, показать, как будет выглядеть комната мальчика. Жаль, гостиная не получается. Если интересно, пишите, продолжим завтра.
03.11.2014
Ответить
Елена
спасибо вам. Окоментирую то, что мне сказала хозяйка. В ванну не станет сушилка. У бабушки нет столика для компа. У мцжа нет стола для ноцта, у парня нет рабочего места. В коридоре некуда вещи определять.Сложно, правда)?!сп
04.11.2014
Ответить
selena1002
Елена, добрый день!У бабушки в комнате стоит столик, а на нем компьютер.Стол для ноута необязательно ставить большой, есть специальные маленькие, можно использовать тумбочку, можно поставить столик в гардеробной, вариантов много.В коридоре, я писала, нужно сделать шкаф или вешалку. Для мальчика все есть, кровать-чердак, а под ним шкаф и рабочее место. Могу прислать фото.По поводу сушки в ванную, можно поподробнее, не все пожелания были озвучены. Можно узнать все? Меня больше смущает отсутствие мест для хранения в комнате бабушки.Елена, Вы могли бы писать мне на почту astella11@yandex.ru?
04.11.2014
Ответить
Елена
да, я в ам отправила письмо.)) с длинным текстом, пожеланий много. в ванной должна быть стиральная и сушильная машины — т.е. 2.
04.11.2014
Ответить
Абрикосик
Окно заделали? Зря, вариант дивана около этого окна было бы идеальным решением — или для родителей или для бабушки. Детям и гардеробную только у входа сделать. Кухню по середине, как и Было у Вас в первом варианте. Единственный минус, что там окна нет — воздуха свежего мало. Но т к бабушка на балконе не хочет, то ее бы к этому заделанному окну, родителям балкон и на остатке кухню сделать :) Вариантов не много.
02.11.2014
Ответить
Елена
нет, окна не было, это мне показалось, что оно было, а больше плана не было. Поэтому окна не было по застойщику.Да, варинтов не много, действительно.
02.11.2014
Ответить
Настасьюшка
хорошие у вас варианты! особенно приглянулся первый,только нужно мальчика с бабушкой поменять.а родителям самое удбное место положено,по иерархии,они в семье главные.
01.11.2014
Ответить
Ирина
Честно понравился вариант тот что вам девушка предложила. Только диван родителям обычный, а вот кукхню можно углом и поделить пространство либо развижной перегородкой, либо барной стойкой
01.11.2014
Ответить
Елена
дело в том, что свет естественный на кухню идет только от балкона, поэтому перегородку имеет смысл делать максимально широкой, ну и пропускающей свет. ПОэтому угловая кухня не очень из этих соображений. А еще либо барная стойка либо стол, что важнее.Спасибо вам за мнение, такое развернутое.Вариан, предложенный девушкой весьма неплох)
01.11.2014
Ответить
Ирина
Я понимаю вас, тяжело работать с таким объемом и таким количеством народу, в ваших проектах "тесно", а им скорее всего хочется и гостиную и спальню...
01.11.2014
Ответить
Наталья
Мы делили апельсин! Запросы конечно на 142 кв. 1 и 2 вариант хорошие. 1 мне больше нравится.
31.10.2014
Ответить
натали
Мне второй вариант понравился, тем что бабушка с внучкой будет,, т.к. Сын уже взрослый, а первый вариант хорош для родителей, им самая лучшая комната достается, а если еще дверь в гардеробную сделать, вообще супер. Но все равно как ни крути маловата квартирка то.
31.10.2014
Ответить
Nastenchig
Мне нравится вариант Ани ниже. Детям двухъярусную кровать для экономии места .
31.10.2014
Ответить
Анна
я не дизайнер,но у меня квартира с чуть большей площадью)))и в данном случае я сделала бы так,сразу скажу-это все навскидку,может подкину идею с расположением!
родителям бы я поставила вместо кровати большой угловой диван,тамже смогла бы собираться вечером семья,но чтобы они могли отдохнуть,поставила бы раздвижную перегородку. самое большое пространство отдала бы детям.
родителям бы я поставила вместо кровати большой угловой диван,тамже смогла бы собираться вечером семья,но чтобы они могли отдохнуть,поставила бы раздвижную перегородку. самое большое пространство отдала бы детям.
31.10.2014
Ответить
Оставшиеся комментарии доступны после регистрации
Зарегистрируйтесь и получите полный доступ ко всем функциям сайта.