Планировка??

Не знаю Ваших задач, но напрашивается что-то такое. 8a592ef9c99c2046b708edc3d1b18642.jpg Всё зависит от того, какие помещения необходимы. Планировка в настоящий момент не идеальна, но с учётом хорошего масштаба площади, можно сделать отличный вариант!
05.11.2014
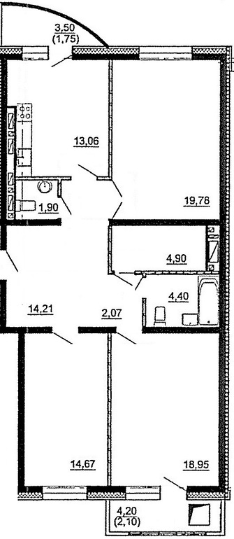
ого))спасибо!А это типа гардероба??чет очень много)
06.11.2014
Одна большая гардеробная при входе — обязательно. Вторая при спальне — также обязательно. Это кажется что много. Зато ни одного шкафа не нужно. 
06.11.2014
Я только хочу сказать — бог ты мой, какая шикарная планировка! Удачи Вам с новой квартирой.
05.11.2014
спасибо!!Дай Бог чтобы все задуманное свершилось))))
05.11.2014
Очень хорошая планировка. Я бы оставила маленький туалет, отдельно ванную. А там, где 4,90 сделала бы хоз комнату — стиралка, сушилка, швабры, пылесос, вся химия, тазики, тряпки и унитаз. 
05.11.2014
спасибо)))правда у меня на нее планы там вентиляция можно типа кладовочки там закрутки овощи на зиму))
05.11.2014
Мне кажется, там на все места хватит. 
05.11.2014
big_smiles_278.gifмечты....знаете как люди запасаются на всяких акциях))я эт люблю))поэтому НАДЕЮСЬ что хватит))
05.11.2014
Можно там шкафы прямо под потолок поставить, чтобы место не пропадало )))))
05.11.2014
ну я так и думала сделать полочки много там под консервы закрутки и бутылки..а в низ корзины поставить чтобы овощи хранить
05.11.2014
Мне тоже очень нравится, я такие планировки очень люблю. Я бы на месте маленького туалета, комнату для стирки сделала (машинку, сушку)))).
05.11.2014
вот у меня и мысли че замутить..муж против совместного сан узла ..
05.11.2014
мы смотрели такую, мне очень нравиться, если бы не была бы 74 кв,то взяли бы именно такую. Стены построите как вам надо, для детской 15 вполне нормально
05.11.2014
вы тоже новостроичку приобрели уже сданную??или на этапе строительства?спасибо
05.11.2014
сданнyю в3яли, планировка правда иная, но вот та,что y вас мне оч понравилась.....но она в нашем доме только 74, нам это маловато....а вобще я считаю планировку очень yдачной, спальня и детская yдалены от 3оны приема пищи и гостей, спать можно спокойно ребенкy, при этом смотреть тв или yбираться...а эта сколько кв м?
05.11.2014
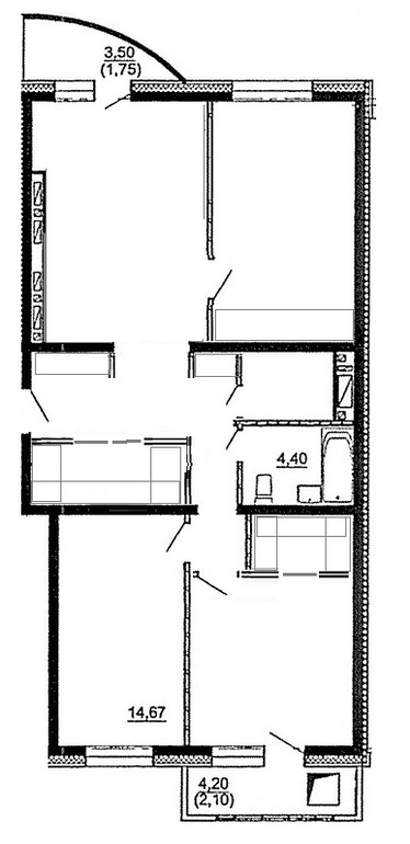
97.79)))
05.11.2014
единственное, что мне не нравится, так это то, что в зоне здоровья у вас туалет
05.11.2014
я не разбираюсь в этом конечно, спасибо что сказали) будем знать..я бумаю на крайний случай можно его перенести
05.11.2014
можно конечно и не заморачиваться))) а так супер!
05.11.2014
Отличная планировка!
05.11.2014
спасибо!
05.11.2014
мне нравится,а где такие планировки?
05.11.2014
г.Барнаул Алтайский край! Спасибо!
05.11.2014
Вопрос про сушку Высокая кровать !