Подскажите с планировкой?
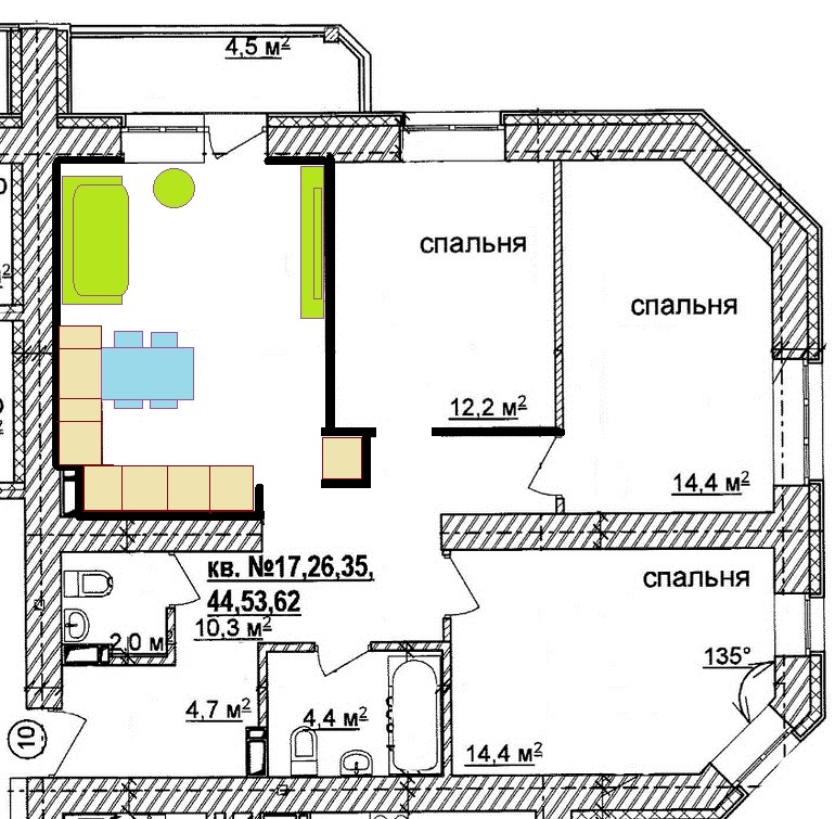
Интерьерное решение кухниДевчата, выручайте! Всю голову себе сломала. Имеется кухня-столовая,она же гостинная в 18,6 метров. а как разместить в ней кухонную зону так чтобы не нагромождать пространство я не знаю:( Помимо кухни туда нужно засунуть диван, телевизор и обеденную зону.
Думаю что диван к окну, напротив диван, а в угол где нарисована мойка - кухню...Но как разместить обеденную зону тогда:(
•●♥• ЯнА •♥●•
Я бы сделала кухню в комнате 14,4. Можно кухню в обе стороны сделать. И диван со столом отлично впишуться, как не крути.
29.11.2014
Ответить
Елена
Как мне нравится ваша планировка. Для меня прям идеальная))) Если не секрет "где эта улица, где этот дом"?
25.11.2014
Ответить
МамаСолнца
Спасибо, наверное так и буду делать, а куда холодильник, как думаете? вот за стеночку?
26.11.2014
Ответить
Светлана
)) Холодильник у входа, раковина и плита тоже по этой стороне. Или сделать ход конем и еще немного у коридора забрать — но тут уже точные размеры нужны. Зато холодильник в нишу ставится, а для остальной техники места больше.
26.11.2014
Ответить
Абрикосик
ТВ можно над столом и стульями повесить.Гарнитур можно сделать: 2570*3000
24.11.2014
Ответить
МамаСолнца
Спасибо за вариант, буду обдумывать хорошенько. а куда холодильник в таком случае? в какую часть кухни?
26.11.2014
Ответить
Yulia
я извиняюсь за кривульки,рисовала пальцем на тел)))) красным-кухня. Зелёным-обед.стол. синий — диван и тв
я извиняюсь за кривульки,рисовала пальцем на тел)))) красным-кухня. Зелёным-обед.стол. синий — диван и тв
24.11.2014
Ответить
Yulia
Ну можете барной. Но я имела ввиду оьычная столешница кухни. Внизу обычные ящики кухонные.
24.11.2014
Ответить
ЯнеСлишкомЛюблю
у нас знакомые свою студию таких же практически размеров разбили перегородкой — со стороны перегородки у них стол и холодильник был, а по стенке маленький кухонные гарнитур, а в "комнатке" диван и Тв как вы и нарисовали (+ ещё детская кроватка как-то помещалась))))
24.11.2014
Ответить
Yulia
Молодцы какие на 18 то метрах)Вообще я за открытые единые пространства, условно зоны можно разграничить мебелью,текстилем,светом
24.11.2014
Ответить
Yulia
Сейчас пока наша квартира делается( студия будет),живём в малюсенькой 2-ке где кухня и спальня это разные комнаты в разных концах кв. Едой пахнет когда готовлю даже в подьезде. Но пахнет вкусно,не могу сказать что напрягает)
24.11.2014
Ответить
МамаСолнца
Я сейчас жила в студии, однокомнатную переделали в студию, но бывшую кухню сделали спальней. Для меня одни плюсы. Запахи еды быстро выветриваются, вытяжку включаем если что то жарим (хотя жарю именно я редко конечно), а так с маленькими детьми очень удобно, когда готовишь они всегда при тебе, не надо бегать с кухни каждые 2 минуты и смотреть что да как с ними. плюс есть полноценная спальня куда можно положить ребенка спать и закрыть комнату, не мешая не ему ни себе.
26.11.2014
Ответить
МамаСолнца
только написать могу, пока не разобралась с редакторами, сижу пыхчу. стена где кухня сама нарисована 4340, стена от вытяжки до угла скошенного 2570стена где предположительно диван будет 4140, до балкона с кухонной стороны 900, с "диванной" 820
24.11.2014
Ответить
ZhannaT
Быстренько набросала. Стол 900*1200. Над мойкой и плитой навесные шкафы.
24.11.2014
Ответить
