Помогите, пожалуйста, с кухней!
Интерьерное решение кухниДобрый день, уважаемые форумчане! Давно читаю этот форум и вот, наконец, мы (молодожены и наши двойняшки Ромка и Темка) стали счастливыми обладателями собственной 3 комнатной квартиры! И если с комнатами все более менее понятно, то кухня стала нашим семейным ребусом. Очень хочется создать функциональную и уютную кухню! Но как все грамотно расположить?! Прошу Вашего взгляда со стороны. 
И так что мы имеем:
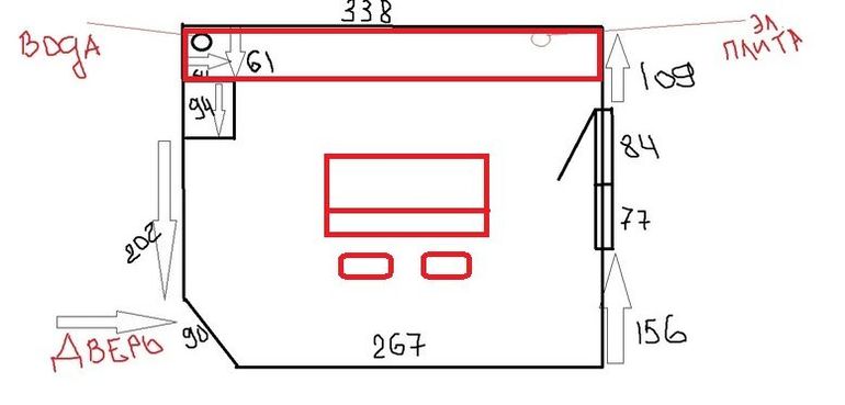
кухня 13,70 с вентиляционным коробом, высота потолков 2,70.
Размеры кухни 
Из техники нужно разместить: варочная поверхность на 4 конфорки, духовка (не хочу выносить в колонну), микроволновка, холодильник (не встроенный), телевизор, стол и кухонный уголок. ПММ не будет. Лично мне хотелось бы скомпоновать ящики так, чтобы получить максимальную рабочую поверхность между раковиной и плитой, и при этом попытаться сохранить симметричность. Вентиляционный короб решили обыгрывать Г образной кухней примерно как тут 
По дизайну будет напольная плитка под дерево + светлая кухня+зеленый акцент+стена в обеденной зоне из дикого камня 
Прошу Ваших советов по планировке и эргономики кухни, интересно все от расположения плиты до вилок с ложками, так как наша семья ОЧЕНЬ любит готовить и моя женская интуиция подсказывает, что мы много времени будем проводить на кухне!
у вас куча свободного пространства
поэтому в вашем случае хочется поставить в центр что-то ,или есть возможность поставить в центр что-то, все завивисит от наших предпочтений, например стол
вот например остров
у вас на самом деле куча интересных вариантов, разных у вас есть три стены, которые по-разному можно обыграть!фантазируйте)
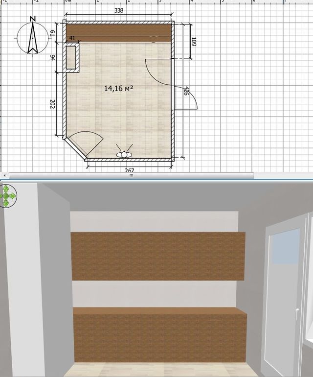
Черный квадрат это место под телевизор. Как Вам проект со стороны?
Будем еще думать с мужем по поводу расстановки мебели. А над холодильником нам предложили сделать полочку для бутылок, тогда все получается вровень.
Будем еще думать с мужем по поводу расстановки мебели. А над холодильником нам предложили сделать полочку для бутылок, тогда все получается вровень.
Будем еще думать с мужем по поводу расстановки мебели. А над холодильником нам предложили сделать полочку для бутылок, тогда все получается вровень.
Будем еще думать с мужем по поводу расстановки мебели. А над холодильником нам предложили сделать полочку для бутылок, тогда все получается вровень.
Только мне все таки хочется зашить тот угол с трубами вровень с вен. коробом и на этой стене нижние шкафы тоже сделать 60 глубиной и поставить мойку. Zhannat, а как бы вы разделили наш метраж по нижним шкафам?