Выбор планировки
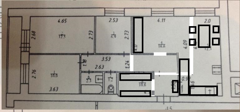
Вопросы и ответыДобрый день! Какая планировка удачнее на ваш взгляд. Наша головная боль из красного квадрата - это короб в котором проходят стояк , который никак нельзя передвинуть. Из-за этого получается кухня встанет нестандартно. Белый квадрат - это шкаф купе для верхней одежды.
Второй вариант сделать кладовку ,а кухню уменьшить. Двери в кладовку планируется сделать раздвижные и хранить санки, велосипед (которые щас на даче прекрасно хранятся), установить стиральную машинку и вешать верхнюю одежду. Семья наша- мама, папа, трехлетняя дочь, планируется второй ребенок. В маленькой комнате (6.9м) щас гардеробная. Вставила исходный вариант- может у кого будут другие предложения.![]()
![]()
![]()
ZhannaT
Предложу вам вот такой вариант.
Заходим, справа скамейка, обувница, в общем разуваемся) Налево гардеробная. Остальное гостиная, обеденная зона и г-образная кухня.
Заходим, справа скамейка, обувница, в общем разуваемся) Налево гардеробная. Остальное гостиная, обеденная зона и г-образная кухня.
01.12.2014
Ответить
Julia
Рядом с туалетом это стиральная машинка ?? Наверное не получится ее туда вывести потому ремонт уже сделан в туалете и в ванной.
01.12.2014
Ответить
Никто не бородавочник
мне первый вариант понравился, только я б комнату 6,9 увеличила, может стенку передвинуть вправо?
30.11.2014
Ответить



Варианты расстановки мебели в кухне-гостин
ной