Перепланировка
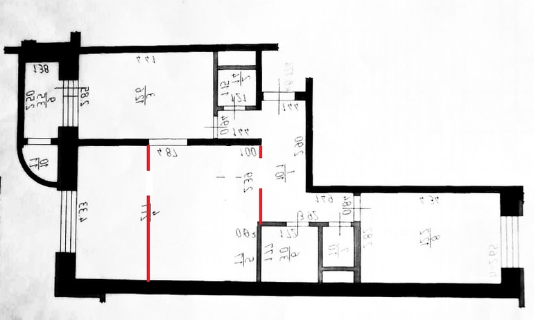
Перепланировки стен. Согласование перепланировки квартир и нежилых помещений.Дано: стена между кладовкой (№5 помещение) и большой комнатой не несущая. Надо получить из двушки 2 спальни + кухня-столовая. Этаж последний. Кухня по плану помещение №3

Вариант1 : сносим кладовку, делаем темный зал с проходом 1,30 на кухню (проход есть). Отгораживаем спальню (2,30 на 4,30).

Вариант 2: переносим кухню на место кладовки

Что выбрать? 1-й вариант легче реализовать и если что вернуть обратно. 2-й вариант красивее...
Елена
второй вариант. Вход большую комнату сделать по длинной стене, украв у малой комнаты пару см.
01.12.2014
Ответить
akvitty
Второй вариант. Раз Вы на последнем этаже, сделать спальню на месте кухни Вам разрешат. Кухню перенести на место нежилой кладовки при условии гидроизоляции — тоже.
01.12.2014
Ответить
Наталья
Заказать хотя бы планировочное решение у дизайнера. Это в порядке 200 руб за метр
01.12.2014
Ответить
Наталья
Он Вам должен предложить варианты с пере планировкой и без и просчитать стоимость этих решений. По своему опыту скажу, что мокрую зону переносить тяжело, но возможно.
01.12.2014
Ответить
Кицунэ
Вы узаконили? стоимость решений мне просчитала проектная организация, которая будет перепланировкой заниматься. я пока не уверена, что меня устроит темный зал 3,5 * 4,3 :(
01.12.2014
Ответить
Ася
Второй лучше, только проход В кухню-гостиную оставьте широким, зачем там его сужать...
01.12.2014
Ответить
Кицунэ
чтобы максимум кухни уместилось по стене.. туда надо раковину, посудомойку, плиту..
01.12.2014
Ответить
Ася
Про ту сторону где кухня понятно, у вас сужение и с противоположной стены нарисовано
01.12.2014
Ответить
Кицунэ
туда узкую часть кухни глубиной 40 см. ну или ничего :)есть еще вариант проход в комнату с балконом оставить из общей, а заложить из коридора
01.12.2014
Ответить
Ася
Тогда вы сможете сделать там шикарную гардеробную при входе ( если готовы лишиться 2го санузла)) я себе сделала так))) и организовала себе в гардеробной уголок для "прихорашиваний")))) там же я сделала постирочную.
01.12.2014
Ответить