Девчонки, помогите выбрать план кухни)
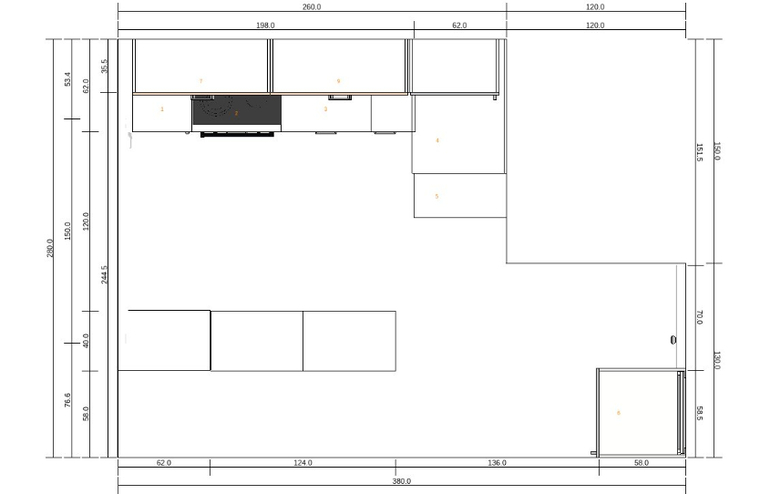
Интерьерное решение кухниДевочки, помогите, а то я уже не могу. Устала страшно. Переезжаем с мужем на квартиру, решили все ломать,и делать для себя. Начали с самого затратного (по нашему мнению) - кухни. Кухонька не большая, по-этому стол категорически отбрасываем. Только барная стойка. Так как в программе барной стойки я не нашла, я обозначила её свободной столешницой. Мебель еще не подбирали, "начинка" просто набросана. Мне важно само расположение мебели. Пол - темно-фиолетовый (чуть ли не черный), стены неееееежно-нежно фиолетовые, близко к белому. Фартук выкладывать будем так:
!____!____!____!____! - белая плитка
!____!____!____!____! - на белой плитке фиолетовые орхидеи
!____!____!____!____! - на белой плитке фиолетовые орхидеи
!____!____!____!____! - фиолетовая плитка, в тон к орхидеям.
между фиолетовой и "цветочной" плиткой золотая "каемочка" (или как-то так)
Мебель планирую белую или молочную.

между фиолетовой и "цветочной" плиткой золотая "каемочка" (или как-то так)
Мебель планирую белую или молочную.

Юлия
Анастасия, я не в тему выскажусь.))) Может ну их, эти орхидеи? Их уже только ленивый не разместил в своей квартире. Мне нравится второй вариант. Но не хочется переставлять холодильник, а встроить его нельзя?
27.01.2015
Ответить
mrs. Miracle
Это прозвучит банально, но....они такие суперовые))) Да и орхидей будет полоска, все остальное будет под покраску. Хоть как-то разбавит, а то я не люблю живые цветы, и магнитики на холодильнике вызывают бееее....Так что орхидеи, я считаю, добавят какой-то "цацки"))Холодильник: Я его и планировала встроить, но не умею в этой программе это делать. А потом мама, заметила, что близко к плите, и Katrine тоже на это внимание обратила.Да и рабочей зоны мне кажется маловато с холодильником. Это же без всех кухонных примочек, начиная от хлебопечки, заканчивая всякими досточками, поварешками и т.д.
27.01.2015
Ответить
Оксана
Вы знаете, я вот тоже не любитель попсятины, а вот захожу к соседке на ее кухню цвета фуксии с фартуком из орхидей, и мне она очень и очень нравится. Очень стильно и нарядно! И себе бы так сделала. А то, что сейчас у каждого второго эти орхидеи, ну и что??!!!! Квартира же одна.
П.С. Делайте то, что Вам нравится и хочется)))
28.01.2015
Ответить
Юлия
Оксана! С этим не могу не согласиться.))) Жить каждому в своем интерьере самому.
28.01.2015
Ответить
mrs. Miracle
Спасибо большое)))Мне было бы интересно Ваше мнение о планировке, если Вам не трудно)
28.01.2015
Ответить
Оксана
Честно говоря, я наверное плохой советчик в плане планировки и расположения)))) Надо ориентироваться на месте. Самое оптимальное прям в этой кухне взять мел и почертить на полу варианты расположения мебели-мне помогает!
29.01.2015
Ответить
Katrine
В прошлый четверг тоже заказала кухню. Вот, жду....По Вашей: второй вариант с раб. пов. у окна лучше, но холодильник и печка оч близко; а где мойка? Подоконник уже есть? Или планируется как столешница? Вы меряли высоту подоконника? У нас так не получилось.....
27.01.2015
Ответить
mrs. Miracle
холодильник решила поставить возле двери, как в первом варианте, а на его место еще одну тумбочку. Мойка в обеих вариантах будет в углу — в первом варианте — в правом углу и во втором- в левом. Подоконник есть, но его (при выборе второго варианта) демонтируют и сделают столешницу. Высота как раз.Мне вот тоже ближе второй вариант, только смущает, что потеряю у барной стойки одно посадочное место. Хотя может оно того стоит...
27.01.2015
Ответить
Katrine
Почитала комментарии.Решила обдумать все. Как бы я сделала себе.Холодильник отправила в угол при входе, как вы и написали. Но позволяет ли ширина угла?Оставила бы угловую кухню. Вариант выкладываю.Подоконник бы оставила на месте и не делала демонтаж, т.к. это все деньги (для меня сейчас это актуально, т.к. в стране творится непонятно что и цены на кухни выросли в 2 раза).Оставила бы все с закрытыми дверями, без стекол. Двери все распашные, без поднятия вверх, т.к. это не удобно и дорого.Возможно, свой вариант доработала бы — вместо одной секции на 60 внизу добавила 3 ящика. Барную стойку убрала. А оставила стол. На случай гостей — раскладной и изменить его положение (относительно того, как стоит сейчас).Размеры слева направо:низ 60-20 (карго)-60-60-мойка с дверью на 40-50верх 60-20-60-60-угол 60Х60-30-60Мойка и печка не близко, а это удобно. И что главное — есть место рабочее!!!Если есть микроволновка, то ее бы засунула в верхний шкаф самый левый на 60. Открываться будет удобно. И не ставила бы на столешницу в целях экономии места.И верхние фасады сделала бы на 90 (а не стандартные 72).
28.01.2015
Ответить
mrs. Miracle
Спешу с ответом)1. Ширина угла позволяет2. "Подоконник бы оставила на месте" — кухню мне будет делать друг,он работает на фирме и у него будет мега скидка, так что по поводу стоимости я не парюсь.3. По поводу самой комплектации, то я писала, что схему делала на авось, просто чтобы обозначить размеры и расположение. То есть, шкафчики будут не те, что я нарисовала, а еще даже не знаю какие.4.Сто категорически не хочу, потому что уже надоело. Для гостей у нас есть раскладной стол, который мы ставим во время приема гостей в гостиной. Остальное время он живет по-соседству у моей бабушки (мы живем через стенку).Вродь ничего не упустила)
28.01.2015
Ответить